静岡県浜松市中央区萩丘3丁目(上島駅)の賃貸:物件詳細
交通 所在地 |
駅徒歩 |
賃料 管理費等 |
敷金/保証金 礼金 |
間取り 面積 |
物件種目 築年月 |
|
遠州鉄道/上島
静岡県浜松市中央区萩丘3丁目
|
21分
|
6.8万円
4,000円
|
なし / 10万円
なし
|
2SLDK
56.00m²
|
賃貸一戸建て
2005年4月(築21年2ヶ月)
|
駐車場2台分、角部屋、最上階、前面棟無、IT重説対応物件、保証人不要、高台
|
| 交通 | 遠州鉄道 上島駅 徒歩21分 |
|---|
| その他の交通 | 遠州鉄道 自動車学校前駅 徒歩26分 遠州鉄道 曳馬駅 徒歩27分 |
| 所在地 |
静岡県浜松市中央区萩丘3丁目
|
| 物件種目 |
賃貸一戸建て |
| 賃料 |
6.8万円 |
管理費等 |
4,000円 |
| 敷金 / 保証金 |
なし / 10万円 |
礼金 |
なし |
| 敷引 |
- |
保証金償却 |
解約時100% |
| その他一時金 |
安心サポート24(2年):16,500円 |
保険等 |
要 2年 19,000円 宅建ファミリー共済 |
| 維持費等 |
町費:500円/月 |
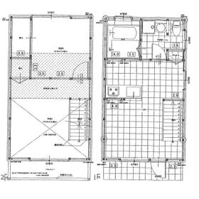
| 間取り |
2SLDK(洋 8.5・5.4 LDK 9.8 S 5.4) |
専有面積 |
56.00m² |
| 築年月 |
2005年4月(築21年2ヶ月)
|
階建 / 階 |
2階建 |
| 建物構造 |
木造 |
総戸数 |
1戸 |
| 主要採光面 |
東 |
駐車場 |
有 無料 |
| バイク置き場 |
- |
駐輪場 |
- |
| 建物名・部屋番号 |
萩丘借家 - |
ペット |
-
|
| アピールポイント |
住まいとお金は最初が肝心。礼金0円。広々とした延床面積56㎡の居室空間、更に自然の風合いを活かしたウッドデッキ付だから、木の質感が落ち着きます。また寝室から物置までスペースを有効活用できるロフト付で、その上火力の微妙な調整も簡単なIHクッキングヒーター採用なので、揚げ物調理の跳ね油のお掃除も手間要らずです。ちなみに洗髪とメイクをまとめてできるシャンプードレッサー付です。家族が帰宅を焦がれる2SLDK。是非その目でお確かめください。 |
| リフォーム履歴 |
- |
| リノベーション履歴 |
- |
| 備考 |
賃貸保証等:加入要(初回50%(初回引落時に支払い、最低20,000円)、月額1.5%(最低700円))
管理形態/管理員の勤務形態:-/-
IT重説対応物件
|
| エネルギー消費性能 |
- |
| 断熱性能 |
- |
| 目安光熱費 |
- |
| バス・トイレ |
バス・トイレ別、追焚機能、シャワー付洗面化粧台、洗面所独立、洗面所、洗面台、シャワー、温水洗浄便座、トイレ |
| キッチン |
IHクッキングヒーター |
| セキュリティー |
- |
| 収納 |
収納スペース、クローゼット |
| 設備・サービス |
室内洗濯機置場、洗濯機置場、ロフト、給湯、全居室フローリング、フローリング、プロパンガス、エアコン |
| TV・通信 |
インターネット対応 |
| その他 |
ウッドデッキ、バルコニー |
| 契約期間 |
2年 |
現況 |
空家 |
| 条件等 |
- |
入居可能時期 |
即時 |
| 更新料 |
11,000円 |
物件番号 |
6979164473 |
| 情報公開日 |
2026年4月14日 |
次回更新予定日 |
2026年5月12日 |
| ケータイ用バーコード |
- スマートフォンでこの物件を見る
- スマートフォンからもこの物件をご覧になれます。
|
※「-」と表示されている項目については、情報提供会社にご確認ください。
| 周辺施設 |
ユーコープミオクチーナ小豆餅店 |
| 距離 |
733m |
| 周辺施設 |
びっくりドンキー浜松萩丘店 |
| 距離 |
758m |
ここから簡単にお問い合わせをすることができます。
(SSLでの暗号化での送信を希望されるお客さまは
こちら
よりお問い合わせください)
お問い合わせを行う前に
「個人情報の取り扱いについて」を必ずお読みください。
「個人情報の取り扱いについて」に同意いただいた場合は「上記にご同意の上 確認画面へ進む」のボタンをクリックしてください。
個人情報の取り扱いについて
皆さまが送付された個人情報はアットホーム(株)のサーバを経由し、お問い合わせ先の不動産会社にメールまたはFAXにて転送されるためアットホーム(株)にも保管されます。アットホーム(株)で保管された個人情報の取り扱いについては、【こちら】をご覧ください。
また、本画面でご記入いただいた個人情報は、お問い合わせ先の不動産会社でも保管します。 お問い合わせ先の不動産会社が保管する個人情報の取り扱いについては、不動産会社に直接お問い合わせください。
静岡県知事免許(6)第11107号 |
|---|
- 交通:
- 東海道本線/浜松駅
- 静岡県浜松市中央区広沢3丁目27-5
- TEL:
- 053-451-4656
- FAX:
- 053-451-4651
- 所属団体:
- (公社)静岡県宅地建物取引業協会会員東海不動産公正取引協議会加盟
取引態様:仲介  - 40302049
|
- スマートフォンで
この不動産会社を見る

|
- 提携サイト等より掲載されている物件情報につきましては、不動産会社詳細情報にリンクされていないものがあります。
- 物件に関するお問合せは、物件詳細ページの「情報提供会社」に表示されている不動産会社へ直接お願いいたします。
- 間取図は、現況を優先させていただきます。
- 映像は物件の一部を撮影したものです。物件の契約にあたっての最終判断はご自身の判断に基づいて行ってください。
- 仲介手数料について

アットホームは物件情報の適正化に努めております。
内容に誤りがある場合にはこちらへご連絡ください。