不動産 賃貸 マンション等の住宅情報:埼玉住まい情報


兵庫県姫路市手柄(姫路駅)の賃貸:物件詳細

  • 物件詳細
  • 情報の見方
  • 印刷用画面
交通
所在地
駅徒歩 賃料
管理費等
敷金/保証金
礼金
間取り
面積
物件種目
築年月

JR山陽本線/姫路
【バス】15分 中央公園口 停歩2分

兵庫県姫路市手柄

10万円

8,000円

10万円 / なし

30万円

3LDK

84.50m²

賃貸マンション

1995年7月(築30年6ヶ月)

おすすめPOINT角部屋、南向き、2面採光、外観タイル張り、前面棟無

おすすめコメント

南側には建物がなく、採光・通風に優れた心地よいお部屋です。光が部屋の奥にまで届くので、洗濯物を室内で干しても充分に乾かすことができます。角部屋で広いバルコニーが魅力!

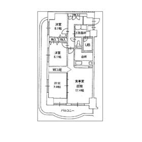
間取図

間取図

その他の画像
  • 室内
  • 収納
  • 室内
  • 洗面
  • バス/シャワー
  • キッチン
  • 室内
  • 収納
  • リビング
    • とりあえず保存
    • お問い合わせ
    交通

    JR山陽本線 姫路駅
    【バス】 15分 中央公園口 停歩2分

    所在地 兵庫県姫路市手柄
    物件種目 賃貸マンション
    賃料 10万円 管理費等 8,000円
    敷金 / 保証金 10万円 / なし 礼金 30万円
    敷引 保証金償却
    その他一時金 退去時ハウスクリーニング代:49,500円 保険等 要 2年 20,000円 賃貸総合補償
    維持費等
    間取り 3LDK(洋 6.1・6.1・7 LDK 17.4) 専有面積 84.50m²
    築年月 1995年7月(築30年6ヶ月) 階建 / 階 15階建 / 12階
    建物構造 SRC 総戸数
    主要採光面 駐車場 有 10,000円/月
    バイク置き場 駐輪場 有 無料
    建物名・部屋番号 手柄アートスカイハイツ 1201 ペット
    アピールポイント フレッツ光全戸加入(高速Wi-Fiルーター設置済)
    ※別途プロバイダー契約料金要
    リフォーム履歴
    リノベーション履歴
    備考
    賃貸保証等:加入要(初回:賃料の50%  更新時:10,000円)
    管理形態/管理員の勤務形態:-/日勤
    バルコニー:26.48m²
    管理人日勤
    エネルギー消費性能
    断熱性能
    目安光熱費
    バス・トイレ バス・トイレ別、シャワー付洗面化粧台、洗面台、シャワー、温水洗浄便座、トイレ
    キッチン カウンターキッチン、システムキッチン、3口以上コンロ
    セキュリティー モニター付インターホン
    収納 全居室収納、シューズボックス
    設備・サービス 室内洗濯機置場、給湯、都市ガス
    TV・通信 インターネット使用料無料、光ファイバー、ケーブルTV、BS端子
    その他 二面バルコニー、駐輪場、エレベーター
    契約期間 2年 現況 空家
    条件等 入居可能時期 即時
    更新料 物件番号 6980237711
    情報公開日 2025年9月30日 次回更新予定日 2025年12月30日
    ケータイ用バーコード

    QRコード

    スマートフォンでこの物件を見る
    スマートフォンからもこの物件をご覧になれます。
    ※「-」と表示されている項目については、情報提供会社にご確認ください。

    この物件の周辺情報

    周辺施設 イオンタウン姫路
    距離 993m
    周辺施設 セブンイレブン姫路東延末5丁目店
    距離 533m
    周辺施設 姫路市立山陽中学校
    距離 836m
    周辺施設 姫路市立手柄小学校
    距離 346m
    周辺施設 医療法人芙翔会姫路愛和病院
    距離 911m
    周辺施設 姫路手柄郵便局
    距離 484m
    周辺施設 姫路市役所
    距離 1007m

    クイックお問い合わせ

    ここから簡単にお問い合わせをすることができます。
    (SSLでの暗号化での送信を希望されるお客さまは こちら よりお問い合わせください)

    お問い合わせ内容(必須)
    お名前(必須) 姓  名 
    メールアドレス(必須)
    ※携帯電話のメールアドレスをご入力される方はこちらをご確認ください
    電話番号(必須)
    - -

    ※入力いただいた電話番号へSMSまたは音声でパスワードをご連絡します。

    携帯電話の番号をご入力の方へ

    携帯電話の番号をご入力の方へ
    確認画面にて送信ボタンをクリックするとSMSが携帯電話に届きます。
    そのSMSに記載のパスワード(認証番号)を入力し、お問い合わせを完了してください。
    尚、SMSの送信者番号は 0005 202 760 となります。
    これはアットホームの固定番号です。

    備考欄 希望条件、物件案内希望日、質問などがございましたらご記入ください。
    お問い合わせを行う前に「個人情報の取り扱いについて」を必ずお読みください。
    「個人情報の取り扱いについて」に同意いただいた場合は「上記にご同意の上 確認画面へ進む」のボタンをクリックしてください。

    個人情報の取り扱いについて

    皆さまが送付された個人情報はアットホーム(株)のサーバを経由し、お問い合わせ先の不動産会社にメールまたはFAXにて転送されるためアットホーム(株)にも保管されます。アットホーム(株)で保管された個人情報の取り扱いについては、【こちら】をご覧ください。
    また、本画面でご記入いただいた個人情報は、お問い合わせ先の不動産会社でも保管します。 お問い合わせ先の不動産会社が保管する個人情報の取り扱いについては、不動産会社に直接お問い合わせください。

    情報提供会社

    情報提供会社

    姫路不動産(株)

    兵庫県知事免許(16)第1124号

    交通:
    JR山陽本線/姫路駅 徒歩7分
    兵庫県姫路市綿町119 
    TEL:
    079-281-0081
    FAX:
    079-281-8885
    所属団体:
    (一社)兵庫県宅地建物取引業協会会員
    (公社)近畿地区不動産公正取引協議会加盟

    取引態様:仲介

    • 会社情報
    • 50016812
    スマートフォンで
    この不動産会社を見る
    QRコード
    • とりあえず保存
    • お問い合わせ
    • 提携サイト等より掲載されている物件情報につきましては、不動産会社詳細情報にリンクされていないものがあります。
    • 物件に関するお問合せは、物件詳細ページの「情報提供会社」に表示されている不動産会社へ直接お願いいたします。
    • 間取図は、現況を優先させていただきます。
    • 映像は物件の一部を撮影したものです。物件の契約にあたっての最終判断はご自身の判断に基づいて行ってください。
    • 仲介手数料について仲介手数料

    アットホームは物件情報の適正化に努めております。 内容に誤りがある場合にはこちらへご連絡ください。

    【埼玉住まい情報】では、日本全国の物件から賃貸マンションや賃貸アパート・賃貸一戸建て等の賃貸住宅情報、新築マンション・分譲マンションや中古マンション等の売買マンション情報、新築一戸建てや中古一戸建てなどの戸建住宅、 土地など、総合的な不動産住宅情報検索サービスを提供致します。
    【埼玉住まい情報】から、選りすぐりの不動産物件を探してみましょう。

    【免責事項】
    このコーナーの運営はアットホーム株式会社(https://www.athome.co.jp/)が行っています。
    このコーナーに掲載している物件情報は、「アットホーム不動産情報ネットワーク」に加盟する不動産会社等(情報提供元)から提供されています。信頼性の高い情報提供が行えるよう、最大限の努力をしておりますが、その内容を保証するものではありません。 利用者のみなさまと各情報提供元との取引に起因する損害および情報が掲載されたことに起因する損害等については、株式会社イーシティ埼玉、およびアットホームは一切責任を負いません。
    各物件情報の内容や画像等はすべて現況を優先させていただきます。
    お取引等(お取引の準備、資金調達等を含みます)の際には、内容や契約条件等について、各情報提供元より十分な説明を受け、ご自身でご確認の上、判断してください。
    このコーナーへの物件情報のご掲載、その他不動産業務ソリューション等についての不動産会社様のお問合せはこちらからお願いいたします。

    物件画像: