神奈川県川崎市多摩区登戸(向ヶ丘遊園駅)の賃貸:物件詳細
交通 所在地 |
駅徒歩 |
賃料 管理費等 |
敷金/保証金 礼金 |
間取り 面積 |
物件種目 築年月 |
|
小田急小田原線/向ヶ丘遊園
神奈川県川崎市多摩区登戸
|
6分
|
12.7万円
10,000円
|
1ヶ月 / なし
1ヶ月
|
1LDK
39.53m²
|
賃貸マンション
2017年2月(築8年9ヶ月)
|
ペット相談、分譲タイプ、常時ゴミ出し可能、二人入居可、24時間セキュリティー、24時間換気システム、外観タイル張り、保証人不要
|
|
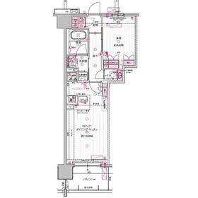
間取図
自社管理物件。
|
外観
|
<
その他の画像
>
|
| 交通 | 小田急小田原線 向ヶ丘遊園駅 徒歩6分 |
|---|
| その他の交通 | 小田急小田原線 登戸駅 徒歩10分 JR南武線 登戸駅 徒歩11分 |
| 所在地 |
神奈川県川崎市多摩区登戸
|
| 物件種目 |
賃貸マンション |
| 賃料 |
12.7万円 |
管理費等 |
10,000円 |
| 敷金 / 保証金 |
1ヶ月 / なし |
礼金 |
1ヶ月 |
| 敷引 |
- |
保証金償却 |
- |
| その他一時金 |
コンシェルジュ24:16,500円、契約事務手数料:11,000円、更新事務手数料:11,000円 |
保険等 |
要 2年 20,000円 火災 |
| 維持費等 |
- |
| 間取り |
1LDK(洋 4.6 LDK 10.8) |
専有面積 |
39.53m² |
| 築年月 |
2017年2月(築8年9ヶ月)
|
階建 / 階 |
14階建 / 7階 |
| 建物構造 |
RC |
総戸数 |
39戸 |
| 主要採光面 |
北西 |
駐車場 |
- |
| バイク置き場 |
- |
駐輪場 |
- |
| 建物名・部屋番号 |
サンクレイドル向ヶ丘遊園 702 |
ペット |
小型犬可・ 猫可・ どちらか1匹(敷金1ヵ月追加) |
| アピールポイント |
分譲マンションならではの充実した設備と安心のセキュリティ体制。 |
| リフォーム履歴 |
- |
| リノベーション履歴 |
- |
| 備考 |
賃貸保証等:加入要(全保連㈱ 初回保証料:総賃料の50%、継続保証委託料:1,600円/月)
管理形態/管理員の勤務形態:-/-
バルコニー:5.4m²
非喫煙者限定
お問合せは、03-6712-6723までお願いします。
喫煙不可。
|
| エネルギー消費性能 |
- |
| 断熱性能 |
- |
| 目安光熱費 |
- |
| バス・トイレ |
バス・トイレ別、浴室乾燥機、追焚機能、洗面所独立、洗面所、シャワー、温水洗浄便座 |
| キッチン |
カウンターキッチン、システムキッチン、浄水器、2口コンロ、ガスコンロ付、グリル |
| セキュリティー |
モニター付オートロック、オートロック、モニター付インターホン、ディンプルキー、防犯カメラ |
| 収納 |
収納スペース、シューズインクローゼット、クローゼット |
| 設備・サービス |
室内洗濯機置場、洗濯機置場、全居室フローリング、都市ガス、エアコン |
| TV・通信 |
インターネット使用料無料、光ファイバー、ケーブルTV、BS端子 |
| その他 |
宅配BOX、バルコニー、エレベーター |
| 契約期間 |
2年 |
現況 |
居住中 |
| 条件等 |
- |
入居可能時期 |
2025年12月上旬予定 |
| 仲介手数料 |
1.1ヶ月 |
|
|
| 更新料 |
新賃料 1ヶ月 |
物件番号 |
6980422029 |
| 情報公開日 |
2025年10月18日 |
次回更新予定日 |
2025年11月2日 |
| ケータイ用バーコード |
- スマートフォンでこの物件を見る
- スマートフォンからもこの物件をご覧になれます。
|
※「-」と表示されている項目については、情報提供会社にご確認ください。
| 周辺施設 |
OdakyuOX向ヶ丘遊園店 |
| 距離 |
221m |
写真を見る |
| 周辺施設 |
オーケー登戸店 |
| 距離 |
511m |
写真を見る |
| 周辺施設 |
セブンイレブン川崎多摩区役所前店 |
| 距離 |
245m |
| 周辺施設 |
クスリのナカヤマ薬局多摩区役所前店 |
| 距離 |
183m |
| 周辺施設 |
クリエイトエス・ディー川崎向ヶ丘遊園店 |
| 距離 |
287m |
ここから簡単にお問い合わせをすることができます。
(SSLでの暗号化での送信を希望されるお客さまは
こちら
よりお問い合わせください)
お問い合わせを行う前に
「個人情報の取り扱いについて」を必ずお読みください。
「個人情報の取り扱いについて」に同意いただいた場合は「上記にご同意の上 確認画面へ進む」のボタンをクリックしてください。
個人情報の取り扱いについて
皆さまが送付された個人情報はアットホーム(株)のサーバを経由し、お問い合わせ先の不動産会社にメールまたはFAXにて転送されるためアットホーム(株)にも保管されます。アットホーム(株)で保管された個人情報の取り扱いについては、【こちら】をご覧ください。
また、本画面でご記入いただいた個人情報は、お問い合わせ先の不動産会社でも保管します。 お問い合わせ先の不動産会社が保管する個人情報の取り扱いについては、不動産会社に直接お問い合わせください。
東京都知事免許(4)第90340号 |
|---|
- 交通:
- 東京メトロ副都心線/北参道駅 徒歩3分
- 東京都渋谷区千駄ヶ谷3丁目16-5 MUPRE北参道7階
- TEL:
- 03-6712-6712
- FAX:
- 03-6712-6713
- 所属団体:
- (公社)全日本不動産協会会員(一社)全国住宅産業協会会員(公社)首都圏不動産公正取引協議会加盟
取引態様:仲介  - 00108264
|
- スマートフォンで
この不動産会社を見る

|
- 提携サイト等より掲載されている物件情報につきましては、不動産会社詳細情報にリンクされていないものがあります。
- 物件に関するお問合せは、物件詳細ページの「情報提供会社」に表示されている不動産会社へ直接お願いいたします。
- 間取図は、現況を優先させていただきます。
- 映像は物件の一部を撮影したものです。物件の契約にあたっての最終判断はご自身の判断に基づいて行ってください。
- 仲介手数料について

アットホームは物件情報の適正化に努めております。
内容に誤りがある場合にはこちらへご連絡ください。