宮城県仙台市太白区西中田6丁目(南仙台駅)の賃貸:物件詳細
交通 所在地 |
駅徒歩 |
賃料 管理費等 |
敷金/保証金 礼金 |
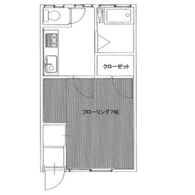
間取り 面積 |
物件種目 築年月 |
|
JR東北本線/南仙台
宮城県仙台市太白区西中田6丁目
|
8分
|
3.5万円
なし
|
1ヶ月 / なし
1ヶ月
|
1K
23.18m²
|
賃貸アパート
1984年4月(築41年11ヶ月)
|
閑静な住宅街
|
|
間取図
|
室内
|
その他の画像
|
| 交通 | JR東北本線 南仙台駅 徒歩8分 |
|---|
| その他の交通 | JR常磐線 南仙台駅 徒歩8分 |
| 所在地 |
宮城県仙台市太白区西中田6丁目
|
| 物件種目 |
賃貸アパート |
| 賃料 |
3.5万円 |
管理費等 |
なし |
| 敷金 / 保証金 |
1ヶ月 / なし |
礼金 |
1ヶ月 |
| 敷引 |
- |
保証金償却 |
- |
| その他一時金 |
なし、鍵交換代等:16,500円~ |
保険等 |
要 2年 16,000円 借家人賠償 |
| 維持費等 |
- |
| 間取り |
1K(K 7) |
専有面積 |
23.18m² |
| 築年月 |
1984年4月(築41年11ヶ月)
|
階建 / 階 |
2階建 / 1階 |
| 建物構造 |
木造 |
総戸数 |
10戸 |
| 主要採光面 |
|
駐車場 |
有 3,000円/月 |
| バイク置き場 |
有 無料 |
駐輪場 |
有 無料 |
| 建物名・部屋番号 |
南仙台ハイツB棟 105 |
ペット |
-
|
| リフォーム履歴 |
■その他:2025年5月 内装 クロス張替 CF張替 ※実施年月は最も古い履歴を表示 |
| リノベーション履歴 |
- |
| 備考 |
賃貸保証等:利用可(条件により異なりますので詳しくは担当者までご相談ください。)
管理形態/管理員の勤務形態:-/巡回
区画整理地内、管理人巡回
|
| エネルギー消費性能 |
- |
| 断熱性能 |
- |
| 目安光熱費 |
- |
| バス・トイレ |
バス・トイレ別、温水洗浄便座 |
| キッチン |
ガスコンロ可 |
| セキュリティー |
ディンプルキー、火災警報器(報知機) |
| 収納 |
収納スペース、クローゼット |
| 設備・サービス |
フローリング、プロパンガス、エアコン |
| TV・通信 |
- |
| その他 |
バイク置き場、駐輪場 |
| 契約期間 |
2年 |
現況 |
空家 |
| 条件等 |
- |
入居可能時期 |
即時 |
| 仲介手数料 |
不要 |
|
|
| 更新料 |
なし |
物件番号 |
6980711687 |
| 情報公開日 |
2025年12月11日 |
次回更新予定日 |
2026年2月17日 |
| ケータイ用バーコード |
- スマートフォンでこの物件を見る
- スマートフォンからもこの物件をご覧になれます。
|
※「-」と表示されている項目については、情報提供会社にご確認ください。
| 周辺施設 |
ファミリーマート西中田六丁目店 |
| 距離 |
155m |
| 周辺施設 |
ミニストップ仙台中田6丁目店 |
| 距離 |
742m |
| 周辺施設 |
ドラッグセイムス西中田店 |
| 距離 |
869m |
ここから簡単にお問い合わせをすることができます。
(SSLでの暗号化での送信を希望されるお客さまは
こちら
よりお問い合わせください)
お問い合わせを行う前に
「個人情報の取り扱いについて」を必ずお読みください。
「個人情報の取り扱いについて」に同意いただいた場合は「上記にご同意の上 確認画面へ進む」のボタンをクリックしてください。
個人情報の取り扱いについて
皆さまが送付された個人情報はアットホーム(株)のサーバを経由し、お問い合わせ先の不動産会社にメールまたはFAXにて転送されるためアットホーム(株)にも保管されます。アットホーム(株)で保管された個人情報の取り扱いについては、【こちら】をご覧ください。
また、本画面でご記入いただいた個人情報は、お問い合わせ先の不動産会社でも保管します。 お問い合わせ先の不動産会社が保管する個人情報の取り扱いについては、不動産会社に直接お問い合わせください。
(株)トマーク宮城県知事免許(5)第4985号 |
|---|
- 交通:
- 仙台市南北線/長町一丁目駅 徒歩6分
- 宮城県仙台市太白区緑ケ丘3丁目41-5
- TEL:
- 022-248-8166
- FAX:
- 022-248-8167
- 所属団体:
- (公社)全日本不動産協会会員東北地区不動産公正取引協議会加盟
取引態様:貸主 |
- 提携サイト等より掲載されている物件情報につきましては、不動産会社詳細情報にリンクされていないものがあります。
- 物件に関するお問合せは、物件詳細ページの「情報提供会社」に表示されている不動産会社へ直接お願いいたします。
- 間取図は、現況を優先させていただきます。
- 映像は物件の一部を撮影したものです。物件の契約にあたっての最終判断はご自身の判断に基づいて行ってください。
- 仲介手数料について

アットホームは物件情報の適正化に努めております。
内容に誤りがある場合にはこちらへご連絡ください。