不動産 賃貸 マンション等の住宅情報:埼玉住まい情報


大分県別府市田の湯町(別府駅)の賃貸:物件詳細

  • 物件詳細
  • 情報の見方
  • 印刷用画面
交通
所在地
駅徒歩 賃料
管理費等
敷金/保証金
礼金
間取り
面積
物件種目
築年月

JR日豊本線/別府

大分県別府市田の湯町

4分

18.5万円

5,000円

なし / なし

2ヶ月

3LDK

83.05m²

賃貸マンション

2024年2月(築2年2ヶ月)

おすすめPOINTペット相談、角部屋、最上階、24時間セキュリティー、管理人常駐

おすすめコメント

築浅分譲マンションの最上階角部屋です♪眺望良好!ペット可!室内ご案内可能です。お気軽にお問い合わせください☆

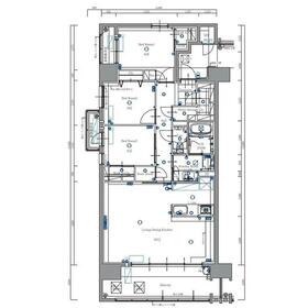
間取図

間取図

外観

外観

<
その他の画像
  • リビング
  • リビング
  • キッチン
  • バス/シャワー
  • トイレ
  • 洗面
  • 室内
  • 室内
  • 室内
  • 玄関
  • バルコニー
  • 眺望
  • 眺望
  • 眺望
>
    • とりあえず保存
    • お問い合わせ
    交通

    JR日豊本線 別府駅 徒歩4分

    所在地 大分県別府市田の湯町
    物件種目 賃貸マンション
    賃料 18.5万円 管理費等 5,000円
    敷金 / 保証金 なし / なし 礼金 2ヶ月
    敷引 保証金償却
    その他一時金 ゆのまちサポート入会金:10,000円、抗菌施行:16,500円 保険等 不要
    維持費等 ゆのまちサポート24:1,500円/月
    間取り 3LDK(洋 6・5・4.5 LDK 19.7) 専有面積 83.05m²
    築年月 2024年2月(築2年2ヶ月) 階建 / 階 15階建 / 15階
    建物構造 RC 総戸数 56戸
    主要採光面 駐車場 有 8,000円/月
    バイク置き場 駐輪場
    建物名・部屋番号 サンパーク別府駅前レジデンス ペット 小型犬可・ 猫可・ ペット礼金1か月有り
    アピールポイント ペット飼育可能です(ペット礼金+1か月)
    インターネット無料です♪
    別府駅まで徒歩約2分(120m)

    是非一度ご内覧ください☆
    リフォーム履歴
    リノベーション履歴
    備考
    賃貸保証等:加入要(アルファー加入要(月額総賃料の50%・更新料有り10,000円/年))
    管理形態/管理員の勤務形態:-/常駐
    バルコニー:13.7m²
    二重床・二重天井
    ゆのまちサポート24入会金:10,000円
    エネルギー消費性能
    断熱性能
    目安光熱費
    バス・トイレ バス・トイレ別、浴室暖房、浴室乾燥機、追焚機能、シャワー付洗面化粧台、洗面所独立、洗面所、シャワー、温水洗浄便座、タンクレストイレ、トイレ
    キッチン カウンターキッチン、システムキッチン、食器洗浄乾燥機、浄水器、3口以上コンロ、ガスコンロ付
    セキュリティー モニター付オートロック、オートロック、防犯カメラ、火災警報器(報知機)
    収納 収納スペース、シューズインクローゼット、クローゼット
    設備・サービス 室内洗濯機置場、都市ガス給湯、給湯、全居室フローリング、フローリング、都市ガス
    TV・通信 インターネット対応、インターネット使用料無料、光ファイバー、ケーブルTV、CS、BS端子
    その他 宅配BOX、バルコニー、エレベーター
    契約期間 2年 現況 居住中
    条件等 入居可能時期 相談
    仲介手数料 1ヶ月    
    更新料 なし 物件番号 6981177272
    情報公開日 2026年3月5日 次回更新予定日 2026年3月25日
    ケータイ用バーコード

    QRコード

    スマートフォンでこの物件を見る
    スマートフォンからもこの物件をご覧になれます。
    ※「-」と表示されている項目については、情報提供会社にご確認ください。

    この物件の周辺情報

    周辺施設 マルミヤストア別府駅店
    距離 224m
    周辺施設 トキハ別府店
    距離 771m
    周辺施設 セブンイレブン別府田の湯町店
    距離 196m
    周辺施設 保険医療機関医療法人野口病院
    距離 702m
    周辺施設 別府上田ノ湯郵便局
    距離 540m
    周辺施設 大分銀行別府支店
    距離 560m
    周辺施設 別府市役所
    距離 1322m
    周辺施設 別府駅
    距離 282m

    クイックお問い合わせ

    ここから簡単にお問い合わせをすることができます。
    (SSLでの暗号化での送信を希望されるお客さまは こちら よりお問い合わせください)

    お問い合わせ内容(必須)
    お名前(必須) 姓  名 
    メールアドレス(必須)
    ※携帯電話のメールアドレスをご入力される方はこちらをご確認ください
    電話番号(必須)
    - -

    ※入力いただいた電話番号へSMSまたは音声でパスワードをご連絡します。

    携帯電話の番号をご入力の方へ

    携帯電話の番号をご入力の方へ
    確認画面にて送信ボタンをクリックするとSMSが携帯電話に届きます。
    そのSMSに記載のパスワード(認証番号)を入力し、お問い合わせを完了してください。
    尚、SMSの送信者番号は 0005 202 760 となります。
    これはアットホームの固定番号です。

    備考欄 希望条件、物件案内希望日、質問などがございましたらご記入ください。
    お問い合わせを行う前に「個人情報の取り扱いについて」を必ずお読みください。
    「個人情報の取り扱いについて」に同意いただいた場合は「上記にご同意の上 確認画面へ進む」のボタンをクリックしてください。

    個人情報の取り扱いについて

    皆さまが送付された個人情報はアットホーム(株)のサーバを経由し、お問い合わせ先の不動産会社にメールまたはFAXにて転送されるためアットホーム(株)にも保管されます。アットホーム(株)で保管された個人情報の取り扱いについては、【こちら】をご覧ください。
    また、本画面でご記入いただいた個人情報は、お問い合わせ先の不動産会社でも保管します。 お問い合わせ先の不動産会社が保管する個人情報の取り扱いについては、不動産会社に直接お問い合わせください。

    情報提供会社

    情報提供会社

    (株)ゆのまち不動産 大分店

    大分県知事免許(2)第3265号

    交通:
    JR日豊本線/牧駅 徒歩13分 【バス】 萩原堺町 停歩3分
    大分県大分市萩原2丁目1番5号 アーバンベルデ萩原101号
    TEL:
    097-585-5085
    所属団体:
    (公社)大分県宅地建物取引業協会会員
    (一社)九州不動産公正取引協議会加盟

    取引態様:仲介

    • 会社情報
    • 80505995
    スマートフォンで
    この不動産会社を見る
    QRコード
    • とりあえず保存
    • お問い合わせ
    • 提携サイト等より掲載されている物件情報につきましては、不動産会社詳細情報にリンクされていないものがあります。
    • 物件に関するお問合せは、物件詳細ページの「情報提供会社」に表示されている不動産会社へ直接お願いいたします。
    • 間取図は、現況を優先させていただきます。
    • 映像は物件の一部を撮影したものです。物件の契約にあたっての最終判断はご自身の判断に基づいて行ってください。
    • 仲介手数料について仲介手数料

    アットホームは物件情報の適正化に努めております。 内容に誤りがある場合にはこちらへご連絡ください。

    【埼玉住まい情報】では、日本全国の物件から賃貸マンションや賃貸アパート・賃貸一戸建て等の賃貸住宅情報、新築マンション・分譲マンションや中古マンション等の売買マンション情報、新築一戸建てや中古一戸建てなどの戸建住宅、 土地など、総合的な不動産住宅情報検索サービスを提供致します。
    【埼玉住まい情報】から、選りすぐりの不動産物件を探してみましょう。

    【免責事項】
    このコーナーの運営はアットホーム株式会社(https://www.athome.co.jp/)が行っています。
    このコーナーに掲載している物件情報は、「アットホーム不動産情報ネットワーク」に加盟する不動産会社等(情報提供元)から提供されています。信頼性の高い情報提供が行えるよう、最大限の努力をしておりますが、その内容を保証するものではありません。 利用者のみなさまと各情報提供元との取引に起因する損害および情報が掲載されたことに起因する損害等については、株式会社イーシティ埼玉、およびアットホームは一切責任を負いません。
    各物件情報の内容や画像等はすべて現況を優先させていただきます。
    お取引等(お取引の準備、資金調達等を含みます)の際には、内容や契約条件等について、各情報提供元より十分な説明を受け、ご自身でご確認の上、判断してください。
    このコーナーへの物件情報のご掲載、その他不動産業務ソリューション等についての不動産会社様のお問合せはこちらからお願いいたします。

    物件画像: