不動産 賃貸 マンション等の住宅情報:埼玉住まい情報


千葉県松戸市樋野口(松戸駅)の賃貸:物件詳細

  • 物件詳細
  • 情報の見方
  • 印刷用画面
交通
所在地
駅徒歩 賃料
管理費等
敷金/保証金
礼金
間取り
面積
物件種目
築年月

JR常磐線/松戸 新着

千葉県松戸市樋野口

10分

8.8万円

7,000円

なし / なし

なし

1LDK

27.80m²

賃貸アパート

2024年3月(築2年1ヶ月)

おすすめPOINTペット相談、角部屋、高齢者相談、二人入居可、事務所使用可、SOHO向き、24時間換気システム、IT重説対応物件、保証人不要

おすすめコメント  スタッフ: 鶴見 始之

築浅物件♪ 礼金0敷金0で初期費用が抑えられます♪ ペット飼育可能♪(小型犬~中型犬、猫、多頭飼い相談 ※敷金増額が必要)インターネット無料♪(Wi-Fi対応)

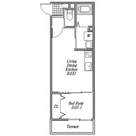
間取図

間取図

外観

外観

<
その他の画像
  • リビング
  • キッチン
  • バス/シャワー
  • エントランス
  • 玄関
  • 洗面
  • トイレ
  • 室内
  • 収納
  • 眺望
  • 共有部分
  • 共有部分
  • ショッピング施設
  • ショッピング施設
  • コンビニ
  • 販売店
  • 役所
>
    • とりあえず保存
    • お問い合わせ
    交通

    JR常磐線 松戸駅 徒歩10分

    その他の交通

    JR千代田・常磐緩行線 北松戸駅 徒歩26分

    京成松戸線 上本郷駅 徒歩28分

    所在地 千葉県松戸市樋野口
    物件種目 賃貸アパート
    賃料 8.8万円 管理費等 7,000円
    敷金 / 保証金 なし / なし 礼金 なし
    敷引 保証金償却
    その他一時金 保険等 要 2年 20,000円
    維持費等 入居サポート費用:1,100円/月
    間取り 1LDK(洋 3 LDK 8) 専有面積 27.80m²
    築年月 2024年3月(築2年1ヶ月) 階建 / 階 3階建 / 2階
    建物構造 木造 総戸数 14戸
    主要採光面 北東 駐車場
    バイク置き場 駐輪場
    建物名・部屋番号 KANOE 201 ペット 小型犬可・ 猫可・ 小型犬~中型犬、猫、多頭飼相談
    アピールポイント 築浅物件♪ 礼金0敷金0で初期費用が抑えられます♪ ペット飼育可能♪(小型犬~中型犬、猫、多頭飼い相談 ※敷金増額が必要)インターネット無料♪(Wi-Fi対応) SOHO可♪(サロン等相談、保証金増額が必要)
    リフォーム履歴
    リノベーション履歴
    備考
    賃貸保証等:加入要(全保連・・・初回保証料:月額総賃料の60%~、継続保証料:年額1.2万円~)
    管理形態/管理員の勤務形態:-/巡回
    バルコニー:3.02m²
    IT重説対応物件、管理人巡回
    ・ペット飼育可能♪(小型犬~中型犬、猫、多頭飼い相談 ※敷金増額が必要)
    ・インターネット無料!(Wi-Fi対応・1G bps)
    ・SOHO可♪(サロン等相談、保証金増額が必要)
    エネルギー消費性能
    断熱性能
    目安光熱費
    バス・トイレ バス・トイレ別、浴室乾燥機、シャワー付洗面化粧台、洗面所独立、洗面所、洗面台、シャワー、温水洗浄便座、トイレ
    キッチン システムキッチン、2口コンロ、ガスコンロ付、ガスコンロ可
    セキュリティー モニター付オートロック、オートロック、モニター付インターホン、防犯カメラ、電動シャッター、シャッター雨戸、火災警報器(報知機)
    収納 全居室収納、収納スペース、クローゼット、シューズボックス
    設備・サービス 室内洗濯機置場、洗濯機置場、給湯、フローリング、室内物干し、プロパンガス、エアコン、暖房、冷房、人感センサー付照明、ダウンライト、照明器具、複層ガラス
    TV・通信 インターネット対応、インターネット使用料無料、CATVインターネット、ケーブルTV
    その他 宅配BOX、バルコニー
    契約期間 2年 現況 居住中
    条件等 入居可能時期 相談
    仲介手数料 1.1ヶ月    
    更新料 新賃料 1ヶ月 物件番号 6981532199
    情報公開日 2026年2月28日 次回更新予定日 2026年3月17日
    ケータイ用バーコード

    QRコード

    スマートフォンでこの物件を見る
    スマートフォンからもこの物件をご覧になれます。
    ※「-」と表示されている項目については、情報提供会社にご確認ください。

    この物件の周辺情報

    周辺施設 マミーマート松戸古ヶ崎店
    距離 414m
    周辺施設 ダイエー松戸西口店
    距離 505m
    周辺施設 セブンイレブン松戸樋野口店
    距離 48m
    周辺施設 マンゴツリーカフェ松戸古ヶ崎店
    距離 392m
    周辺施設 ウエルシア松戸樋野口店
    距離 149m
    周辺施設 医療法人財団松圓会東葛クリニック病院
    距離 489m
    周辺施設 松戸根本郵便局
    距離 628m
    周辺施設 松戸市役所
    距離 1097m

    クイックお問い合わせ

    ここから簡単にお問い合わせをすることができます。
    (SSLでの暗号化での送信を希望されるお客さまは こちら よりお問い合わせください)

    お問い合わせ内容(必須)
    お名前(必須) 姓  名 
    メールアドレス(必須)
    ※携帯電話のメールアドレスをご入力される方はこちらをご確認ください
    電話番号(必須)
    - -

    ※入力いただいた電話番号へSMSまたは音声でパスワードをご連絡します。

    携帯電話の番号をご入力の方へ

    携帯電話の番号をご入力の方へ
    確認画面にて送信ボタンをクリックするとSMSが携帯電話に届きます。
    そのSMSに記載のパスワード(認証番号)を入力し、お問い合わせを完了してください。
    尚、SMSの送信者番号は 0005 202 760 となります。
    これはアットホームの固定番号です。

    備考欄 希望条件、物件案内希望日、質問などがございましたらご記入ください。
    お問い合わせを行う前に「個人情報の取り扱いについて」を必ずお読みください。
    「個人情報の取り扱いについて」に同意いただいた場合は「上記にご同意の上 確認画面へ進む」のボタンをクリックしてください。

    個人情報の取り扱いについて

    皆さまが送付された個人情報はアットホーム(株)のサーバを経由し、お問い合わせ先の不動産会社にメールまたはFAXにて転送されるためアットホーム(株)にも保管されます。アットホーム(株)で保管された個人情報の取り扱いについては、【こちら】をご覧ください。
    また、本画面でご記入いただいた個人情報は、お問い合わせ先の不動産会社でも保管します。 お問い合わせ先の不動産会社が保管する個人情報の取り扱いについては、不動産会社に直接お問い合わせください。

    情報提供会社

    情報提供会社

    (株)R-NEXT

    千葉県知事免許(2)第17101号

    交通:
    JR常磐線/柏駅 徒歩4分
    千葉県柏市柏2丁目8-17 エミネンス柏ビル 1階
    TEL:
    04-7192-6791
    FAX:
    04-7192-6793
    所属団体:
    (一社)千葉県宅地建物取引業協会会員
    (公社)首都圏不動産公正取引協議会加盟

    取引態様:仲介

    • 会社情報
    • 00262732
    スマートフォンで
    この不動産会社を見る
    QRコード
    • とりあえず保存
    • お問い合わせ
    • 提携サイト等より掲載されている物件情報につきましては、不動産会社詳細情報にリンクされていないものがあります。
    • 物件に関するお問合せは、物件詳細ページの「情報提供会社」に表示されている不動産会社へ直接お願いいたします。
    • 間取図は、現況を優先させていただきます。
    • 映像は物件の一部を撮影したものです。物件の契約にあたっての最終判断はご自身の判断に基づいて行ってください。
    • 仲介手数料について仲介手数料

    アットホームは物件情報の適正化に努めております。 内容に誤りがある場合にはこちらへご連絡ください。

    【埼玉住まい情報】では、日本全国の物件から賃貸マンションや賃貸アパート・賃貸一戸建て等の賃貸住宅情報、新築マンション・分譲マンションや中古マンション等の売買マンション情報、新築一戸建てや中古一戸建てなどの戸建住宅、 土地など、総合的な不動産住宅情報検索サービスを提供致します。
    【埼玉住まい情報】から、選りすぐりの不動産物件を探してみましょう。

    【免責事項】
    このコーナーの運営はアットホーム株式会社(https://www.athome.co.jp/)が行っています。
    このコーナーに掲載している物件情報は、「アットホーム不動産情報ネットワーク」に加盟する不動産会社等(情報提供元)から提供されています。信頼性の高い情報提供が行えるよう、最大限の努力をしておりますが、その内容を保証するものではありません。 利用者のみなさまと各情報提供元との取引に起因する損害および情報が掲載されたことに起因する損害等については、株式会社イーシティ埼玉、およびアットホームは一切責任を負いません。
    各物件情報の内容や画像等はすべて現況を優先させていただきます。
    お取引等(お取引の準備、資金調達等を含みます)の際には、内容や契約条件等について、各情報提供元より十分な説明を受け、ご自身でご確認の上、判断してください。
    このコーナーへの物件情報のご掲載、その他不動産業務ソリューション等についての不動産会社様のお問合せはこちらからお願いいたします。

    物件画像: