福岡県北九州市小倉北区須賀町(小倉駅)の賃貸:物件詳細
交通 所在地 |
駅徒歩 |
賃料 管理費等 |
敷金/保証金 礼金 |
間取り 面積 |
物件種目 築年月 |
|
JR鹿児島本線/小倉 【バス】11分 須賀町(西鉄バス) 停歩5分
福岡県北九州市小倉北区須賀町
|
-
|
12.2万円
5,000円
|
1ヶ月 / なし
2ヶ月
|
3LDK
73.11m²
|
賃貸マンション
2021年11月(築4年)
|
ペット相談、分譲タイプ、天井高2.5M以上、24時間換気システム、外観タイル張り
|
|
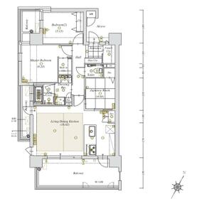
間取図
南面2.4Mのワイドバルコニー付きの収納豊富な3LDK。リビングダイニングの色付箇所は温水式床暖房
|
リビング
南側に面した日当り良好の広々LDK(リビングダイニングに温水式床暖房付)
|
その他の画像
|
| 交通 | JR鹿児島本線 小倉駅 【バス】 11分 須賀町(西鉄バス) 停歩5分 |
| 所在地 |
福岡県北九州市小倉北区須賀町
|
| 物件種目 |
賃貸マンション |
| 賃料 |
12.2万円 |
管理費等 |
5,000円 |
| 敷金 / 保証金 |
1ヶ月 / なし |
礼金 |
2ヶ月 |
| 敷引 |
- |
保証金償却 |
- |
| その他一時金 |
退去時クリーニング料:77,000円、セコム・インターネット登録料:11,000円 |
保険等 |
要 2年 家財 |
| 維持費等 |
- |
| 間取り |
3LDK(和 4 洋 6.3・5.1 LDK 16.6) |
専有面積 |
73.11m² |
| 築年月 |
2021年11月(築4年)
|
階建 / 階 |
9階建 / 2階 |
| 建物構造 |
RC |
総戸数 |
24戸 |
| 主要採光面 |
南東 |
駐車場 |
有 11,000円/月 |
| バイク置き場 |
- |
駐輪場 |
有 無料 |
| 建物名・部屋番号 |
以和貴マンション須賀町 201 |
ペット |
相談 |
| アピールポイント |
福岡教育大附属小中まで徒歩10分。
都心にほど近いのに自然豊かな住環境が魅力です。
エコタイプの給湯機・浴室暖房乾燥機付きでガス代が7%お得に。
電気は九電比12%安い料金。
インターネットも無料で使い放題。ランニングコストに優れます。
安心のセコムのセキュリティ。
下に人が住んでいないので階下の音を気にせずに暮らせます。
ガス温水式床暖房・食洗器・浴室暖房乾燥機付き。
大理石貼りの玄関。キッチン勝手口・お風呂に窓と贅沢な分譲仕様も魅力です。 |
| リフォーム履歴 |
- |
| リノベーション履歴 |
- |
| 備考 |
賃貸保証等:加入要(CIZ宅建保証)
管理形態/管理員の勤務形態:-/巡回
バルコニー:24.03m²
二重床・二重天井、管理人巡回
|
| エネルギー消費性能 |
- |
| 断熱性能 |
- |
| 目安光熱費 |
- |
| バス・トイレ |
バス・トイレ別、浴室暖房、浴室乾燥機、オートバス、追焚機能、シャワー付洗面化粧台、洗面所独立、洗面所、洗面台、シャワー、温水洗浄便座、トイレ |
| キッチン |
カウンターキッチン、システムキッチン、食器洗浄乾燥機、3口以上コンロ |
| セキュリティー |
モニター付オートロック、オートロック、ダブルロックドア、防犯カメラ、火災警報器(報知機) |
| 収納 |
全居室収納、ウォークインクローゼット、収納スペース |
| 設備・サービス |
床暖房、室内洗濯機置場、省エネ給湯器、都市ガス給湯、フローリング、アルコーブ、都市ガス、ダウンライト、複層ガラス |
| TV・通信 |
インターネット使用料無料、CS、BS端子 |
| その他 |
宅配BOX、ワイドバルコニー、バルコニー、駐輪場、エレベーター |
| 契約期間 |
2年 |
現況 |
空家 |
| 条件等 |
- |
入居可能時期 |
相談 |
| 仲介手数料 |
不要 |
|
|
| 更新料 |
なし |
物件番号 |
6981676206 |
| 情報公開日 |
2024年3月9日 |
次回更新予定日 |
2025年11月3日 |
| ケータイ用バーコード |
- スマートフォンでこの物件を見る
- スマートフォンからもこの物件をご覧になれます。
|
※「-」と表示されている項目については、情報提供会社にご確認ください。
| 周辺施設 |
マルショク富野店 |
| 距離 |
652m |
写真を見る |
| 周辺施設 |
ファッションセンターしまむら下富野店 |
| 距離 |
915m |
| 周辺施設 |
ファミリーマート小倉赤坂一丁目店 |
| 距離 |
148m |
| 周辺施設 |
ナフコツーワンスタイル富野店 |
| 距離 |
776m |
写真を見る |
| 周辺施設 |
福岡教育大附属小まで徒歩10分 |
| 距離 |
800m |
写真を見る |
ここから簡単にお問い合わせをすることができます。
(SSLでの暗号化での送信を希望されるお客さまは
こちら
よりお問い合わせください)
お問い合わせを行う前に
「個人情報の取り扱いについて」を必ずお読みください。
「個人情報の取り扱いについて」に同意いただいた場合は「上記にご同意の上 確認画面へ進む」のボタンをクリックしてください。
個人情報の取り扱いについて
皆さまが送付された個人情報はアットホーム(株)のサーバを経由し、お問い合わせ先の不動産会社にメールまたはFAXにて転送されるためアットホーム(株)にも保管されます。アットホーム(株)で保管された個人情報の取り扱いについては、【こちら】をご覧ください。
また、本画面でご記入いただいた個人情報は、お問い合わせ先の不動産会社でも保管します。 お問い合わせ先の不動産会社が保管する個人情報の取り扱いについては、不動産会社に直接お問い合わせください。
福岡県知事免許(14)第4142号 |
|---|
- 交通:
- 【西鉄バス】 日明1丁目 停歩2分
- 福岡県北九州市小倉北区愛宕1丁目3-3
- TEL:
- 093-561-6060
- FAX:
- 093-571-6768
- 所属団体:
- (公社)福岡県宅地建物取引業協会会員(一社)九州不動産公正取引協議会加盟
取引態様:貸主  - 80908065
|
- スマートフォンで
この不動産会社を見る

|
- 提携サイト等より掲載されている物件情報につきましては、不動産会社詳細情報にリンクされていないものがあります。
- 物件に関するお問合せは、物件詳細ページの「情報提供会社」に表示されている不動産会社へ直接お願いいたします。
- 間取図は、現況を優先させていただきます。
- 映像は物件の一部を撮影したものです。物件の契約にあたっての最終判断はご自身の判断に基づいて行ってください。
- 仲介手数料について

アットホームは物件情報の適正化に努めております。
内容に誤りがある場合にはこちらへご連絡ください。