東京都練馬区南田中5丁目(練馬高野台駅)の賃貸:物件詳細
交通 所在地 |
駅徒歩 |
賃料 管理費等 |
敷金/保証金 礼金 |
間取り 面積 |
物件種目 築年月 |
|
西武池袋線/練馬高野台
東京都練馬区南田中5丁目
|
8分
|
9.6万円
4,000円
|
1ヶ月 / なし
1ヶ月
|
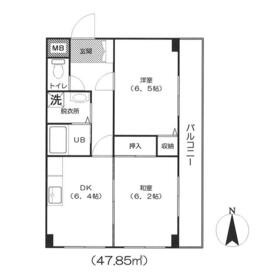
2DK
47.85m²
|
賃貸マンション
1996年10月(築29年3ヶ月)
|
| 交通 | 西武池袋線 練馬高野台駅 徒歩8分 |
|---|
| その他の交通 | 西武池袋線 石神井公園駅 徒歩16分 西武新宿線 井荻駅 徒歩19分 |
| 所在地 |
東京都練馬区南田中5丁目
|
| 物件種目 |
賃貸マンション |
| 賃料 |
9.6万円 |
管理費等 |
4,000円 |
| 敷金 / 保証金 |
1ヶ月 / なし |
礼金 |
1ヶ月 |
| 敷引 |
1ヶ月 |
保証金償却 |
- |
| その他一時金 |
鍵交換代等:16,500円~ |
保険等 |
要 2年 18,000円 |
| 維持費等 |
- |
| 間取り |
2DK(和 6.2 洋 6.5 DK 6.4) |
専有面積 |
47.85m² |
| 築年月 |
1996年10月(築29年3ヶ月)
|
階建 / 階 |
3階建 / 1階 |
| 建物構造 |
RC |
総戸数 |
- |
| 主要採光面 |
東 |
駐車場 |
- |
| バイク置き場 |
- |
駐輪場 |
- |
| 建物名・部屋番号 |
正建ビル 102 |
ペット |
-
|
| リフォーム履歴 |
- |
| リノベーション履歴 |
- |
| 備考 |
賃貸保証等:加入要(保証会社エルズサポート、初回保証委託料:支払賃料合計の50%、1年毎更新料1万円、口座引落手数料440円。※口座振替の利用は必須となります。※口座振替登録はWEB申込となります。)
管理形態/管理員の勤務形態:-/-
|
| エネルギー消費性能 |
- |
| 断熱性能 |
- |
| 目安光熱費 |
- |
| バス・トイレ |
バス・トイレ別、洗面台 |
| キッチン |
2口コンロ、ガスコンロ可 |
| セキュリティー |
- |
| 収納 |
- |
| 設備・サービス |
エアコン2台以上、室内洗濯機置場、エアコン |
| TV・通信 |
ケーブルTV |
| その他 |
バルコニー |
| 契約期間 |
2年 |
現況 |
空家 |
| 条件等 |
- |
入居可能時期 |
即時 |
| 仲介手数料 |
不要 |
|
|
| 更新料 |
新賃料 1ヶ月 |
物件番号 |
6981824456 |
| 情報公開日 |
2025年12月19日 |
次回更新予定日 |
2026年1月2日 |
| ケータイ用バーコード |
- スマートフォンでこの物件を見る
- スマートフォンからもこの物件をご覧になれます。
|
※「-」と表示されている項目については、情報提供会社にご確認ください。
ここから簡単にお問い合わせをすることができます。
(SSLでの暗号化での送信を希望されるお客さまは
こちら
よりお問い合わせください)
お問い合わせを行う前に
「個人情報の取り扱いについて」を必ずお読みください。
「個人情報の取り扱いについて」に同意いただいた場合は「上記にご同意の上 確認画面へ進む」のボタンをクリックしてください。
個人情報の取り扱いについて
皆さまが送付された個人情報はアットホーム(株)のサーバを経由し、お問い合わせ先の不動産会社にメールまたはFAXにて転送されるためアットホーム(株)にも保管されます。アットホーム(株)で保管された個人情報の取り扱いについては、【こちら】をご覧ください。
また、本画面でご記入いただいた個人情報は、お問い合わせ先の不動産会社でも保管します。 お問い合わせ先の不動産会社が保管する個人情報の取り扱いについては、不動産会社に直接お問い合わせください。
東京都知事免許(12)第38672号 |
|---|
- 交通:
- 西武池袋線/練馬駅 徒歩5分
- 東京都練馬区練馬1丁目18番18号-2F ヴェルデ・ヴィラ
- TEL:
- 03-5999-6873
- FAX:
- 03-5999-6879
- 所属団体:
- (公社)全日本不動産協会会員(公社)首都圏不動産公正取引協議会加盟
取引態様:貸主  - 00980002
|
- スマートフォンで
この不動産会社を見る

|
- 提携サイト等より掲載されている物件情報につきましては、不動産会社詳細情報にリンクされていないものがあります。
- 物件に関するお問合せは、物件詳細ページの「情報提供会社」に表示されている不動産会社へ直接お願いいたします。
- 間取図は、現況を優先させていただきます。
- 映像は物件の一部を撮影したものです。物件の契約にあたっての最終判断はご自身の判断に基づいて行ってください。
- 仲介手数料について

アットホームは物件情報の適正化に努めております。
内容に誤りがある場合にはこちらへご連絡ください。