熊本県菊池郡大津町大字森(瀬田駅)の賃貸:物件詳細
交通 所在地 |
駅徒歩 |
賃料 管理費等 |
敷金/保証金 礼金 |
間取り 面積 |
物件種目 築年月 |
|
JR豊肥本線/瀬田 [バス利用可] バス 熊本文化の森 停歩8分
熊本県菊池郡大津町大字森
|
32分
|
10万円
2,000円
|
20万円 / なし
なし
|
3LDK
72.24m²
|
賃貸一戸建て
2024年10月(築1年3ヶ月)
|
ペット相談、駐車場2台分、角部屋、高齢者相談、ルームシェア可、事務所使用可、3面採光、バリアフリー、閑静な住宅街、前面棟無、保証人不要
|
|
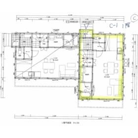
間取図
外壁の色は変わります
|
間取図
C-1東側1階 (C-2西側も募集中です)
|
<
その他の画像
>
|
|
|
- VR/パノラマで内見する
-
その場で物件を内見しているように見ることができます。
左のQRコードをスマートフォンで読み取って、再生されるVR画像をVRゴーグルでごらんください。
|
| 交通 | JR豊肥本線 瀬田駅 徒歩32分 [バス利用可] バス 熊本文化の森 停歩8分 |
| 所在地 |
熊本県菊池郡大津町大字森
|
| 物件種目 |
賃貸一戸建て |
| 賃料 |
10万円 |
管理費等 |
2,000円 |
| 敷金 / 保証金 |
20万円 / なし |
礼金 |
なし |
| 敷引 |
- |
保証金償却 |
- |
| その他一時金 |
- |
保険等 |
要 2年 15,500円 |
| 維持費等 |
町費:800円/年 |
| 間取り |
3LDK(洋 6・6・5 LDK 14) |
専有面積 |
72.24m² |
| 築年月 |
2024年10月(築1年3ヶ月)
|
階建 / 階 |
2階建 |
| 建物構造 |
木造 |
総戸数 |
6戸 |
| 主要採光面 |
|
駐車場 |
有 無料 |
| バイク置き場 |
有 |
駐輪場 |
有 無料 |
| 建物名・部屋番号 |
リズタウン大津 |
ペット |
小型犬可・ 猫可・ 規約有 大型犬不可 |
| アピールポイント |
賃料下がりました!
リズタウン大津は庭先でバーベキューができ、その庭先、リビングからは阿蘇山系が見え、豊肥線の列車が見えます。時には熊本空港の離発着も見えるデジタルでON/OFFの境目のない時代、田舎と都会の融合が感じられるアットホームな賃貸です。礼金0円、ペット(猫・小型犬)相談可、事務所利用可。カーテン・照明・エアコン2ヶ所付・カーポート付 お荷物入れたらすぐに生活できます。省令準耐火構造 |
| リフォーム履歴 |
- |
| リノベーション履歴 |
- |
| 備考 |
賃貸保証等:加入要(総賃料の50%~)
管理形態/管理員の勤務形態:-/-
テラスハウス
C-1東側 C-2西側(成約済)
他A棟1戸、B棟1戸有
全6戸新築
駐車場2台可能 カーポート付き(1台)
ペット可能、規約有 礼金1ヶ月
事務所利用の場合、礼金1ヶ月分
エアコン2台
全室照明・カーテン付き(小窓なし)
庭付き 眺望良
来客者駐車場(軽)有
|
| エネルギー消費性能 |
- |
| 断熱性能 |
- |
| 目安光熱費 |
- |
| バス・トイレ |
バス・トイレ別、洗面所独立、洗面所、洗面台、シャワー、温水洗浄便座、トイレ、浴室に窓あり |
| キッチン |
独立型キッチン、3口以上コンロ、2口コンロ、ガスコンロ付、ガスコンロ可 |
| セキュリティー |
モニター付インターホン、ディンプルキー、火災警報器(報知機) |
| 収納 |
ウォークインクローゼット、収納スペース、クローゼット、シューズボックス、床下収納 |
| 設備・サービス |
エアコン2台以上、室内洗濯機置場、洗濯機置場、プロパンガス給湯、給湯、フローリング、プロパンガス、エアコン、暖房、冷房、照明器具 |
| TV・通信 |
- |
| その他 |
バイク置き場、来客用駐車場、専用庭、庭、バルコニー、駐輪場 |
| 契約期間 |
2年 |
現況 |
空家 |
| 条件等 |
- |
入居可能時期 |
即時 |
| 仲介手数料 |
不要 |
|
|
| 更新料 |
10,000円 |
物件番号 |
6982001368 |
| 情報公開日 |
2024年4月8日 |
次回更新予定日 |
2026年1月1日 |
| ケータイ用バーコード |
- スマートフォンでこの物件を見る
- スマートフォンからもこの物件をご覧になれます。
|
※「-」と表示されている項目については、情報提供会社にご確認ください。
| 周辺施設 |
セブンイレブン熊本大津店 |
| 距離 |
662m |
| 周辺施設 |
ローソン大津運動公園入口店 |
| 距離 |
861m |
ここから簡単にお問い合わせをすることができます。
(SSLでの暗号化での送信を希望されるお客さまは
こちら
よりお問い合わせください)
お問い合わせを行う前に
「個人情報の取り扱いについて」を必ずお読みください。
「個人情報の取り扱いについて」に同意いただいた場合は「上記にご同意の上 確認画面へ進む」のボタンをクリックしてください。
個人情報の取り扱いについて
皆さまが送付された個人情報はアットホーム(株)のサーバを経由し、お問い合わせ先の不動産会社にメールまたはFAXにて転送されるためアットホーム(株)にも保管されます。アットホーム(株)で保管された個人情報の取り扱いについては、【こちら】をご覧ください。
また、本画面でご記入いただいた個人情報は、お問い合わせ先の不動産会社でも保管します。 お問い合わせ先の不動産会社が保管する個人情報の取り扱いについては、不動産会社に直接お問い合わせください。
熊本県知事免許(6)第4122号 |
|---|
- 交通:
- 【バス】 北窪バス停 停歩2分
- 熊本県熊本市中央区神水1丁目37-18
- TEL:
- 096-383-0035
- FAX:
- 096-383-0087
- 所属団体:
- (公社)全日本不動産協会会員(一社)九州不動産公正取引協議会加盟
取引態様:仲介  - 80700041
|
- スマートフォンで
この不動産会社を見る

|
- 提携サイト等より掲載されている物件情報につきましては、不動産会社詳細情報にリンクされていないものがあります。
- 物件に関するお問合せは、物件詳細ページの「情報提供会社」に表示されている不動産会社へ直接お願いいたします。
- 間取図は、現況を優先させていただきます。
- 映像は物件の一部を撮影したものです。物件の契約にあたっての最終判断はご自身の判断に基づいて行ってください。
- 仲介手数料について

アットホームは物件情報の適正化に努めております。
内容に誤りがある場合にはこちらへご連絡ください。