福岡県久留米市篠原町(西鉄久留米駅)の賃貸:物件詳細
交通 所在地 |
駅徒歩 |
賃料 管理費等 |
敷金/保証金 礼金 |
間取り 面積 |
物件種目 築年月 |
|
西鉄天神大牟田線/西鉄久留米
福岡県久留米市篠原町
|
6分
|
3.2万円
800円
|
なし / なし
なし
|
ワンルーム
21.28m²
|
賃貸マンション
1991年3月(築34年10ヶ月)
|
保証人不要
|
|
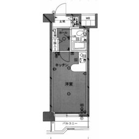
間取図
現況を優先します。
|
外観
|
その他の画像
|
| 交通 | 西鉄天神大牟田線 西鉄久留米駅 徒歩6分 |
|---|
| その他の交通 | 西鉄天神大牟田線 櫛原駅 徒歩13分 JR久大本線 南久留米駅 徒歩24分 |
| 所在地 |
福岡県久留米市篠原町
|
| 物件種目 |
賃貸マンション |
| 賃料 |
3.2万円 |
管理費等 |
800円 |
| 敷金 / 保証金 |
なし / なし |
礼金 |
なし |
| 敷引 |
- |
保証金償却 |
- |
| その他一時金 |
室内除菌費用:11,000円、室内消毒費用:11,000円、鍵交換代等:33,000円~ |
保険等 |
要 2年 20,000円 日本共済 |
| 維持費等 |
- |
| 間取り |
ワンルーム(洋 8.4) |
専有面積 |
21.28m² |
| 築年月 |
1991年3月(築34年10ヶ月)
|
階建 / 階 |
11階建 / 2階 |
| 建物構造 |
SRC |
総戸数 |
- |
| 主要採光面 |
|
駐車場 |
無 |
| バイク置き場 |
無 |
駐輪場 |
無 |
| 建物名・部屋番号 |
トーカンマンション久留米駅東 208 |
ペット |
-
|
| アピールポイント |
西鉄久留米駅まで徒歩圏内♪中国語・韓国語・英語対応可能♪ |
| リフォーム履歴 |
- |
| リノベーション履歴 |
- |
| 備考 |
賃貸保証等:加入要(ジェイリース 日本国籍の方はプラン選択可(外国籍の方は80%更新料10,000円のプランとなります)※最低保証有)
管理形態/管理員の勤務形態:-/-
バルコニー:3.11m²
非喫煙者限定
西鉄久留米駅まで徒歩圏内♪中国語・韓国語・英語対応可能♪
|
| エネルギー消費性能 |
- |
| 断熱性能 |
- |
| 目安光熱費 |
- |
| バス・トイレ |
バス・トイレ同室、シャワー、トイレ |
| キッチン |
IHクッキングヒーター |
| セキュリティー |
オートロック |
| 収納 |
収納スペース、クローゼット、シューズボックス |
| 設備・サービス |
室内洗濯機置場、洗濯機置場、給湯、全居室フローリング、フローリング、エアコン |
| TV・通信 |
- |
| その他 |
バルコニー、エレベーター |
| 契約期間 |
2年 |
現況 |
空家 |
| 条件等 |
- |
入居可能時期 |
即時 |
| 更新料 |
旧賃料 11,000円 |
物件番号 |
6982412685 |
| 情報公開日 |
2024年5月21日 |
次回更新予定日 |
2026年1月5日 |
| ケータイ用バーコード |
- スマートフォンでこの物件を見る
- スマートフォンからもこの物件をご覧になれます。
|
※「-」と表示されている項目については、情報提供会社にご確認ください。
| 周辺施設 |
フードウェイ西鉄久留米駅前店 |
| 距離 |
373m |
| 周辺施設 |
セブンイレブン久留米中央店 |
| 距離 |
336m |
| 周辺施設 |
私立久留米大学御井キャンパス |
| 距離 |
2640m |
| 周辺施設 |
西日本シティ銀行東久留米支店 |
| 距離 |
249m |
ここから簡単にお問い合わせをすることができます。
(SSLでの暗号化での送信を希望されるお客さまは
こちら
よりお問い合わせください)
お問い合わせを行う前に
「個人情報の取り扱いについて」を必ずお読みください。
「個人情報の取り扱いについて」に同意いただいた場合は「上記にご同意の上 確認画面へ進む」のボタンをクリックしてください。
個人情報の取り扱いについて
皆さまが送付された個人情報はアットホーム(株)のサーバを経由し、お問い合わせ先の不動産会社にメールまたはFAXにて転送されるためアットホーム(株)にも保管されます。アットホーム(株)で保管された個人情報の取り扱いについては、【こちら】をご覧ください。
また、本画面でご記入いただいた個人情報は、お問い合わせ先の不動産会社でも保管します。 お問い合わせ先の不動産会社が保管する個人情報の取り扱いについては、不動産会社に直接お問い合わせください。
国土交通大臣免許(1)第10652号 |
|---|
- 交通:
- JR鹿児島本線/博多駅 徒歩2分
- 福岡県福岡市博多区博多駅前2丁目3-12 ブラザー博多駅前ビル4F
- TEL:
- 092-433-3711
- FAX:
- 092-433-3717
- 所属団体:
- (公社)福岡県宅地建物取引業協会会員(公財)日本賃貸住宅管理協会会員(一社)九州不動産公正取引協議会加盟
取引態様:代理  - 80005367
|
- スマートフォンで
この不動産会社を見る

|
- 提携サイト等より掲載されている物件情報につきましては、不動産会社詳細情報にリンクされていないものがあります。
- 物件に関するお問合せは、物件詳細ページの「情報提供会社」に表示されている不動産会社へ直接お願いいたします。
- 間取図は、現況を優先させていただきます。
- 映像は物件の一部を撮影したものです。物件の契約にあたっての最終判断はご自身の判断に基づいて行ってください。
- 仲介手数料について

アットホームは物件情報の適正化に努めております。
内容に誤りがある場合にはこちらへご連絡ください。