熊本県熊本市東区保田窪本町(東海学園前駅)の賃貸:物件詳細
交通 所在地 |
駅徒歩 |
賃料 管理費等 |
敷金/保証金 礼金 |
間取り 面積 |
物件種目 築年月 |
|
JR豊肥本線/東海学園前 [バス利用可] バス 南郷団地入口 停歩2分
熊本県熊本市東区保田窪本町
|
14分
|
2.8万円
2,000円
|
なし / なし
なし
|
1K
22.80m²
|
賃貸マンション
1994年3月(築31年10ヶ月)
|
フリーレント、角部屋、最上階
|
|
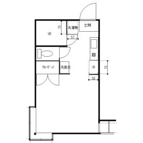
間取図
角部屋です♪大きな出窓があります♪
|
外観
タイル張りです♪
|
その他の画像
|
| 交通 | JR豊肥本線 東海学園前駅 徒歩14分 [バス利用可] バス 南郷団地入口 停歩2分 |
| 所在地 |
熊本県熊本市東区保田窪本町
|
| 物件種目 |
賃貸マンション |
| 賃料 |
2.8万円 |
管理費等 |
2,000円 |
| 敷金 / 保証金 |
なし / なし |
礼金 |
なし |
| 敷引 |
- |
保証金償却 |
- |
| その他一時金 |
町内会費 年間:1,800円、室内清掃代:27,500円、賃貸保証会社保証料:15,000円、鍵交換代等:14,300円~ |
保険等 |
要 2年 19,000円 |
| 維持費等 |
- |
| 間取り |
1K(洋 8) |
専有面積 |
22.80m² |
| 築年月 |
1994年3月(築31年10ヶ月)
|
階建 / 階 |
4階建 / 4階 |
| 建物構造 |
RC |
総戸数 |
20戸 |
| 主要採光面 |
南東 |
駐車場 |
空無 |
| バイク置き場 |
- |
駐輪場 |
- |
| 建物名・部屋番号 |
望星壱番館 401 |
ペット |
-
|
| リフォーム履歴 |
- |
| リノベーション履歴 |
- |
| 備考 |
賃貸保証等:加入要(当社指定保証会社にご加入いただきます。賃料総額の50%)
管理形態/管理員の勤務形態:-/-
フリーレント:1ヶ月(他業者を介せず弊社に直接入居申込をされた方に限ります)
雑費2,000円は水道料です。
電気コンロ付き!!
独立洗面台もついてます(*^_^*)
|
| エネルギー消費性能 |
- |
| 断熱性能 |
- |
| 目安光熱費 |
- |
| バス・トイレ |
バス・トイレ別、洗面台、シャワー、トイレ |
| キッチン |
電気コンロ |
| セキュリティー |
火災警報器(報知機) |
| 収納 |
収納スペース |
| 設備・サービス |
室内洗濯機置場、給湯、出窓、フローリング、プロパンガス、エアコン、照明器具 |
| TV・通信 |
ケーブルTV |
| その他 |
- |
| 契約期間 |
2年 |
現況 |
空家 |
| 条件等 |
- |
入居可能時期 |
相談 |
| 更新料 |
- |
物件番号 |
6983013587 |
| 情報公開日 |
2024年7月23日 |
次回更新予定日 |
2026年1月2日 |
| ケータイ用バーコード |
- スマートフォンでこの物件を見る
- スマートフォンからもこの物件をご覧になれます。
|
※「-」と表示されている項目については、情報提供会社にご確認ください。
| 周辺施設 |
イワサキ・エース新南部店 |
| 距離 |
885m |
| 周辺施設 |
ドラッグストアコスモス八反田店 |
| 距離 |
823m |
| 周辺施設 |
セブンイレブン熊本西原1丁目店 |
| 距離 |
363m |
| 周辺施設 |
CoCo壱番屋 熊本保田窪店 |
| 距離 |
213m |
ここから簡単にお問い合わせをすることができます。
(SSLでの暗号化での送信を希望されるお客さまは
こちら
よりお問い合わせください)
お問い合わせを行う前に
「個人情報の取り扱いについて」を必ずお読みください。
「個人情報の取り扱いについて」に同意いただいた場合は「上記にご同意の上 確認画面へ進む」のボタンをクリックしてください。
個人情報の取り扱いについて
皆さまが送付された個人情報はアットホーム(株)のサーバを経由し、お問い合わせ先の不動産会社にメールまたはFAXにて転送されるためアットホーム(株)にも保管されます。アットホーム(株)で保管された個人情報の取り扱いについては、【こちら】をご覧ください。
また、本画面でご記入いただいた個人情報は、お問い合わせ先の不動産会社でも保管します。 お問い合わせ先の不動産会社が保管する個人情報の取り扱いについては、不動産会社に直接お問い合わせください。
熊本県知事免許(9)第3117号 |
|---|
- 交通:
- 【バス】 大江川鶴
- 熊本県熊本市中央区大江1丁目10-25
- TEL:
- 096-372-0008
- FAX:
- 096-371-0025
- 所属団体:
- (公社)熊本県宅地建物取引業協会会員(一社)九州不動産公正取引協議会加盟
取引態様:代理  - 80500321
|
- スマートフォンで
この不動産会社を見る

|
- 提携サイト等より掲載されている物件情報につきましては、不動産会社詳細情報にリンクされていないものがあります。
- 物件に関するお問合せは、物件詳細ページの「情報提供会社」に表示されている不動産会社へ直接お願いいたします。
- 間取図は、現況を優先させていただきます。
- 映像は物件の一部を撮影したものです。物件の契約にあたっての最終判断はご自身の判断に基づいて行ってください。
- 仲介手数料について

アットホームは物件情報の適正化に努めております。
内容に誤りがある場合にはこちらへご連絡ください。