東京都世田谷区祖師谷4丁目(祖師ヶ谷大蔵駅)の賃貸:物件詳細
交通 所在地 |
駅徒歩 |
賃料 管理費等 |
敷金/保証金 礼金 |
間取り 面積 |
物件種目 築年月 |
|
小田急小田原線/祖師ヶ谷大蔵
東京都世田谷区祖師谷4丁目
|
7分
|
5.3万円
2,000円
|
なし / なし
なし
|
1K
22.50m²
|
賃貸アパート
1987年1月(築39年2ヶ月)
|
最上階、閑静な住宅街
|
|
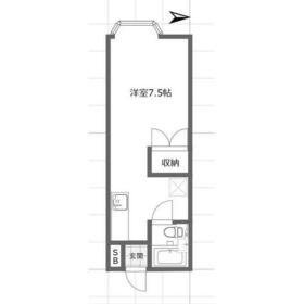
間取図
|
|
その他の画像
|
| 交通 | 小田急小田原線 祖師ヶ谷大蔵駅 徒歩7分 |
|---|
| その他の交通 | 小田急小田原線 成城学園前駅 徒歩19分 小田急小田原線 千歳船橋駅 徒歩22分 |
| 所在地 |
東京都世田谷区祖師谷4丁目
|
| 物件種目 |
賃貸アパート |
| 賃料 |
5.3万円 |
管理費等 |
2,000円 |
| 敷金 / 保証金 |
なし / なし |
礼金 |
なし |
| 敷引 |
- |
保証金償却 |
- |
| その他一時金 |
24時間サポート:16,500円、退去時クリーニング費用:44,000円、鍵交換代等:17,600円~ |
保険等 |
要 2年 18,000円 |
| 維持費等 |
- |
| 間取り |
1K(洋 7.5 K 2.5) |
専有面積 |
22.50m² |
| 築年月 |
1987年1月(築39年2ヶ月)
|
階建 / 階 |
2階建 / 2階 |
| 建物構造 |
木造 |
総戸数 |
- |
| 主要採光面 |
西 |
駐車場 |
- |
| バイク置き場 |
- |
駐輪場 |
- |
| 建物名・部屋番号 |
|
ペット |
-
|
| アピールポイント |
敷金礼金無し!2階 広めの居室 |
| リフォーム履歴 |
- |
| リノベーション履歴 |
- |
| 備考 |
賃貸保証等:加入要(初回保証委託料:賃料総額の50%~)
管理形態/管理員の勤務形態:-/-
|
| エネルギー消費性能 |
- |
| 断熱性能 |
- |
| 目安光熱費 |
- |
| バス・トイレ |
洗面台、バス・トイレ同室、シャワー、トイレ |
| キッチン |
2口コンロ、ガスコンロ可 |
| セキュリティー |
- |
| 収納 |
収納スペース、シューズボックス |
| 設備・サービス |
室内洗濯機置場、都市ガス給湯、給湯、フローリング、都市ガス、エアコン、暖房、冷房 |
| TV・通信 |
CATVインターネット、ケーブルTV |
| その他 |
- |
| 契約期間 |
2年 |
現況 |
空家 |
| 条件等 |
- |
入居可能時期 |
相談 |
| 仲介手数料 |
1.1ヶ月 |
|
|
| 更新料 |
新賃料 1ヶ月 |
物件番号 |
6983124693 |
| 情報公開日 |
2025年6月9日 |
次回更新予定日 |
2026年2月8日 |
| ケータイ用バーコード |
- スマートフォンでこの物件を見る
- スマートフォンからもこの物件をご覧になれます。
|
※「-」と表示されている項目については、情報提供会社にご確認ください。
| 周辺施設 |
ビッグ・エー世田谷祖師谷店 |
| 距離 |
69m |
| 周辺施設 |
社会福祉法人多摩福祉会砧保育園 |
| 距離 |
25m |
| 周辺施設 |
ディスカウントドラッグコスモス祖師谷店 |
| 距離 |
117m |
| 周辺施設 |
ココカラファイン祖師谷一丁目店 |
| 距離 |
171m |
| 周辺施設 |
ファミリーマートまるいし祖師谷店 |
| 距離 |
184m |
ここから簡単にお問い合わせをすることができます。
(SSLでの暗号化での送信を希望されるお客さまは
こちら
よりお問い合わせください)
お問い合わせを行う前に
「個人情報の取り扱いについて」を必ずお読みください。
「個人情報の取り扱いについて」に同意いただいた場合は「上記にご同意の上 確認画面へ進む」のボタンをクリックしてください。
個人情報の取り扱いについて
皆さまが送付された個人情報はアットホーム(株)のサーバを経由し、お問い合わせ先の不動産会社にメールまたはFAXにて転送されるためアットホーム(株)にも保管されます。アットホーム(株)で保管された個人情報の取り扱いについては、【こちら】をご覧ください。
また、本画面でご記入いただいた個人情報は、お問い合わせ先の不動産会社でも保管します。 お問い合わせ先の不動産会社が保管する個人情報の取り扱いについては、不動産会社に直接お問い合わせください。
東京都知事免許(1)第110852号 |
|---|
- 交通:
- 小田急小田原線/千歳船橋駅 徒歩4分
- 東京都世田谷区船橋1丁目14-12 ハイブリッヂ船橋102
- TEL:
- 03-6413-0679
- 所属団体:
- (公社)東京都宅地建物取引業協会会員(公社)首都圏不動産公正取引協議会加盟
取引態様:仲介  - 00277783
|
- スマートフォンで
この不動産会社を見る

|
- 提携サイト等より掲載されている物件情報につきましては、不動産会社詳細情報にリンクされていないものがあります。
- 物件に関するお問合せは、物件詳細ページの「情報提供会社」に表示されている不動産会社へ直接お願いいたします。
- 間取図は、現況を優先させていただきます。
- 映像は物件の一部を撮影したものです。物件の契約にあたっての最終判断はご自身の判断に基づいて行ってください。
- 仲介手数料について

アットホームは物件情報の適正化に努めております。
内容に誤りがある場合にはこちらへご連絡ください。