東京都渋谷区代々木1丁目(代々木駅)の賃貸:物件詳細
交通 所在地 |
駅徒歩 |
賃料 管理費等 |
敷金/保証金 礼金 |
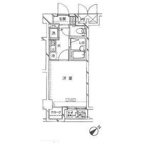
間取り 面積 |
物件種目 築年月 |
JR山手線/代々木
東京都渋谷区代々木1丁目
|
3分
|
9.3万円
15,000円
|
なし / なし
1ヶ月
|
1K
22.08m²
|
賃貸マンション
2002年9月(築23年2ヶ月)
|
分譲タイプ、IT重説対応物件、保証人不要
|
間取図
|
共有部分
|
その他の画像
|
交通 | JR山手線 代々木駅 徒歩3分 |
---|
その他の交通 | JR埼京線 新宿駅 徒歩15分 東京メトロ副都心線 北参道駅 徒歩8分 |
所在地 |
東京都渋谷区代々木1丁目
|
物件種目 |
賃貸マンション |
賃料 |
9.3万円 |
管理費等 |
15,000円 |
敷金 / 保証金 |
なし / なし |
礼金 |
1ヶ月 |
敷引 |
- |
保証金償却 |
- |
その他一時金 |
事務手数料:16,500円、シジンサポート(24時間サポート):23,100円、鍵交換代等:33,000円~ |
保険等 |
要 2年 22,000円 少額短期 |
維持費等 |
- |
間取り |
1K |
専有面積 |
22.08m² |
築年月 |
2002年9月(築23年2ヶ月)
|
階建 / 階 |
7階建 / 4階 |
建物構造 |
RC |
総戸数 |
47戸 |
主要採光面 |
南東 |
駐車場 |
無 |
バイク置き場 |
無 |
駐輪場 |
- |
建物名・部屋番号 |
ドルチェ代々木 406 |
ペット |
-
|
アピールポイント |
コストに敏感な方のスマートチョイス!敷金(保証金)0円。受け取りに心配なしの宅配BOX付、更に無駄のない造りのシステムキッチンなので、日々のお料理が楽しくはかどります。また出不精さんでも活動的になれる?代々木駅徒歩3分ロケーションで、その上不審者の侵入に目を光らせる防犯カメラ完備なので、空き巣を躊躇させる効果があります。ちなみに外出が多い生活で重宝する浴室乾燥機付です。気ままな一人暮らしを満喫できる1K。実際の空間をご自身で体感ください。 |
リフォーム履歴 |
- |
リノベーション履歴 |
- |
備考 |
賃貸保証等:加入要(賃貸保証サポート・総額家賃100%)
管理形態/管理員の勤務形態:-/巡回
バルコニー:1.62m²
単身者限定、非喫煙者限定、IT重説対応物件、管理人巡回
|
エネルギー消費性能 |
- |
断熱性能 |
- |
目安光熱費 |
- |
バス・トイレ |
バス・トイレ別、浴室乾燥機、温水洗浄便座 |
キッチン |
システムキッチン、ガスコンロ付 |
セキュリティー |
モニター付オートロック、オートロック、ディンプルキー、防犯カメラ |
収納 |
収納スペース、シューズボックス |
設備・サービス |
室内洗濯機置場、フローリング、都市ガス、エアコン、照明器具 |
TV・通信 |
インターネット対応 |
その他 |
バルコニー、エレベーター |
契約期間 |
2年 |
現況 |
空家 |
条件等 |
- |
入居可能時期 |
相談 |
更新料 |
新賃料 1ヶ月 |
物件番号 |
6983392057 |
情報公開日 |
2025年9月18日 |
次回更新予定日 |
2025年10月27日 |
ケータイ用バーコード |
- スマートフォンでこの物件を見る
- スマートフォンからもこの物件をご覧になれます。
|
※「-」と表示されている項目については、情報提供会社にご確認ください。
周辺施設 |
代々木VILLAGEbykurkku |
距離 |
161m |
周辺施設 |
ファミリーマート代々木駅西店 |
距離 |
300m |
周辺施設 |
セブンイレブン渋谷代々木1丁目南店 |
距離 |
214m |
周辺施設 |
CoCo壱番屋代々木駅西口店 |
距離 |
469m |
周辺施設 |
ウェンディーズファーストキッチン代々木駅前店 |
距離 |
322m |
周辺施設 |
スターバックスコーヒー代々木店 |
距離 |
326m |
ここから簡単にお問い合わせをすることができます。
(SSLでの暗号化での送信を希望されるお客さまは
こちら
よりお問い合わせください)
お問い合わせを行う前に
「個人情報の取り扱いについて」を必ずお読みください。
「個人情報の取り扱いについて」に同意いただいた場合は「上記にご同意の上 確認画面へ進む」のボタンをクリックしてください。
個人情報の取り扱いについて
皆さまが送付された個人情報はアットホーム(株)のサーバを経由し、お問い合わせ先の不動産会社にメールまたはFAXにて転送されるためアットホーム(株)にも保管されます。アットホーム(株)で保管された個人情報の取り扱いについては、【こちら】をご覧ください。
また、本画面でご記入いただいた個人情報は、お問い合わせ先の不動産会社でも保管します。 お問い合わせ先の不動産会社が保管する個人情報の取り扱いについては、不動産会社に直接お問い合わせください。
国土交通大臣免許(1)第10432号 |
---|
- 交通:
- JR山手線/五反田駅 徒歩3分
- 東京都港区港南2丁目16-4 品川グランドセントラルタワー17階
- TEL:
- 03-6712-8148
- FAX:
- 03-6712-8149
- 所属団体:
- (公社)全日本不動産協会会員(公社)首都圏不動産公正取引協議会加盟
取引態様:代理  - 00260101
|
- スマートフォンで
この不動産会社を見る

|
- 提携サイト等より掲載されている物件情報につきましては、不動産会社詳細情報にリンクされていないものがあります。
- 物件に関するお問合せは、物件詳細ページの「情報提供会社」に表示されている不動産会社へ直接お願いいたします。
- 間取図は、現況を優先させていただきます。
- 映像は物件の一部を撮影したものです。物件の契約にあたっての最終判断はご自身の判断に基づいて行ってください。
- 仲介手数料について

アットホームは物件情報の適正化に努めております。
内容に誤りがある場合にはこちらへご連絡ください。