京都府城陽市寺田市ノ久保(城陽駅)の賃貸:物件詳細
交通 所在地 |
駅徒歩 |
賃料 管理費等 |
敷金/保証金 礼金 |
間取り 面積 |
物件種目 築年月 |
|
JR奈良線/城陽
京都府城陽市寺田市ノ久保
|
11分
|
7万円
なし
|
2ヶ月 / なし
1ヶ月
|
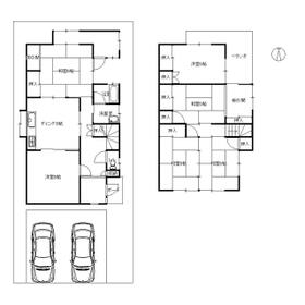
6SDK
102.67m²
|
賃貸一戸建て
1978年10月(築47年3ヶ月)
|
ペット相談、駐車場2台分、2面採光、閑静な住宅街
|
|
間取図
|
外観
|
<
その他の画像
>
|
| 交通 | JR奈良線 城陽駅 徒歩11分 |
| 所在地 |
京都府城陽市寺田市ノ久保
|
| 物件種目 |
賃貸一戸建て |
| 賃料 |
7万円 |
管理費等 |
なし |
| 敷金 / 保証金 |
2ヶ月 / なし |
礼金 |
1ヶ月 |
| 敷引 |
- |
保証金償却 |
- |
| その他一時金 |
- |
保険等 |
要 |
| 維持費等 |
- |
| 間取り |
6SDK(和 6・6・6・6 洋 8・6 DK 8) |
専有面積 |
102.67m² |
| 築年月 |
1978年10月(築47年3ヶ月)
|
階建 / 階 |
2階建 |
| 建物構造 |
木造 |
総戸数 |
- |
| 主要採光面 |
|
駐車場 |
有 無料 |
| バイク置き場 |
有 無料 |
駐輪場 |
有 無料 |
| 建物名・部屋番号 |
|
ペット |
小型犬可 |
| アピールポイント |
◆6SDKの広々とした間取りです
◆2面採光のお部屋もあり日当たり・通風良好
◆収納スペースも多数ございます
◆ハウスクリーニング後に引き渡し
◆寺田小学校・城陽中学校
お気軽にお問い合わせください! |
| リフォーム履歴 |
■水回り:2019年6月 トイレ ■内装:2019年3月 壁・天井(クロス・塗装等) 玄関ドア 1階和室畳新調 2階和室上敷き新調 ※実施年月は最も古い履歴を表示 |
| リノベーション履歴 |
- |
| 備考 |
管理形態/管理員の勤務形態:-/-
※短期借家としても可(敷金:賃料1.5ヶ月分 礼金:賃料1ヶ月分)
|
| エネルギー消費性能 |
- |
| 断熱性能 |
- |
| 目安光熱費 |
- |
| バス・トイレ |
バス・トイレ別、洗面所独立、洗面台、浴室に窓あり |
| キッチン |
ガスコンロ可 |
| セキュリティー |
- |
| 収納 |
収納スペース、シューズボックス |
| 設備・サービス |
室内洗濯機置場、出窓、都市ガス |
| TV・通信 |
- |
| その他 |
バイク置き場、駐輪場 |
| 契約期間 |
5年 |
現況 |
空家 |
| 条件等 |
定期借家 |
入居可能時期 |
指定有り2025年11月30日 |
| 更新料 |
- |
物件番号 |
6983440727 |
| 情報公開日 |
2025年10月10日 |
次回更新予定日 |
2025年12月9日 |
| ケータイ用バーコード |
- スマートフォンでこの物件を見る
- スマートフォンからもこの物件をご覧になれます。
|
※「-」と表示されている項目については、情報提供会社にご確認ください。
| 周辺施設 |
ファミリーマート城陽駅南店 |
| 距離 |
606m |
写真を見る |
| 周辺施設 |
城陽市立寺田小学校 |
| 距離 |
919m |
写真を見る |
| 周辺施設 |
城陽市立城陽中学校 |
| 距離 |
733m |
写真を見る |
| 周辺施設 |
城陽深谷郵便局 |
| 距離 |
578m |
写真を見る |
ここから簡単にお問い合わせをすることができます。
(SSLでの暗号化での送信を希望されるお客さまは
こちら
よりお問い合わせください)
お問い合わせを行う前に
「個人情報の取り扱いについて」を必ずお読みください。
「個人情報の取り扱いについて」に同意いただいた場合は「上記にご同意の上 確認画面へ進む」のボタンをクリックしてください。
個人情報の取り扱いについて
皆さまが送付された個人情報はアットホーム(株)のサーバを経由し、お問い合わせ先の不動産会社にメールまたはFAXにて転送されるためアットホーム(株)にも保管されます。アットホーム(株)で保管された個人情報の取り扱いについては、【こちら】をご覧ください。
また、本画面でご記入いただいた個人情報は、お問い合わせ先の不動産会社でも保管します。 お問い合わせ先の不動産会社が保管する個人情報の取り扱いについては、不動産会社に直接お問い合わせください。
京都府知事免許(9)第8523号 |
|---|
- 交通:
- JR奈良線/城陽駅 徒歩5分
- 京都府城陽市寺田水度坂15-405
- TEL:
- 0774-54-1289
- FAX:
- 0774-54-1296
- 所属団体:
- (公社)京都府宅地建物取引業協会会員(公社)近畿地区不動産公正取引協議会加盟
取引態様:仲介  - 50025683
|
- スマートフォンで
この不動産会社を見る

|
- 提携サイト等より掲載されている物件情報につきましては、不動産会社詳細情報にリンクされていないものがあります。
- 物件に関するお問合せは、物件詳細ページの「情報提供会社」に表示されている不動産会社へ直接お願いいたします。
- 間取図は、現況を優先させていただきます。
- 映像は物件の一部を撮影したものです。物件の契約にあたっての最終判断はご自身の判断に基づいて行ってください。
- 仲介手数料について

アットホームは物件情報の適正化に努めております。
内容に誤りがある場合にはこちらへご連絡ください。