北海道札幌市白石区川北一条3丁目(平和駅)の賃貸:物件詳細
交通 所在地 |
駅徒歩 |
賃料 管理費等 |
敷金/保証金 礼金 |
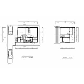
間取り 面積 |
物件種目 築年月 |
|
JR千歳線/平和
北海道札幌市白石区川北一条3丁目
|
13分
|
6万円
-
|
なし / なし
なし
|
3LDK
60.75m²
|
賃貸一戸建て
1971年9月(築54年4ヶ月)
|
DIY可、ペット相談、楽器相談、駐車場2台分、事務所使用可、SOHO向き、IT重説対応物件、保証人不要
|
|
間取図
|
外観
|
その他の画像
|
| 交通 | JR千歳線 平和駅 徒歩13分 |
| 所在地 |
北海道札幌市白石区川北一条3丁目
|
| 物件種目 |
賃貸一戸建て |
| 賃料 |
6万円 |
管理費等 |
- |
| 敷金 / 保証金 |
なし / なし |
礼金 |
なし |
| 敷引 |
- |
保証金償却 |
- |
| その他一時金 |
- |
保険等 |
不要 |
| 維持費等 |
- |
クレジットカード決済 |
初期費用可 |
| 間取り |
3LDK(和 6・6 洋 4.5 LDK 6) |
専有面積 |
60.75m² |
| 築年月 |
1971年9月(築54年4ヶ月)
|
階建 / 階 |
2階建 |
| 建物構造 |
木造 |
総戸数 |
- |
| 主要採光面 |
|
駐車場 |
- |
| バイク置き場 |
有 無料 |
駐輪場 |
有 無料 |
| 建物名・部屋番号 |
|
ペット |
小型犬可・ 大型犬可・ 猫可・ 多頭飼いOK |
| アピールポイント |
釘やビスを気兼ねなく打てるので、DIYをしたい住まいにはうってつけの素材です。思い通りのリノベーションで居心地のよい場所に。リフォームの相談等は遠慮なくお問合せください。 |
| リフォーム履歴 |
- |
| リノベーション履歴 |
- |
| 備考 |
管理形態/管理員の勤務形態:-/-
IT重説対応物件
|
| エネルギー消費性能 |
- |
| 断熱性能 |
- |
| 目安光熱費 |
- |
| バス・トイレ |
バス・トイレ別 |
| キッチン |
- |
| セキュリティー |
- |
| 収納 |
- |
| 設備・サービス |
- |
| TV・通信 |
- |
| その他 |
バイク置き場、専用庭、庭、駐輪場 |
| 契約期間 |
2年 |
現況 |
空家 |
| 条件等 |
- |
入居可能時期 |
即時 |
| 更新料 |
- |
物件番号 |
6983547639 |
| 情報公開日 |
2025年10月28日 |
次回更新予定日 |
2025年12月23日 |
| ケータイ用バーコード |
- スマートフォンでこの物件を見る
- スマートフォンからもこの物件をご覧になれます。
|
※「-」と表示されている項目については、情報提供会社にご確認ください。
| 周辺施設 |
スターバックスコーヒー札幌川下店 |
| 距離 |
670m |
ここから簡単にお問い合わせをすることができます。
(SSLでの暗号化での送信を希望されるお客さまは
こちら
よりお問い合わせください)
お問い合わせを行う前に
「個人情報の取り扱いについて」を必ずお読みください。
「個人情報の取り扱いについて」に同意いただいた場合は「上記にご同意の上 確認画面へ進む」のボタンをクリックしてください。
個人情報の取り扱いについて
皆さまが送付された個人情報はアットホーム(株)のサーバを経由し、お問い合わせ先の不動産会社にメールまたはFAXにて転送されるためアットホーム(株)にも保管されます。アットホーム(株)で保管された個人情報の取り扱いについては、【こちら】をご覧ください。
また、本画面でご記入いただいた個人情報は、お問い合わせ先の不動産会社でも保管します。 お問い合わせ先の不動産会社が保管する個人情報の取り扱いについては、不動産会社に直接お問い合わせください。
北海道知事免許 石狩(4)第7584号 |
|---|
- 交通:
- JR函館本線/手稲駅 徒歩1分
- 北海道札幌市手稲区手稲本町一条3丁目4番5号 藤川ビル2F
- TEL:
- 011-699-5810
- FAX:
- 011-699-5811
- 所属団体:
- (公社)北海道宅地建物取引業協会会員(一社)北海道不動産公正取引協議会加盟
取引態様:仲介  - 10003846
|
- スマートフォンで
この不動産会社を見る

|
- 提携サイト等より掲載されている物件情報につきましては、不動産会社詳細情報にリンクされていないものがあります。
- 物件に関するお問合せは、物件詳細ページの「情報提供会社」に表示されている不動産会社へ直接お願いいたします。
- 間取図は、現況を優先させていただきます。
- 映像は物件の一部を撮影したものです。物件の契約にあたっての最終判断はご自身の判断に基づいて行ってください。
- 仲介手数料について

アットホームは物件情報の適正化に努めております。
内容に誤りがある場合にはこちらへご連絡ください。