新潟県新潟市中央区関新2丁目(関屋駅)の賃貸:物件詳細
交通 所在地 |
駅徒歩 |
賃料 管理費等 |
敷金/保証金 礼金 |
間取り 面積 |
物件種目 築年月 |
|
JR越後線/関屋
新潟県新潟市中央区関新2丁目
|
13分
|
4.7万円
なし
|
1ヶ月 / なし
1ヶ月
|
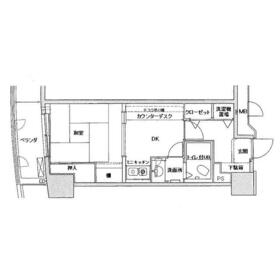
1DK
30.69m²
|
賃貸マンション
1992年3月(築33年10ヶ月)
|
分譲タイプ、フロントサービス、クリーニングサービス、常時ゴミ出し可能、事務所使用可、SOHO向き、オール電化
|
|
間取図
|
外観
|
<
その他の画像
>
|
| 交通 | JR越後線 関屋駅 徒歩13分 |
|---|
| その他の交通 | JR越後線 白山駅 徒歩13分 |
| 所在地 |
新潟県新潟市中央区関新2丁目
|
| 物件種目 |
賃貸マンション |
| 賃料 |
4.7万円 |
管理費等 |
なし |
| 敷金 / 保証金 |
1ヶ月 / なし |
礼金 |
1ヶ月 |
| 敷引 |
- |
保証金償却 |
- |
| その他一時金 |
- |
保険等 |
要 2年 18,000円 家財 |
| 維持費等 |
給湯基本料:1,000円/月 |
| 間取り |
1DK(和 4.5 DK 4.5) |
専有面積 |
30.69m² |
| 築年月 |
1992年3月(築33年10ヶ月)
|
階建 / 階 |
14階建 / 4階 |
| 建物構造 |
SRC |
総戸数 |
133戸 |
| 主要採光面 |
北西 |
駐車場 |
空無 |
| バイク置き場 |
有 1,000円/月 |
駐輪場 |
有 無料 |
| 建物名・部屋番号 |
新潟ダイカンプラザ遊学館 409 |
ペット |
-
|
| アピールポイント |
お探しの方には嬉しい事務所利用可。初めて来るお客様も戸惑わないフロントサービス有、更に不審者の侵入に目を光らせる防犯カメラ完備なので、トラブルや犯罪の抑止効果も期待できます。また広々とした延床面積30.69㎡の居室空間で、その上不在時の受け取りも楽々の宅配BOX付だから、再配達のひと手間を省けます。ちなみに受け取り楽々クリーニングサービス利用可です。独身でも新婚でも使える1DK。是非見学にお越しください。 |
| リフォーム履歴 |
- |
| リノベーション履歴 |
- |
| 備考 |
賃貸保証等:加入要(ジェイリース株式会社・初回保証料 総賃料50%、毎月保証料 総賃料1%、継続保証料10000円/年)
管理形態/管理員の勤務形態:-/日勤
バルコニー:4.56m²
管理人日勤
|
| エネルギー消費性能 |
- |
| 断熱性能 |
- |
| 目安光熱費 |
- |
| バス・トイレ |
洗面所、バス・トイレ同室、シャワー、トイレ |
| キッチン |
IHクッキングヒーター |
| セキュリティー |
オートロック、モニター付インターホン、ディンプルキー、防犯カメラ、火災警報器(報知機) |
| 収納 |
- |
| 設備・サービス |
室内洗濯機置場、給湯、フローリング、エアコン、照明器具 |
| TV・通信 |
インターネット対応 |
| その他 |
宅配BOX、バイク置き場、エレベーター2基以上、共用ゲストルーム、共用パーティルーム、バルコニー、駐輪場、内廊下 |
| 契約期間 |
2年 |
現況 |
空家 |
| 条件等 |
- |
入居可能時期 |
即時 |
| 仲介手数料 |
1.1ヶ月 |
|
|
| 更新料 |
新賃料 1ヶ月 |
物件番号 |
6983959455 |
| 情報公開日 |
2025年10月1日 |
次回更新予定日 |
2025年12月10日 |
| ケータイ用バーコード |
- スマートフォンでこの物件を見る
- スマートフォンからもこの物件をご覧になれます。
|
※「-」と表示されている項目については、情報提供会社にご確認ください。
| 周辺施設 |
清水フードセンター関屋店 |
| 距離 |
656m |
| 周辺施設 |
セブンイレブン新潟川岸町3丁目店 |
| 距離 |
447m |
| 周辺施設 |
日本歯科大学新潟生命歯学部 |
| 距離 |
1458m |
| 周辺施設 |
医療法人仁愛会新潟中央病院 |
| 距離 |
608m |
ここから簡単にお問い合わせをすることができます。
(SSLでの暗号化での送信を希望されるお客さまは
こちら
よりお問い合わせください)
お問い合わせを行う前に
「個人情報の取り扱いについて」を必ずお読みください。
「個人情報の取り扱いについて」に同意いただいた場合は「上記にご同意の上 確認画面へ進む」のボタンをクリックしてください。
個人情報の取り扱いについて
皆さまが送付された個人情報はアットホーム(株)のサーバを経由し、お問い合わせ先の不動産会社にメールまたはFAXにて転送されるためアットホーム(株)にも保管されます。アットホーム(株)で保管された個人情報の取り扱いについては、【こちら】をご覧ください。
また、本画面でご記入いただいた個人情報は、お問い合わせ先の不動産会社でも保管します。 お問い合わせ先の不動産会社が保管する個人情報の取り扱いについては、不動産会社に直接お問い合わせください。
新潟県知事免許(8)第3761号 |
|---|
- 交通:
- JR越後線/関屋駅 徒歩9分
- 新潟県新潟市中央区関新2丁目1-73 遊学館2階
- TEL:
- 025-230-4100
- FAX:
- 025-230-6132
- 所属団体:
- (公社)全日本不動産協会会員(公社)首都圏不動産公正取引協議会加盟
取引態様:仲介  - 00108324
|
- スマートフォンで
この不動産会社を見る

|
- 提携サイト等より掲載されている物件情報につきましては、不動産会社詳細情報にリンクされていないものがあります。
- 物件に関するお問合せは、物件詳細ページの「情報提供会社」に表示されている不動産会社へ直接お願いいたします。
- 間取図は、現況を優先させていただきます。
- 映像は物件の一部を撮影したものです。物件の契約にあたっての最終判断はご自身の判断に基づいて行ってください。
- 仲介手数料について

アットホームは物件情報の適正化に努めております。
内容に誤りがある場合にはこちらへご連絡ください。