不動産 賃貸 マンション等の住宅情報:埼玉住まい情報


埼玉県深谷市武川(武川駅)の賃貸:物件詳細

  • 物件詳細
  • 情報の見方
  • 印刷用画面
交通
所在地
駅徒歩 賃料
管理費等
敷金/保証金
礼金
間取り
面積
物件種目
築年月

秩父鉄道/武川

埼玉県深谷市武川

11分

9万円

なし

なし / なし

2ヶ月

2LDK

72.59m²

賃貸一戸建て

2025年2月(築1年2ヶ月)
未入居

おすすめPOINT駐車場3台分以上、角部屋、南向き、事務所使用可、3面採光、24時間換気システム、閑静な住宅街、外観タイル張り、前面棟無、置き配スペース

おすすめコメント

新築です。ゆったりめの延床面積72.59㎡の居室空間、新婚さん、子育ての方歓迎、川本北小学校徒歩3分、北小学校から学童保育所徒歩1分、託児所・若竹幼稚園5分、お探しの方には嬉しい事務所利用可

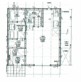
間取図

間取図

金弧B・1階平面図

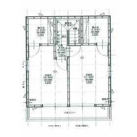
間取図

間取図

メゾネット金弧B・2階平面図ウオーキング・クロゼット(2帖付き)

<
その他の画像
  • 外観
  • 外観
  • その他
  • 玄関
  • 玄関
  • キッチン
  • 設備
  • バス/シャワー
  • トイレ
  • 設備
  • 設備
  • 収納
  • 室内
  • 設備
  • キッチン
  • 設備
  • 設備
  • 室内
  • 収納
  • 収納
  • 収納
  • 設備
  • バス/シャワー
  • バス/シャワー
  • 設備
  • 設備
  • 外観
  • 外観
  • 眺望
  • 周辺環境
  • 外観
  • 眺望
  • 眺望
  • 周辺環境
  • 周辺環境
  • 周辺環境
  • 周辺環境
  • 周辺環境
  • 小学校
  • 幼稚園、保育園
  • 公園
  • 中学校
  • ショッピング施設
  • コンビニ
  • コンビニ
  • 飲食店
>
    • とりあえず保存
    • お問い合わせ
    交通

    秩父鉄道 武川駅 徒歩11分

    その他の交通

    秩父鉄道 明戸駅 徒歩25分

    所在地 埼玉県深谷市武川
    物件種目 賃貸一戸建て
    賃料 9万円 管理費等 なし
    敷金 / 保証金 なし / なし 礼金 2ヶ月
    敷引 保証金償却
    その他一時金 保険等 不要
    維持費等
    間取り 2LDK(洋 6.7・6.7 LDK 11) 専有面積 72.59m²
    築年月 2025年2月(築1年2ヶ月) 未入居 階建 / 階 2階建
    建物構造 木造 総戸数 2戸
    主要採光面 駐車場 有 無料
    バイク置き場 有 無料 駐輪場 有 無料
    建物名・部屋番号 メゾネット金狐 B ペット
    アピールポイント お探しの方には嬉しい事務所利用可。敷金(保証金)0円。また真っさら新築の物件で、その上受け取りに心配なしの宅配BOX付なので、ネット通販大好き派にはお勧めです。ちなみに落ち着いた穏やかな暮らしが望める閑静な住宅街の物件です。家族の安心拠点になる2LDK。玄関前に車3台駐車場付き・物置付き、戸建て感覚で隣りの音が気にならない、ご案内いたしますのでお気軽にご連絡ください。
    リフォーム履歴
    リノベーション履歴
    備考
    管理形態/管理員の勤務形態:-/巡回
    非喫煙者限定、外壁サイディング、区画整理地内、管理人巡回
    エネルギー消費性能
    断熱性能
    目安光熱費
    バス・トイレ バス・トイレ別、追焚機能、洗面所独立、シャワー、温水洗浄便座、トイレ
    キッチン システムキッチン、3口以上コンロ、ガスコンロ付、グリル
    セキュリティー モニター付インターホン、ディンプルキー、シャッター雨戸、火災警報器(報知機)
    収納 ウォークインクローゼット、収納スペース、シューズボックス
    設備・サービス エアコン2台以上、室内洗濯機置場、二重床、省エネ給湯器、プロパンガス給湯、フローリング、室内物干し、プロパンガス、間接照明、照明器具、複層ガラス
    TV・通信 マルチメディアコンセント
    その他 宅配BOX、バイク置き場、専用庭、バルコニー、駐輪場
    契約期間 2年 現況 空家
    条件等 入居可能時期 即時
    仲介手数料 不要    
    更新料 新賃料 1ヶ月 物件番号 6984434385
    情報公開日 2025年1月6日 次回更新予定日 2026年3月17日
    ケータイ用バーコード

    QRコード

    スマートフォンでこの物件を見る
    スマートフォンからもこの物件をご覧になれます。
    ※「-」と表示されている項目については、情報提供会社にご確認ください。

    この物件の周辺情報

    周辺施設 深谷市立川本北小学校
    距離 125m
    周辺施設 川本若竹幼稚園
    距離 244m
    周辺施設 武川中央公園
    距離 300m
    周辺施設 深谷市立川本中学校
    距離 1525m
    周辺施設 ベイシアフードセンター深谷川本店
    距離 1138m
    周辺施設 ローソン川本店
    距離 893m
    周辺施設 セブンイレブン深谷長在家店
    距離 1105m
    周辺施設 久兵衛屋川本店
    距離 1363m

    クイックお問い合わせ

    ここから簡単にお問い合わせをすることができます。
    (SSLでの暗号化での送信を希望されるお客さまは こちら よりお問い合わせください)

    お問い合わせ内容(必須)
    お名前(必須) 姓  名 
    メールアドレス(必須)
    ※携帯電話のメールアドレスをご入力される方はこちらをご確認ください
    電話番号(必須)
    - -

    ※入力いただいた電話番号へSMSまたは音声でパスワードをご連絡します。

    携帯電話の番号をご入力の方へ

    携帯電話の番号をご入力の方へ
    確認画面にて送信ボタンをクリックするとSMSが携帯電話に届きます。
    そのSMSに記載のパスワード(認証番号)を入力し、お問い合わせを完了してください。
    尚、SMSの送信者番号は 0005 202 760 となります。
    これはアットホームの固定番号です。

    備考欄 希望条件、物件案内希望日、質問などがございましたらご記入ください。
    お問い合わせを行う前に「個人情報の取り扱いについて」を必ずお読みください。
    「個人情報の取り扱いについて」に同意いただいた場合は「上記にご同意の上 確認画面へ進む」のボタンをクリックしてください。

    個人情報の取り扱いについて

    皆さまが送付された個人情報はアットホーム(株)のサーバを経由し、お問い合わせ先の不動産会社にメールまたはFAXにて転送されるためアットホーム(株)にも保管されます。アットホーム(株)で保管された個人情報の取り扱いについては、【こちら】をご覧ください。
    また、本画面でご記入いただいた個人情報は、お問い合わせ先の不動産会社でも保管します。 お問い合わせ先の不動産会社が保管する個人情報の取り扱いについては、不動産会社に直接お問い合わせください。

    情報提供会社

    情報提供会社

    (有)金山たじま不動産

    埼玉県知事免許(7)第16559号

    交通:
    秩父鉄道/武川駅 徒歩5分
    埼玉県深谷市武川307 
    TEL:
    048-583-2039
    FAX:
    048-583-2039
    所属団体:
    (公社)埼玉県宅地建物取引業協会会員
    (公社)首都圏不動産公正取引協議会加盟

    取引態様:貸主

    • 会社情報
    • 00106478
    スマートフォンで
    この不動産会社を見る
    QRコード
    • とりあえず保存
    • お問い合わせ
    • 提携サイト等より掲載されている物件情報につきましては、不動産会社詳細情報にリンクされていないものがあります。
    • 物件に関するお問合せは、物件詳細ページの「情報提供会社」に表示されている不動産会社へ直接お願いいたします。
    • 間取図は、現況を優先させていただきます。
    • 映像は物件の一部を撮影したものです。物件の契約にあたっての最終判断はご自身の判断に基づいて行ってください。
    • 仲介手数料について仲介手数料

    アットホームは物件情報の適正化に努めております。 内容に誤りがある場合にはこちらへご連絡ください。

    【埼玉住まい情報】では、日本全国の物件から賃貸マンションや賃貸アパート・賃貸一戸建て等の賃貸住宅情報、新築マンション・分譲マンションや中古マンション等の売買マンション情報、新築一戸建てや中古一戸建てなどの戸建住宅、 土地など、総合的な不動産住宅情報検索サービスを提供致します。
    【埼玉住まい情報】から、選りすぐりの不動産物件を探してみましょう。

    【免責事項】
    このコーナーの運営はアットホーム株式会社(https://www.athome.co.jp/)が行っています。
    このコーナーに掲載している物件情報は、「アットホーム不動産情報ネットワーク」に加盟する不動産会社等(情報提供元)から提供されています。信頼性の高い情報提供が行えるよう、最大限の努力をしておりますが、その内容を保証するものではありません。 利用者のみなさまと各情報提供元との取引に起因する損害および情報が掲載されたことに起因する損害等については、株式会社イーシティ埼玉、およびアットホームは一切責任を負いません。
    各物件情報の内容や画像等はすべて現況を優先させていただきます。
    お取引等(お取引の準備、資金調達等を含みます)の際には、内容や契約条件等について、各情報提供元より十分な説明を受け、ご自身でご確認の上、判断してください。
    このコーナーへの物件情報のご掲載、その他不動産業務ソリューション等についての不動産会社様のお問合せはこちらからお願いいたします。

    物件画像: