福岡県北九州市小倉北区霧ケ丘2丁目(城野駅)の賃貸:物件詳細
交通 所在地 |
駅徒歩 |
賃料 管理費等 |
敷金/保証金 礼金 |
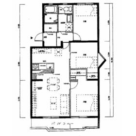
間取り 面積 |
物件種目 築年月 |
|
JR日豊本線/城野 [バス利用可] バス 西鉄 霧ケ丘二丁目 停歩2分
福岡県北九州市小倉北区霧ケ丘2丁目
|
17分
|
7.8万円
なし
|
なし / なし
2ヶ月
|
3LDK
66.00m²
|
賃貸マンション
1987年12月(築37年11ヶ月)
|
|
間取図
|
外観
|
<
その他の画像
>
|
| 交通 | JR日豊本線 城野駅 徒歩17分 [バス利用可] バス 西鉄 霧ケ丘二丁目 停歩2分 |
| 所在地 |
福岡県北九州市小倉北区霧ケ丘2丁目
|
| 物件種目 |
賃貸マンション |
| 賃料 |
7.8万円 |
管理費等 |
なし |
| 敷金 / 保証金 |
なし / なし |
礼金 |
2ヶ月 |
| 敷引 |
- |
保証金償却 |
- |
| その他一時金 |
- |
保険等 |
要 2年 13,000円 火災 |
| 維持費等 |
- |
| 間取り |
3LDK |
専有面積 |
66.00m² |
| 築年月 |
1987年12月(築37年11ヶ月)
|
階建 / 階 |
4階建 / 1階 |
| 建物構造 |
RC |
総戸数 |
- |
| 主要採光面 |
|
駐車場 |
有 7,000円/月 |
| バイク置き場 |
- |
駐輪場 |
- |
| 建物名・部屋番号 |
|
ペット |
-
|
| アピールポイント |
敷金(保証金)0円。マイカー感覚でバスが使えるバス停徒歩3分以内。洗面ボウルが大きなシャンプードレッサー付で、その上どの部屋にも収納が備え付けられている全居室収納完備だから、収納家具の買い足しが少なくて済みます。ちなみにシューズボックス付です。家族が帰宅を焦がれる3LDK。是非見学にお越しください。 |
| リフォーム履歴 |
- |
| リノベーション履歴 |
- |
| 備考 |
賃貸保証等:加入要(家賃保証加入)
管理形態/管理員の勤務形態:-/-
|
| エネルギー消費性能 |
- |
| 断熱性能 |
- |
| 目安光熱費 |
- |
| バス・トイレ |
バス・トイレ別、シャワー付洗面化粧台、洗面所独立、シャワー、温水洗浄便座、トイレ、浴室に窓あり |
| キッチン |
ガスコンロ付 |
| セキュリティー |
- |
| 収納 |
全居室収納、収納スペース、シューズボックス |
| 設備・サービス |
室内洗濯機置場、都市ガス |
| TV・通信 |
- |
| その他 |
バルコニー |
| 契約期間 |
2年 |
現況 |
空家 |
| 条件等 |
- |
入居可能時期 |
即時 |
| 更新料 |
- |
物件番号 |
6984789969 |
| 情報公開日 |
2025年7月7日 |
次回更新予定日 |
2025年10月30日 |
| ケータイ用バーコード |
- スマートフォンでこの物件を見る
- スマートフォンからもこの物件をご覧になれます。
|
※「-」と表示されている項目については、情報提供会社にご確認ください。
| 周辺施設 |
セブンイレブン小倉黒原2丁目店 |
| 距離 |
294m |
| 周辺施設 |
医療法人恵友会霧ヶ丘つだ病院 |
| 距離 |
889m |
ここから簡単にお問い合わせをすることができます。
(SSLでの暗号化での送信を希望されるお客さまは
こちら
よりお問い合わせください)
お問い合わせを行う前に
「個人情報の取り扱いについて」を必ずお読みください。
「個人情報の取り扱いについて」に同意いただいた場合は「上記にご同意の上 確認画面へ進む」のボタンをクリックしてください。
個人情報の取り扱いについて
皆さまが送付された個人情報はアットホーム(株)のサーバを経由し、お問い合わせ先の不動産会社にメールまたはFAXにて転送されるためアットホーム(株)にも保管されます。アットホーム(株)で保管された個人情報の取り扱いについては、【こちら】をご覧ください。
また、本画面でご記入いただいた個人情報は、お問い合わせ先の不動産会社でも保管します。 お問い合わせ先の不動産会社が保管する個人情報の取り扱いについては、不動産会社に直接お問い合わせください。
福岡県知事免許(4)第16300号 |
|---|
- 交通:
- 北九州モノレール/香春口三萩野駅 徒歩1分 【バス】1分 三荻野
- 福岡県北九州市小倉北区三萩野1丁目8-22
- TEL:
- 0120-931-838
- FAX:
- 093-383-3820
- 所属団体:
- (公社)福岡県宅地建物取引業協会会員(一社)全国賃貸不動産管理業協会会員(一社)九州不動産公正取引協議会加盟
取引態様:仲介  - 80901510
|
- スマートフォンで
この不動産会社を見る

|
- 提携サイト等より掲載されている物件情報につきましては、不動産会社詳細情報にリンクされていないものがあります。
- 物件に関するお問合せは、物件詳細ページの「情報提供会社」に表示されている不動産会社へ直接お願いいたします。
- 間取図は、現況を優先させていただきます。
- 映像は物件の一部を撮影したものです。物件の契約にあたっての最終判断はご自身の判断に基づいて行ってください。
- 仲介手数料について

アットホームは物件情報の適正化に努めております。
内容に誤りがある場合にはこちらへご連絡ください。