長崎県長崎市大浦町(大浦海岸通駅)の賃貸:物件詳細
交通 所在地 |
駅徒歩 |
賃料 管理費等 |
敷金/保証金 礼金 |
間取り 面積 |
物件種目 築年月 |
|
長崎電軌大浦支線/大浦海岸通 [バス利用可] バス 梅中前 停歩2分
長崎県長崎市大浦町
|
4分
|
6万円
-
|
3ヶ月 / なし
なし
|
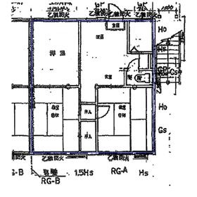
3DK
42.90m²
|
賃貸アパート
1983年9月(築42年4ヶ月)
|
角部屋
|
|
間取図
|
|
<
その他の画像
>
|
| 交通 | 長崎電軌大浦支線 大浦海岸通駅 徒歩4分 [バス利用可] バス 梅中前 停歩2分 |
| 所在地 |
長崎県長崎市大浦町
|
| 物件種目 |
賃貸アパート |
| 賃料 |
6万円 |
管理費等 |
- |
| 敷金 / 保証金 |
3ヶ月 / なし |
礼金 |
なし |
| 敷引 |
- |
保証金償却 |
- |
| その他一時金 |
- |
保険等 |
要 2年 |
| 維持費等 |
- |
| 間取り |
3DK(和 6・6 洋 6 DK 6) |
専有面積 |
42.90m² |
| 築年月 |
1983年9月(築42年4ヶ月)
|
階建 / 階 |
2階建 / 1階 |
| 建物構造 |
軽量鉄骨造 |
総戸数 |
- |
| 主要採光面 |
|
駐車場 |
無 |
| バイク置き場 |
- |
駐輪場 |
- |
| 建物名・部屋番号 |
コーポ梅ヶ崎 101号 |
ペット |
-
|
| アピールポイント |
流し台、浴槽、温水洗浄便座、クロス、クッションフロア等交換済みです。 |
| リフォーム履歴 |
■その他:2024年7月 流し台、クロス、クッションフロア、温水洗浄便座等 ※実施年月は最も古い履歴を表示 |
| リノベーション履歴 |
- |
| 備考 |
管理形態/管理員の勤務形態:-/-
流し台、浴槽、温水洗浄便座、クロス、クッションフロア等交換済みです。
|
| エネルギー消費性能 |
- |
| 断熱性能 |
- |
| 目安光熱費 |
- |
| バス・トイレ |
バス・トイレ別、シャワー、温水洗浄便座、トイレ |
| キッチン |
ガスコンロ可 |
| セキュリティー |
- |
| 収納 |
- |
| 設備・サービス |
室内洗濯機置場、都市ガス |
| TV・通信 |
- |
| その他 |
- |
| 契約期間 |
2年 |
現況 |
空家 |
| 条件等 |
- |
入居可能時期 |
即時 |
| 更新料 |
- |
物件番号 |
6984827024 |
| 情報公開日 |
2025年1月16日 |
次回更新予定日 |
2025年12月25日 |
| ケータイ用バーコード |
- スマートフォンでこの物件を見る
- スマートフォンからもこの物件をご覧になれます。
|
※「-」と表示されている項目については、情報提供会社にご確認ください。
| 周辺施設 |
セブンイレブン長崎大浦町店 |
| 距離 |
208m |
| 周辺施設 |
医療法人昭和会昭和会病院 |
| 距離 |
201m |
ここから簡単にお問い合わせをすることができます。
(SSLでの暗号化での送信を希望されるお客さまは
こちら
よりお問い合わせください)
お問い合わせを行う前に
「個人情報の取り扱いについて」を必ずお読みください。
「個人情報の取り扱いについて」に同意いただいた場合は「上記にご同意の上 確認画面へ進む」のボタンをクリックしてください。
個人情報の取り扱いについて
皆さまが送付された個人情報はアットホーム(株)のサーバを経由し、お問い合わせ先の不動産会社にメールまたはFAXにて転送されるためアットホーム(株)にも保管されます。アットホーム(株)で保管された個人情報の取り扱いについては、【こちら】をご覧ください。
また、本画面でご記入いただいた個人情報は、お問い合わせ先の不動産会社でも保管します。 お問い合わせ先の不動産会社が保管する個人情報の取り扱いについては、不動産会社に直接お問い合わせください。
長崎県知事免許(6)第3263号 |
|---|
- 交通:
- 【バス】 市役所前バス停 停歩2分
- 長崎県長崎市興善町3-11
- TEL:
- 095-827-3685
- FAX:
- 095-828-1057
- 所属団体:
- (公社)長崎県宅地建物取引業協会会員(一社)九州不動産公正取引協議会加盟
取引態様:仲介  - 80500262
|
- スマートフォンで
この不動産会社を見る

|
- 提携サイト等より掲載されている物件情報につきましては、不動産会社詳細情報にリンクされていないものがあります。
- 物件に関するお問合せは、物件詳細ページの「情報提供会社」に表示されている不動産会社へ直接お願いいたします。
- 間取図は、現況を優先させていただきます。
- 映像は物件の一部を撮影したものです。物件の契約にあたっての最終判断はご自身の判断に基づいて行ってください。
- 仲介手数料について

アットホームは物件情報の適正化に努めております。
内容に誤りがある場合にはこちらへご連絡ください。