新潟県新潟市中央区東出来島(新潟駅)の賃貸:物件詳細
交通 所在地 |
駅徒歩 |
賃料 管理費等 |
敷金/保証金 礼金 |
間取り 面積 |
物件種目 築年月 |
|
上越新幹線/新潟 【バス】20分 出来島 停歩2分
新潟県新潟市中央区東出来島
|
-
|
5万円
-
|
1ヶ月 / なし
1ヶ月
|
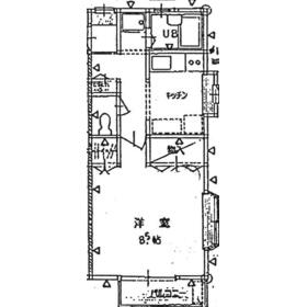
1K
29.75m²
|
賃貸アパート
1998年8月(築27年8ヶ月)
|
角部屋、南向き、2面採光、閑静な住宅街
|
|
間取図
|
外観
|
その他の画像
|
| 交通 | 上越新幹線 新潟駅 【バス】 20分 出来島 停歩2分 |
| 所在地 |
新潟県新潟市中央区東出来島
|
| 物件種目 |
賃貸アパート |
| 賃料 |
5万円 |
管理費等 |
- |
| 敷金 / 保証金 |
1ヶ月 / なし |
礼金 |
1ヶ月 |
| 敷引 |
- |
保証金償却 |
- |
| その他一時金 |
鍵交換代等:16,500円~ |
保険等 |
要 2年 18,000円 家財 |
| 維持費等 |
町内費:300円/月 |
| 間取り |
1K(洋 8.5) |
専有面積 |
29.75m² |
| 築年月 |
1998年8月(築27年8ヶ月)
|
階建 / 階 |
2階建 / 2階 |
| 建物構造 |
木造 |
総戸数 |
- |
| 主要採光面 |
南 |
駐車場 |
有 無料 |
| バイク置き場 |
- |
駐輪場 |
有 無料 |
| 建物名・部屋番号 |
山都フラッツA 201 |
ペット |
-
|
| リフォーム履歴 |
- |
| リノベーション履歴 |
- |
| 備考 |
管理形態/管理員の勤務形態:-/-
|
| エネルギー消費性能 |
- |
| 断熱性能 |
- |
| 目安光熱費 |
- |
| バス・トイレ |
バス・トイレ別 |
| キッチン |
ガスコンロ可 |
| セキュリティー |
- |
| 収納 |
クローゼット、シューズボックス |
| 設備・サービス |
給湯、出窓、フローリング、都市ガス、エアコン、照明器具 |
| TV・通信 |
ケーブルTV |
| その他 |
バルコニー、駐輪場 |
| 契約期間 |
2年 |
現況 |
居住中 |
| 条件等 |
- |
入居可能時期 |
2026年4月中旬予定 |
| 更新料 |
- |
物件番号 |
6985085242 |
| 情報公開日 |
2026年2月26日 |
次回更新予定日 |
2026年3月26日 |
| ケータイ用バーコード |
- スマートフォンでこの物件を見る
- スマートフォンからもこの物件をご覧になれます。
|
※「-」と表示されている項目については、情報提供会社にご確認ください。
| 周辺施設 |
ウオロクデッキィ401店 |
| 距離 |
283m |
| 周辺施設 |
セブンイレブン新潟東出来島店 |
| 距離 |
272m |
| 周辺施設 |
コメリホームセンター出来島店 |
| 距離 |
274m |
| 周辺施設 |
ユナイテッド・シネマ新潟 |
| 距離 |
464m |
ここから簡単にお問い合わせをすることができます。
(SSLでの暗号化での送信を希望されるお客さまは
こちら
よりお問い合わせください)
お問い合わせを行う前に
「個人情報の取り扱いについて」を必ずお読みください。
「個人情報の取り扱いについて」に同意いただいた場合は「上記にご同意の上 確認画面へ進む」のボタンをクリックしてください。
個人情報の取り扱いについて
皆さまが送付された個人情報はアットホーム(株)のサーバを経由し、お問い合わせ先の不動産会社にメールまたはFAXにて転送されるためアットホーム(株)にも保管されます。アットホーム(株)で保管された個人情報の取り扱いについては、【こちら】をご覧ください。
また、本画面でご記入いただいた個人情報は、お問い合わせ先の不動産会社でも保管します。 お問い合わせ先の不動産会社が保管する個人情報の取り扱いについては、不動産会社に直接お問い合わせください。
新潟県知事免許(7)第3879号 |
|---|
- 交通:
- JR信越本線/新潟駅 徒歩10分
- 新潟県新潟市中央区南笹口2丁目1-10
- TEL:
- 025-246-0159
- FAX:
- 025-246-9828
- 所属団体:
- (公社)新潟県宅地建物取引業協会会員(公社)首都圏不動産公正取引協議会加盟
取引態様:仲介  - 00109168
|
- スマートフォンで
この不動産会社を見る

|
- 提携サイト等より掲載されている物件情報につきましては、不動産会社詳細情報にリンクされていないものがあります。
- 物件に関するお問合せは、物件詳細ページの「情報提供会社」に表示されている不動産会社へ直接お願いいたします。
- 間取図は、現況を優先させていただきます。
- 映像は物件の一部を撮影したものです。物件の契約にあたっての最終判断はご自身の判断に基づいて行ってください。
- 仲介手数料について

アットホームは物件情報の適正化に努めております。
内容に誤りがある場合にはこちらへご連絡ください。