東京都練馬区東大泉3丁目(大泉学園駅)の賃貸:物件詳細
交通 所在地 |
駅徒歩 |
賃料 管理費等 |
敷金/保証金 礼金 |
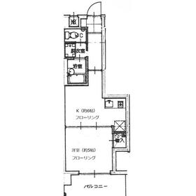
間取り 面積 |
物件種目 築年月 |
|
西武池袋線/大泉学園
東京都練馬区東大泉3丁目
|
5分
|
7.4万円
5,000円
|
1ヶ月 / なし
1ヶ月
|
1K
27.37m²
|
賃貸マンション
1998年3月(築27年9ヶ月)
|
南向き、外観タイル張り
|
|
間取図
|
|
その他の画像
|
| 交通 | 西武池袋線 大泉学園駅 徒歩5分 |
|---|
| その他の交通 | JR中央線 吉祥寺駅 徒歩5800m [バス利用可] バス 30分 大泉学園北口 停歩5分 |
| 所在地 |
東京都練馬区東大泉3丁目
|
| 物件種目 |
賃貸マンション |
| 賃料 |
7.4万円 |
管理費等 |
5,000円 |
| 敷金 / 保証金 |
1ヶ月 / なし |
礼金 |
1ヶ月 |
| 敷引 |
- |
保証金償却 |
- |
| その他一時金 |
鍵交換代等:19,800円~ |
保険等 |
要 2年 18,000円 宅建ファミリー共済 |
| 維持費等 |
- |
| 間取り |
1K(洋 5 K 6) |
専有面積 |
27.37m² |
| 築年月 |
1998年3月(築27年9ヶ月)
|
階建 / 階 |
5階建 / 2階 |
| 建物構造 |
RC |
総戸数 |
- |
| 主要採光面 |
南 |
駐車場 |
- |
| バイク置き場 |
- |
駐輪場 |
有 無料 |
| 建物名・部屋番号 |
第3大新ビル 202 |
ペット |
-
|
| アピールポイント |
モニター付オートロック・駅まで徒歩5分・駅から商店街を通り帰宅できる女性も安心な立地です。
南向きで日当たりも良く、隣にスーパーもあり、生活用品が急に必要になった時でも安心です! |
| リフォーム履歴 |
■水回り:2025年3月 キッチン、給湯器 ※実施年月は最も古い履歴を表示 |
| リノベーション履歴 |
- |
| 備考 |
賃貸保証等:加入要(全保連㈱ 初回のみプランは初回保証委託料:月額家賃120%(継続保証委託料なし) 毎年プランは初回保証委託料:月額家賃合計の50%(継続保証委託料:13,000円))
管理形態/管理員の勤務形態:-/-
バルコニー:4.68m²
大型シネコン徒歩5分
スーパー隣り コンビニも徒歩1分
|
| エネルギー消費性能 |
- |
| 断熱性能 |
- |
| 目安光熱費 |
- |
| バス・トイレ |
バス・トイレ別、オートバス、追焚機能、洗面所、洗面台、シャワー |
| キッチン |
システムキッチン、2口コンロ、グリル |
| セキュリティー |
モニター付オートロック、オートロック、モニター付インターホン |
| 収納 |
収納スペース、シューズボックス |
| 設備・サービス |
室内洗濯機置場、給湯、都市ガス、エアコン |
| TV・通信 |
インターネット対応、光ファイバー、CATVインターネット、ケーブルTV、CS、BS端子 |
| その他 |
バルコニー、駐輪場、エレベーター |
| 契約期間 |
2年 |
現況 |
空家 |
| 条件等 |
- |
入居可能時期 |
即時 |
| 仲介手数料 |
1.1ヶ月 |
|
|
| 更新料 |
新賃料 1ヶ月 |
物件番号 |
6985318411 |
| 情報公開日 |
2025年11月4日 |
次回更新予定日 |
2025年11月18日 |
| ケータイ用バーコード |
- スマートフォンでこの物件を見る
- スマートフォンからもこの物件をご覧になれます。
|
※「-」と表示されている項目については、情報提供会社にご確認ください。
| 周辺施設 |
まいばすけっと東大泉3丁目店 |
| 距離 |
15m |
| 周辺施設 |
カルディコーヒーファームグランエミオ大泉学園店 |
| 距離 |
288m |
| 周辺施設 |
成城石井グランエミオ大泉学園店 |
| 距離 |
297m |
| 周辺施設 |
Grand Emio大泉学園 |
| 距離 |
294m |
| 周辺施設 |
ファミリーマート大泉学園駅北店 |
| 距離 |
132m |
| 周辺施設 |
キッチンオリジン大泉学園店 |
| 距離 |
94m |
ここから簡単にお問い合わせをすることができます。
(SSLでの暗号化での送信を希望されるお客さまは
こちら
よりお問い合わせください)
お問い合わせを行う前に
「個人情報の取り扱いについて」を必ずお読みください。
「個人情報の取り扱いについて」に同意いただいた場合は「上記にご同意の上 確認画面へ進む」のボタンをクリックしてください。
個人情報の取り扱いについて
皆さまが送付された個人情報はアットホーム(株)のサーバを経由し、お問い合わせ先の不動産会社にメールまたはFAXにて転送されるためアットホーム(株)にも保管されます。アットホーム(株)で保管された個人情報の取り扱いについては、【こちら】をご覧ください。
また、本画面でご記入いただいた個人情報は、お問い合わせ先の不動産会社でも保管します。 お問い合わせ先の不動産会社が保管する個人情報の取り扱いについては、不動産会社に直接お問い合わせください。
東京都知事免許(3)第92561号 |
|---|
- 交通:
- 西武池袋線/大泉学園駅 徒歩5分
- 東京都練馬区東大泉3丁目4番2号
- TEL:
- 03-5935-6617
- FAX:
- 03-3925-2790
- 所属団体:
- (公社)東京都宅地建物取引業協会会員(公社)首都圏不動産公正取引協議会加盟
取引態様:仲介  - 00987275
|
- スマートフォンで
この不動産会社を見る

|
- 提携サイト等より掲載されている物件情報につきましては、不動産会社詳細情報にリンクされていないものがあります。
- 物件に関するお問合せは、物件詳細ページの「情報提供会社」に表示されている不動産会社へ直接お願いいたします。
- 間取図は、現況を優先させていただきます。
- 映像は物件の一部を撮影したものです。物件の契約にあたっての最終判断はご自身の判断に基づいて行ってください。
- 仲介手数料について

アットホームは物件情報の適正化に努めております。
内容に誤りがある場合にはこちらへご連絡ください。