不動産 賃貸 マンション等の住宅情報:埼玉住まい情報


埼玉県熊谷市弥藤吾(熊谷駅)の賃貸:物件詳細

  • 物件詳細
  • 情報の見方
  • 印刷用画面
交通
所在地
駅徒歩 賃料
管理費等
敷金/保証金
礼金
間取り
面積
物件種目
築年月

JR高崎線/熊谷
[バス利用可] バス 22分 妻沼南バス停 停歩4分 新着

埼玉県熊谷市弥藤吾

8700m

10.8万円

なし

2ヶ月 / なし

1ヶ月

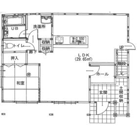
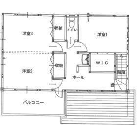
3LDK

108.47m²

賃貸一戸建て

2016年12月(築9年1ヶ月)

おすすめPOINT楽器相談、フリーレント、駐車場3台分以上、南向き、事務所使用可、SOHO向き、法人契約希望、24時間換気システム、オール電化、保証人不要

おすすめコメント  スタッフ: 大澤 儀隆

閑静な住宅街に佇む築浅一戸建賃貸住宅!この広さの戸建賃貸住宅はなかなかありません!児童公園も近く、子育ての環境に最適!費用に関する耳寄りなお話。フリーレント1ヶ月有。お探しの方には嬉しい事務所利用可。

間取図

間取図

間取図

間取図

<
その他の画像
  • 外観
  • 玄関
  • リビング
  • 玄関
  • 室内
  • リビング
  • 室内
  • 玄関
  • キッチン
  • キッチン
  • キッチン
  • キッチン
  • バス/シャワー
  • バス/シャワー
  • 洗面
  • トイレ
  • 室内
  • 室内
  • 室内
  • 室内
  • 室内
  • バルコニー
  • 収納
>
    • とりあえず保存
    • お問い合わせ
    交通

    JR高崎線 熊谷駅 徒歩8700m
    [バス利用可] バス 22分 妻沼南バス停 停歩4分

    所在地 埼玉県熊谷市弥藤吾
    物件種目 賃貸一戸建て
    賃料 10.8万円 管理費等 なし
    敷金 / 保証金 2ヶ月 / なし 礼金 1ヶ月
    敷引 保証金償却
    その他一時金 保険等 要 2年 20,000円 家財総合
    維持費等
    間取り 3LDK(和 4.5 洋 6・12 LDK 18) 専有面積 108.47m²
    築年月 2016年12月(築9年1ヶ月) 階建 / 階 2階建
    建物構造 木造 総戸数
    主要採光面 駐車場 有 無料
    バイク置き場 有 無料 駐輪場 有 無料
    建物名・部屋番号 弥藤吾一戸建賃貸住宅 ペット
    アピールポイント コストの観点で一考いただきたい、フリーレント1ヶ月有。お探しの方には嬉しい事務所利用可。オートバス仕様、更にファンを使って室内外の空気を常時換気する24時間換気システム採用だから、常に新鮮な外気を取り込み結露やカビを防止します。またゆったりめの延床面積108.47㎡の居室空間で、その上アウトドアの時間も充実専用庭付だから、暮らしと心に余裕が生まれます。ちなみに光熱費=電気代だから管理が楽になるオール電化仕様です。自然に団らんが生まれる3LDK。是非見学にお越しください。
    リフォーム履歴
    リノベーション履歴
    備考
    賃貸保証等:加入要(株式会社Casa)
    管理形態/管理員の勤務形態:-/-
    バルコニー:8.2m²
    フリーレント:1ヶ月(2月中契約のお客様)
    非喫煙者限定
    エネルギー消費性能
    断熱性能
    目安光熱費
    バス・トイレ バス・トイレ別、浴室暖房、浴室乾燥機、オートバス、追焚機能、シャワー付洗面化粧台、洗面所独立、温水洗浄便座
    キッチン IHクッキングヒーター
    セキュリティー モニター付インターホン、ディンプルキー
    収納 全居室収納、ウォークインクローゼット、収納スペース、シューズボックス、床下収納
    設備・サービス 室内洗濯機置場、洗濯機置場、全居室フローリング、エアコン
    TV・通信 インターネット対応
    その他 バイク置き場、専用庭、庭、バルコニー、駐輪場
    契約期間 2年 現況 居住中
    条件等 入居可能時期 2026年2月上旬予定
    仲介手数料 1ヶ月    
    更新料 新賃料 1ヶ月 物件番号 6985514012
    情報公開日 2025年12月11日 次回更新予定日 2025年12月25日
    ケータイ用バーコード

    QRコード

    スマートフォンでこの物件を見る
    スマートフォンからもこの物件をご覧になれます。
    ※「-」と表示されている項目については、情報提供会社にご確認ください。

    この物件の周辺情報

    周辺施設 カスミイール妻沼店
    距離 90m
    周辺施設 マツモトキヨシイール妻沼店
    距離 120m
    周辺施設 コメリハード&グリーン妻沼店
    距離 347m
    周辺施設 マクドナルド407妻沼イール店
    距離 319m
    周辺施設 すき家407号熊谷弥藤吾店
    距離 462m
    周辺施設 熊谷市立妻沼南小学校
    距離 837m
    周辺施設 セブンイレブン熊谷弥藤吾店
    距離 812m
    周辺施設 田島保育園
    距離 1457m

    クイックお問い合わせ

    ここから簡単にお問い合わせをすることができます。
    (SSLでの暗号化での送信を希望されるお客さまは こちら よりお問い合わせください)

    お問い合わせ内容(必須)
    お名前(必須) 姓  名 
    メールアドレス(必須)
    ※携帯電話のメールアドレスをご入力される方はこちらをご確認ください
    電話番号(必須)
    - -

    ※入力いただいた電話番号へSMSまたは音声でパスワードをご連絡します。

    携帯電話の番号をご入力の方へ

    携帯電話の番号をご入力の方へ
    確認画面にて送信ボタンをクリックするとSMSが携帯電話に届きます。
    そのSMSに記載のパスワード(認証番号)を入力し、お問い合わせを完了してください。
    尚、SMSの送信者番号は 0005 202 760 となります。
    これはアットホームの固定番号です。

    備考欄 希望条件、物件案内希望日、質問などがございましたらご記入ください。
    お問い合わせを行う前に「個人情報の取り扱いについて」を必ずお読みください。
    「個人情報の取り扱いについて」に同意いただいた場合は「上記にご同意の上 確認画面へ進む」のボタンをクリックしてください。

    個人情報の取り扱いについて

    皆さまが送付された個人情報はアットホーム(株)のサーバを経由し、お問い合わせ先の不動産会社にメールまたはFAXにて転送されるためアットホーム(株)にも保管されます。アットホーム(株)で保管された個人情報の取り扱いについては、【こちら】をご覧ください。
    また、本画面でご記入いただいた個人情報は、お問い合わせ先の不動産会社でも保管します。 お問い合わせ先の不動産会社が保管する個人情報の取り扱いについては、不動産会社に直接お問い合わせください。

    情報提供会社

    情報提供会社

    (株)ライブズ

    埼玉県知事免許(2)第24058号

    交通:
    JR高崎線/熊谷駅 徒歩26分 【バス】7分 外科病院前 停歩5分
    埼玉県熊谷市佐谷田3742番地1 
    TEL:
    048-501-7618
    FAX:
    048-501-7628
    所属団体:
    (公社)埼玉県宅地建物取引業協会会員
    (公社)首都圏不動産公正取引協議会加盟

    取引態様:仲介

    • 会社情報
    • 00267026
    スマートフォンで
    この不動産会社を見る
    QRコード
    • とりあえず保存
    • お問い合わせ
    • 提携サイト等より掲載されている物件情報につきましては、不動産会社詳細情報にリンクされていないものがあります。
    • 物件に関するお問合せは、物件詳細ページの「情報提供会社」に表示されている不動産会社へ直接お願いいたします。
    • 間取図は、現況を優先させていただきます。
    • 映像は物件の一部を撮影したものです。物件の契約にあたっての最終判断はご自身の判断に基づいて行ってください。
    • 仲介手数料について仲介手数料

    アットホームは物件情報の適正化に努めております。 内容に誤りがある場合にはこちらへご連絡ください。

    【埼玉住まい情報】では、日本全国の物件から賃貸マンションや賃貸アパート・賃貸一戸建て等の賃貸住宅情報、新築マンション・分譲マンションや中古マンション等の売買マンション情報、新築一戸建てや中古一戸建てなどの戸建住宅、 土地など、総合的な不動産住宅情報検索サービスを提供致します。
    【埼玉住まい情報】から、選りすぐりの不動産物件を探してみましょう。

    【免責事項】
    このコーナーの運営はアットホーム株式会社(https://www.athome.co.jp/)が行っています。
    このコーナーに掲載している物件情報は、「アットホーム不動産情報ネットワーク」に加盟する不動産会社等(情報提供元)から提供されています。信頼性の高い情報提供が行えるよう、最大限の努力をしておりますが、その内容を保証するものではありません。 利用者のみなさまと各情報提供元との取引に起因する損害および情報が掲載されたことに起因する損害等については、株式会社イーシティ埼玉、およびアットホームは一切責任を負いません。
    各物件情報の内容や画像等はすべて現況を優先させていただきます。
    お取引等(お取引の準備、資金調達等を含みます)の際には、内容や契約条件等について、各情報提供元より十分な説明を受け、ご自身でご確認の上、判断してください。
    このコーナーへの物件情報のご掲載、その他不動産業務ソリューション等についての不動産会社様のお問合せはこちらからお願いいたします。

    物件画像: