不動産 賃貸 マンション等の住宅情報:埼玉住まい情報


福島県郡山市大町1丁目(郡山駅)の賃貸:物件詳細

  • 物件詳細
  • 情報の見方
  • 印刷用画面
交通
所在地
駅徒歩 賃料
管理費等
敷金/保証金
礼金
間取り
面積
物件種目
築年月

JR東北本線/郡山

福島県郡山市大町1丁目

6分

12.9万円

なし

2ヶ月 / なし

1ヶ月

4LDK

76.81m²

賃貸マンション

2002年3月(築23年10ヶ月)

おすすめPOINT分譲タイプ、角部屋、南向き、法人契約希望、3面採光、24時間換気システム、バリアフリー、外観タイル張り

おすすめコメント

\\2025年8月に大規模リフォーム済/IHクッキングヒーター・レンジフード・浴室・トイレは新品です!//郡山駅まで徒歩6分&最寄りのバス停まで徒歩2分!通勤通学に便利な立地で快適な暮らしが叶います♪

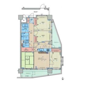
間取図

間取図

広々4LDKの間取り

外観

外観

郡山駅近くの分譲賃貸マンション

<
その他の画像
  • リビング
  • 室内
  • 室内
  • 室内
  • 室内
  • キッチン
  • バス/シャワー
  • トイレ
  • 洗面
  • 収納
  • 設備
  • 設備
  • エントランス
  • 共有部分
  • ショッピング施設
  • コンビニ
  • ショッピング施設
>
    • とりあえず保存
    • お問い合わせ
    交通

    JR東北本線 郡山駅 徒歩6分

    その他の交通

    東北新幹線 郡山駅 徒歩6分

    JR磐越西線 郡山駅 徒歩6分

    所在地 福島県郡山市大町1丁目
    物件種目 賃貸マンション
    賃料 12.9万円 管理費等 なし
    敷金 / 保証金 2ヶ月 / なし 礼金 1ヶ月
    敷引 保証金償却
    その他一時金 鍵交換代等:23,650円~ 保険等 要 2年 20,000円
    維持費等
    間取り 4LDK 専有面積 76.81m²
    築年月 2002年3月(築23年10ヶ月) 階建 / 階 11階建 / 4階
    建物構造 SRC 総戸数
    主要採光面 駐車場 有 7,000円/月
    バイク置き場 駐輪場
    建物名・部屋番号   ペット
    アピールポイント ◆南向き4LDK分譲マンション!
    ◆カウンターキッチン越しにリビングが見渡せるので家族との団らんの時間も過ごせます♪
    ◆3面バルコニーは南向きなので洗濯物が早く乾き、ぽかぽかと温かい日差しが入ります!
    ◆大規模リフォーム済!IHクッキングヒーターや浴室、トイレなど新品をお使いいただけます。
    ◆全てのお部屋に収納があるのでお部屋を広々と使うこともできます!
    ◆不在時の通販受け取りで重宝する宅配BOX付
    ◆管理人有の為、セキュリティ面でも安心、常に清潔感のあるマンションです。
    ◆当社が内見からご入居までサポートいたします♪是非その目でお確かめください(^^)
    リフォーム履歴 ■水回り:2025年8月
    キッチン、浴室、トイレ、洗面所
    IHクッキングヒーター・レンジフード・浴室・トイレ新品交換済
    ■内装:2025年8月
    全室クロス張替え、壁・天井(クロス・塗装等)
    キッチンのクッションフロア張替え済
    ※実施年月は最も古い履歴を表示
    リノベーション履歴
    備考
    賃貸保証等:加入要(アーク賃貸保証)
    管理形態/管理員の勤務形態:-/日勤
    非喫煙者限定、管理人日勤
    ◆駐車場1台込み(敷地内の機械式駐車場)
    ◆サイズ要確認/全長4700ミリ、全幅1750ミリ、高さ1550ミリ、重さ1600キロ以下

    ◆郡山駅まで徒歩6分
    ◆バス停「赤木町」まで徒歩2分

    ◆赤木小・第二中
    エネルギー消費性能
    断熱性能
    目安光熱費
    バス・トイレ バス・トイレ別、浴室暖房、浴室乾燥機、オートバス、追焚機能、シャワー付洗面化粧台、洗面所独立、洗面所、洗面台、温水洗浄便座
    キッチン カウンターキッチン、システムキッチン、IHクッキングヒーター、グリル
    セキュリティー オートロック、モニター付インターホン
    収納 全居室収納、収納スペース、シューズボックス
    設備・サービス エアコン2台以上、室内洗濯機置場、洗濯機置場、フローリング、都市ガス、人感センサー付照明、照明器具
    TV・通信 インターネット対応、CS、BS端子、マルチメディアコンセント
    その他 宅配BOX、三面バルコニー、二面バルコニー、エレベーター
    契約期間 2年 現況 空家
    条件等 入居可能時期 相談
    仲介手数料 1.1ヶ月    
    更新料 なし 物件番号 6985614661
    情報公開日 2025年8月8日 次回更新予定日 2025年12月19日
    ケータイ用バーコード

    QRコード

    スマートフォンでこの物件を見る
    スマートフォンからもこの物件をご覧になれます。
    ※「-」と表示されている項目については、情報提供会社にご確認ください。

    この物件の周辺情報

    周辺施設 ヨークベニマル横塚店
    距離 1500m
    周辺施設 ローソン郡山大町店
    距離 400m
    周辺施設 マツモトキヨシ エルパル郡山店
    距離 650m
    周辺施設 郡山市立郡山第二中学校
    距離 1500m
    周辺施設 郡山市立赤木小学校
    距離 600m

    クイックお問い合わせ

    ここから簡単にお問い合わせをすることができます。
    (SSLでの暗号化での送信を希望されるお客さまは こちら よりお問い合わせください)

    お問い合わせ内容(必須)
    お名前(必須) 姓  名 
    メールアドレス(必須)
    ※携帯電話のメールアドレスをご入力される方はこちらをご確認ください
    電話番号(必須)
    - -

    ※入力いただいた電話番号へSMSまたは音声でパスワードをご連絡します。

    携帯電話の番号をご入力の方へ

    携帯電話の番号をご入力の方へ
    確認画面にて送信ボタンをクリックするとSMSが携帯電話に届きます。
    そのSMSに記載のパスワード(認証番号)を入力し、お問い合わせを完了してください。
    尚、SMSの送信者番号は 0005 202 760 となります。
    これはアットホームの固定番号です。

    備考欄 希望条件、物件案内希望日、質問などがございましたらご記入ください。
    お問い合わせを行う前に「個人情報の取り扱いについて」を必ずお読みください。
    「個人情報の取り扱いについて」に同意いただいた場合は「上記にご同意の上 確認画面へ進む」のボタンをクリックしてください。

    個人情報の取り扱いについて

    皆さまが送付された個人情報はアットホーム(株)のサーバを経由し、お問い合わせ先の不動産会社にメールまたはFAXにて転送されるためアットホーム(株)にも保管されます。アットホーム(株)で保管された個人情報の取り扱いについては、【こちら】をご覧ください。
    また、本画面でご記入いただいた個人情報は、お問い合わせ先の不動産会社でも保管します。 お問い合わせ先の不動産会社が保管する個人情報の取り扱いについては、不動産会社に直接お問い合わせください。

    情報提供会社

    情報提供会社

    (株)バースランド

    国土交通大臣免許(3)第8287号

    交通:
    JR東北本線/郡山駅 【バス】10分 総合体育館前 停歩3分
    福島県郡山市豊田町4番13号 
    TEL:
    024-925-7255
    FAX:
    024-925-7256
    所属団体:
    (公社)福島県宅地建物取引業協会会員
    東北地区不動産公正取引協議会加盟

    取引態様:仲介

    • 会社情報
    • 20002581
    スマートフォンで
    この不動産会社を見る
    QRコード
    • とりあえず保存
    • お問い合わせ
    • 提携サイト等より掲載されている物件情報につきましては、不動産会社詳細情報にリンクされていないものがあります。
    • 物件に関するお問合せは、物件詳細ページの「情報提供会社」に表示されている不動産会社へ直接お願いいたします。
    • 間取図は、現況を優先させていただきます。
    • 映像は物件の一部を撮影したものです。物件の契約にあたっての最終判断はご自身の判断に基づいて行ってください。
    • 仲介手数料について仲介手数料

    アットホームは物件情報の適正化に努めております。 内容に誤りがある場合にはこちらへご連絡ください。

    【埼玉住まい情報】では、日本全国の物件から賃貸マンションや賃貸アパート・賃貸一戸建て等の賃貸住宅情報、新築マンション・分譲マンションや中古マンション等の売買マンション情報、新築一戸建てや中古一戸建てなどの戸建住宅、 土地など、総合的な不動産住宅情報検索サービスを提供致します。
    【埼玉住まい情報】から、選りすぐりの不動産物件を探してみましょう。

    【免責事項】
    このコーナーの運営はアットホーム株式会社(https://www.athome.co.jp/)が行っています。
    このコーナーに掲載している物件情報は、「アットホーム不動産情報ネットワーク」に加盟する不動産会社等(情報提供元)から提供されています。信頼性の高い情報提供が行えるよう、最大限の努力をしておりますが、その内容を保証するものではありません。 利用者のみなさまと各情報提供元との取引に起因する損害および情報が掲載されたことに起因する損害等については、株式会社イーシティ埼玉、およびアットホームは一切責任を負いません。
    各物件情報の内容や画像等はすべて現況を優先させていただきます。
    お取引等(お取引の準備、資金調達等を含みます)の際には、内容や契約条件等について、各情報提供元より十分な説明を受け、ご自身でご確認の上、判断してください。
    このコーナーへの物件情報のご掲載、その他不動産業務ソリューション等についての不動産会社様のお問合せはこちらからお願いいたします。

    物件画像: