不動産 賃貸 マンション等の住宅情報:埼玉住まい情報


福岡県中間市長津2丁目の賃貸:物件詳細

  • 物件詳細
  • 情報の見方
  • 印刷用画面
交通
所在地
駅徒歩 賃料
管理費等
敷金/保証金
礼金
間取り
面積
物件種目
築年月

【バス】長津二丁目 停歩4分

福岡県中間市長津2丁目

2.9万円

なし

なし / なし

なし

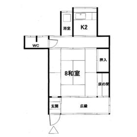
1K

38.31m²

賃貸一戸建て

1951年1月(築75年5ヶ月)

おすすめPOINT南向き

おすすめコメント

こういうコストって意外とばかになりません・・・礼金敷金(保証金)0円。広々とした延床面積38.31㎡の居室空間、更に居室空間の延長で使える専用庭付だから、住スペースと心の両方にゆとりがもてます。

間取図

間取図

外観

外観

<
その他の画像
  • 駐車場
  • キッチン
  • リビング
  • 設備
  • 収納
  • 設備
  • 室内
  • バス/シャワー
  • 設備
  • トイレ
  • その他
  • 玄関
  • その他
  • 庭
  • ショッピング施設
  • ショッピング施設
  • コンビニ
  • 販売店
  • 販売店
  • 中学校
  • 小学校
  • 幼稚園、保育園
>
    • とりあえず保存
    • お問い合わせ
    交通

    【バス】 長津二丁目 停歩4分

    その他の交通

    JR筑豊本線 中間駅 徒歩9分

    JR筑豊本線 東水巻駅 徒歩21分

    所在地 福岡県中間市長津2丁目
    物件種目 賃貸一戸建て
    賃料 2.9万円 管理費等 なし
    敷金 / 保証金 なし / なし 礼金 なし
    敷引 保証金償却
    その他一時金 保険等 要 2年 ハイパー家財
    維持費等
    間取り 1K(和 8 K 2) 専有面積 38.31m²
    築年月 1951年1月(築75年5ヶ月) 階建 / 階 平屋建
    建物構造 木造 総戸数
    主要採光面 駐車場 有 3,000円/月
    バイク置き場 駐輪場
    建物名・部屋番号 長津二丁目岩崎一戸建32-3号 ペット
    アピールポイント この浮いたお金でうまくやりくりを!礼金敷金(保証金)0円。広々とした延床面積38.31㎡の居室空間、更に居住空間を広く感じさせる専用庭付だから、住スペースと心の両方にゆとりがもてます。また南向の住居で、その上スピーカーとディスプレイを備えたモニタ付インターホン設置なので、来訪者を顔確認できて安心です。ちなみにワンフロアでゆったり暮らせる平屋です。使い勝手のよい1K。ご案内いたしますのでお気軽にご連絡ください。
    リフォーム履歴
    リノベーション履歴
    備考
    賃貸保証等:加入要(ふれんずサポート保証 ※保証料(駐車場1台契約時):40,000円(通常保証料30,000円+単身特約保証料10,000円、契約時のみ支払い、更新なし))
    管理形態/管理員の勤務形態:-/-
    ・中間小・中校区
    ・当該物件には下水道が引き込まれておりません。トイレは汲み取り式となります。
    ・現在備え付けてあるエアコン、照明器具は、サービス設置品となります。宜しければご使用下さい。

    ※短期解約違約金有。(1年未満の解約は、賃料の1ヶ月分必要。)
    エネルギー消費性能
    断熱性能
    目安光熱費
    バス・トイレ バス・トイレ別、追焚機能、シャワー、トイレ
    キッチン ガスコンロ可
    セキュリティー モニター付インターホン、火災警報器(報知機)
    収納 収納スペース
    設備・サービス 室内洗濯機置場、プロパンガス給湯、給湯、フローリング、プロパンガス、エアコン、照明器具
    TV・通信
    その他 専用庭
    契約期間 2年 現況 空家
    条件等 入居可能時期 相談
    更新料 なし 物件番号 6985687632
    情報公開日 2025年3月23日 次回更新予定日 2026年5月15日
    ケータイ用バーコード

    QRコード

    スマートフォンでこの物件を見る
    スマートフォンからもこの物件をご覧になれます。
    ※「-」と表示されている項目については、情報提供会社にご確認ください。

    この物件の周辺情報

    周辺施設 サンキ中間店
    距離 563m
    周辺施設 フードウェイ中間店
    距離 547m
    周辺施設 セブンイレブン中間長津2丁目店
    距離 381m
    周辺施設 ディスカウントドラッグコスモス中鶴店
    距離 720m
    周辺施設 サンドラッグ中鶴店
    距離 851m
    周辺施設 中間市立中間中学校
    距離 2205m
    周辺施設 中間市立中間小学校
    距離 439m
    周辺施設 中間保育園
    距離 199m

    クイックお問い合わせ

    ここから簡単にお問い合わせをすることができます。
    (SSLでの暗号化での送信を希望されるお客さまは こちら よりお問い合わせください)

    お問い合わせ内容(必須)
    お名前(必須) 姓  名 
    メールアドレス(必須)
    ※携帯電話のメールアドレスをご入力される方はこちらをご確認ください
    電話番号(必須)
    - -

    ※入力いただいた電話番号へSMSまたは音声でパスワードをご連絡します。

    携帯電話の番号をご入力の方へ

    携帯電話の番号をご入力の方へ
    確認画面にて送信ボタンをクリックするとSMSが携帯電話に届きます。
    そのSMSに記載のパスワード(認証番号)を入力し、お問い合わせを完了してください。
    尚、SMSの送信者番号は 0005 202 760 となります。
    これはアットホームの固定番号です。

    備考欄 希望条件、物件案内希望日、質問などがございましたらご記入ください。
    お問い合わせを行う前に「個人情報の取り扱いについて」を必ずお読みください。
    「個人情報の取り扱いについて」に同意いただいた場合は「上記にご同意の上 確認画面へ進む」のボタンをクリックしてください。

    個人情報の取り扱いについて

    皆さまが送付された個人情報はアットホーム(株)のサーバを経由し、お問い合わせ先の不動産会社にメールまたはFAXにて転送されるためアットホーム(株)にも保管されます。アットホーム(株)で保管された個人情報の取り扱いについては、【こちら】をご覧ください。
    また、本画面でご記入いただいた個人情報は、お問い合わせ先の不動産会社でも保管します。 お問い合わせ先の不動産会社が保管する個人情報の取り扱いについては、不動産会社に直接お問い合わせください。

    情報提供会社

    情報提供会社

    (株)岩崎興産

    福岡県知事免許(11)第7940号

    交通:
    【西鉄バス】 香月営業所 停歩2分
    福岡県北九州市八幡西区香月西2丁目15-15 
    TEL:
    093-617-0200
    FAX:
    093-617-0038
    所属団体:
    (公社)福岡県宅地建物取引業協会会員
    (一社)九州不動産公正取引協議会加盟

    取引態様:仲介

    • 会社情報
    • 80900029
    スマートフォンで
    この不動産会社を見る
    QRコード
    • とりあえず保存
    • お問い合わせ
    • 提携サイト等より掲載されている物件情報につきましては、不動産会社詳細情報にリンクされていないものがあります。
    • 物件に関するお問合せは、物件詳細ページの「情報提供会社」に表示されている不動産会社へ直接お願いいたします。
    • 間取図は、現況を優先させていただきます。
    • 映像は物件の一部を撮影したものです。物件の契約にあたっての最終判断はご自身の判断に基づいて行ってください。
    • 仲介手数料について仲介手数料

    アットホームは物件情報の適正化に努めております。 内容に誤りがある場合にはこちらへご連絡ください。

    【埼玉住まい情報】では、日本全国の物件から賃貸マンションや賃貸アパート・賃貸一戸建て等の賃貸住宅情報、新築マンション・分譲マンションや中古マンション等の売買マンション情報、新築一戸建てや中古一戸建てなどの戸建住宅、 土地など、総合的な不動産住宅情報検索サービスを提供致します。
    【埼玉住まい情報】から、選りすぐりの不動産物件を探してみましょう。

    【免責事項】
    このコーナーの運営はアットホーム株式会社(https://www.athome.co.jp/)が行っています。
    このコーナーに掲載している物件情報は、「アットホーム不動産情報ネットワーク」に加盟する不動産会社等(情報提供元)から提供されています。信頼性の高い情報提供が行えるよう、最大限の努力をしておりますが、その内容を保証するものではありません。 利用者のみなさまと各情報提供元との取引に起因する損害および情報が掲載されたことに起因する損害等については、株式会社イーシティ埼玉、およびアットホームは一切責任を負いません。
    各物件情報の内容や画像等はすべて現況を優先させていただきます。
    お取引等(お取引の準備、資金調達等を含みます)の際には、内容や契約条件等について、各情報提供元より十分な説明を受け、ご自身でご確認の上、判断してください。
    このコーナーへの物件情報のご掲載、その他不動産業務ソリューション等についての不動産会社様のお問合せはこちらからお願いいたします。

    物件画像: