不動産 賃貸 マンション等の住宅情報:埼玉住まい情報


福島県会津若松市宝町(西若松駅)の賃貸:物件詳細

  • 物件詳細
  • 情報の見方
  • 印刷用画面
交通
所在地
駅徒歩 賃料
管理費等
敷金/保証金
礼金
間取り
面積
物件種目
築年月

会津鉄道/西若松

福島県会津若松市宝町

36分

6.5万円

9,500円

なし / なし

1ヶ月

5DK

97.15m²

賃貸一戸建て

1985年2月(築40年11ヶ月)

おすすめPOINTペット相談、二人入居可、事務所使用可、法人契約希望、3面採光、置き配スペース

おすすめコメント  スタッフ: 小山 英樹

宝町3番28号、貸家5DK、ペット可(小型犬)、事務所利用可、鶴城小(若2中)学区、徒歩圏内に各施設が充実!

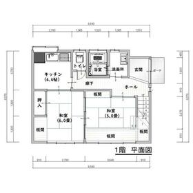
間取図

間取図

1F平面図、宝町貸家、5DK、ペット可(小型)、南側にバルコニー(4.5帖)、各部屋に収納付!

その他

その他

ペットと住める一戸建て、かわいい小型ペットと一緒に住めるお家です!

<
その他の画像
  • 外観
  • 間取図
  • 案内図
  • 外観
  • 外観
  • 玄関
  • 玄関
  • リビング
  • トイレ
  • リビング
  • キッチン
  • トイレ
  • バス/シャワー
  • バス/シャワー
  • その他
  • バルコニー
  • バルコニー
  • 室内
  • 室内
  • 室内
  • 室内
  • バルコニー
  • 周辺環境
  • 周辺環境
  • 周辺環境
  • 周辺環境
  • 周辺環境
  • ショッピング施設
  • 飲食店
  • 幼稚園、保育園
  • 小学校
  • 中学校
  • 販売店
  • 郵便局
  • 銀行
>
    • とりあえず保存
    • お問い合わせ
    交通

    会津鉄道 西若松駅 徒歩36分

    所在地 福島県会津若松市宝町
    物件種目 賃貸一戸建て
    賃料 6.5万円 管理費等 9,500円
    敷金 / 保証金 なし / なし 礼金 1ヶ月
    敷引 保証金償却
    その他一時金 退去時清掃料:65,000円、審査事務手数料:1,100円、鍵交換代等:44,000円~ 保険等 要 2年 32,500円 火災
    維持費等 町内会費:4,800円/年、死亡時原状回復保証:2,000円/年、スピードペイ利用手数料:5,000円/年
    間取り 5DK(和 6・5・6・6・7 DK 4.5) 専有面積 97.15m²
    築年月 1985年2月(築40年11ヶ月) 階建 / 階 2階建
    建物構造 木造 総戸数 1戸
    主要採光面 南東 駐車場 有 5,500円/月
    バイク置き場 駐輪場
    建物名・部屋番号   ペット 小型犬可・ 猫可・ 多頭飼いは不可。
    アピールポイント 宝町3番28号、貸家5DK、ペット可(小型犬)、事務所利用可、
    鶴城小(若2中)学区、徒歩圏内に各施設が充実!

    経験豊富なスタッフ(宅建士、測量士、防災士、住宅ローンアドバイザー、
    FP、1級建築施工、1級土木施工など)が実績と専門知識を活かし、
    トータルサポート致します。

    ☆★☆物件アピール☆★☆
    ①貸家、貸事務所、社宅など。
    ②南側採光。
    ③公共施設や商業施設まで徒歩圏内。
    ④徒歩圏内に施設充実。
    ⑤ペット可(小型)。

    ★☆★周辺環境★☆★
    ①ヨーク花春店 徒歩4分 
    ②ツルハ薬局 徒歩3分
    ③中央保育所 徒歩4分
    ④鶴城小学校 徒歩17分
    ⑤若2中 徒歩9分
    ⑥小田郵便局 徒歩3分
    ⑦東邦滝沢支店 徒歩12分
    ⑧さいとう内科 徒歩7分


    ★★★賃貸物件に関するご相談を承ります★★★
    ①勤続年数の少ない方
    ②自己資金の少ない方
    ③他にお借入れのある方
    ④建物改装工事のご相談
    その他、不動産購入で不安な点はご相談ください。
    リフォーム履歴
    リノベーション履歴
    備考
    賃貸保証等:加入要(CIZ(家賃+共益金+駐車場×77%))
    管理形態/管理員の勤務形態:-/-
    バルコニー:8.19m²
    宝町3番28号、貸家5DK、ペット可(小型犬)、事務所利用可、
    鶴城小(若2中)学区、徒歩圏内に各施設が充実!

    経験豊富なスタッフ(宅建士、測量士、防災士、住宅ローンアドバイザー、
    FP、1級建築施工、1級土木施工など)が実績と専門知識を活かし、
    トータルサポート致します。

    ☆★☆物件アピール☆★☆
    ①貸家、貸事務所、社宅など。
    ②南側採光。
    ③公共施設や商業施設まで徒歩圏内。
    ④徒歩圏内に施設充実。
    ⑤ペット可(小型)。

    ★☆★周辺環境★☆★
    ①ヨーク花春店 徒歩4分 
    ②ツルハ薬局 徒歩3分
    ③中央保育所 徒歩4分
    ④鶴城小学校 徒歩17分
    ⑤若2中 徒歩9分
    ⑥小田郵便局 徒歩3分
    ⑦東邦滝沢支店 徒歩12分
    ⑧さいとう内科 徒歩7分


    ★★★賃貸物件に関するご相談を承ります★★★
    ①勤続年数の少ない方
    ②自己資金の少ない方
    ③他にお借入れのある方
    ④建物改装工事のご相談
    その他、不動産購入で不安な点はご相談ください。
    エネルギー消費性能
    断熱性能
    目安光熱費
    バス・トイレ バス・トイレ別、洗面所独立、シャワー、温水洗浄便座
    キッチン 3口以上コンロ
    セキュリティー モニター付インターホン、火災警報器(報知機)
    収納 全居室収納
    設備・サービス 室内洗濯機置場、プロパンガス給湯、給湯、クッションフロア、エアコン、人感センサー付照明、照明器具、電話
    TV・通信 インターネット対応
    その他 ワイドバルコニー
    契約期間 2年 現況 空家
    条件等 入居可能時期 即時
    仲介手数料 不要    
    更新料 新賃料 1ヶ月 物件番号 6986156550
    情報公開日 2025年5月1日 次回更新予定日 2025年12月20日
    ケータイ用バーコード

    QRコード

    スマートフォンでこの物件を見る
    スマートフォンからもこの物件をご覧になれます。
    ※「-」と表示されている項目については、情報提供会社にご確認ください。

    この物件の周辺情報

    周辺施設 ヨークベニマル花春店
    距離 441m
    周辺施設 デニーズ会津花春店
    距離 441m
    周辺施設 会津若松市中央保育所
    距離 315m
    周辺施設 会津若松市立鶴城小学校
    距離 1329m
    周辺施設 会津若松市立第二中学校
    距離 697m
    周辺施設 カワチ薬品花春店
    距離 259m
    周辺施設 若松小田垣郵便局
    距離 200m
    周辺施設 東邦銀行滝沢支店
    距離 935m

    クイックお問い合わせ

    ここから簡単にお問い合わせをすることができます。
    (SSLでの暗号化での送信を希望されるお客さまは こちら よりお問い合わせください)

    お問い合わせ内容(必須)
    お名前(必須) 姓  名 
    メールアドレス(必須)
    ※携帯電話のメールアドレスをご入力される方はこちらをご確認ください
    電話番号(必須)
    - -

    ※入力いただいた電話番号へSMSまたは音声でパスワードをご連絡します。

    携帯電話の番号をご入力の方へ

    携帯電話の番号をご入力の方へ
    確認画面にて送信ボタンをクリックするとSMSが携帯電話に届きます。
    そのSMSに記載のパスワード(認証番号)を入力し、お問い合わせを完了してください。
    尚、SMSの送信者番号は 0005 202 760 となります。
    これはアットホームの固定番号です。

    備考欄 希望条件、物件案内希望日、質問などがございましたらご記入ください。
    お問い合わせを行う前に「個人情報の取り扱いについて」を必ずお読みください。
    「個人情報の取り扱いについて」に同意いただいた場合は「上記にご同意の上 確認画面へ進む」のボタンをクリックしてください。

    個人情報の取り扱いについて

    皆さまが送付された個人情報はアットホーム(株)のサーバを経由し、お問い合わせ先の不動産会社にメールまたはFAXにて転送されるためアットホーム(株)にも保管されます。アットホーム(株)で保管された個人情報の取り扱いについては、【こちら】をご覧ください。
    また、本画面でご記入いただいた個人情報は、お問い合わせ先の不動産会社でも保管します。 お問い合わせ先の不動産会社が保管する個人情報の取り扱いについては、不動産会社に直接お問い合わせください。

    情報提供会社

    情報提供会社

    (株)フロンティア

    福島県知事免許(4)第2864号

    交通:
    JR磐越西線/会津若松駅 徒歩24分
    福島県会津若松市東栄町2-3 
    TEL:
    0242-23-7751
    FAX:
    024-505-4811
    所属団体:
    (公社)福島県宅地建物取引業協会会員
    東北地区不動産公正取引協議会加盟

    取引態様:貸主

    • 会社情報
    • 20005436
    スマートフォンで
    この不動産会社を見る
    QRコード
    • とりあえず保存
    • お問い合わせ
    • 提携サイト等より掲載されている物件情報につきましては、不動産会社詳細情報にリンクされていないものがあります。
    • 物件に関するお問合せは、物件詳細ページの「情報提供会社」に表示されている不動産会社へ直接お願いいたします。
    • 間取図は、現況を優先させていただきます。
    • 映像は物件の一部を撮影したものです。物件の契約にあたっての最終判断はご自身の判断に基づいて行ってください。
    • 仲介手数料について仲介手数料

    アットホームは物件情報の適正化に努めております。 内容に誤りがある場合にはこちらへご連絡ください。

    【埼玉住まい情報】では、日本全国の物件から賃貸マンションや賃貸アパート・賃貸一戸建て等の賃貸住宅情報、新築マンション・分譲マンションや中古マンション等の売買マンション情報、新築一戸建てや中古一戸建てなどの戸建住宅、 土地など、総合的な不動産住宅情報検索サービスを提供致します。
    【埼玉住まい情報】から、選りすぐりの不動産物件を探してみましょう。

    【免責事項】
    このコーナーの運営はアットホーム株式会社(https://www.athome.co.jp/)が行っています。
    このコーナーに掲載している物件情報は、「アットホーム不動産情報ネットワーク」に加盟する不動産会社等(情報提供元)から提供されています。信頼性の高い情報提供が行えるよう、最大限の努力をしておりますが、その内容を保証するものではありません。 利用者のみなさまと各情報提供元との取引に起因する損害および情報が掲載されたことに起因する損害等については、株式会社イーシティ埼玉、およびアットホームは一切責任を負いません。
    各物件情報の内容や画像等はすべて現況を優先させていただきます。
    お取引等(お取引の準備、資金調達等を含みます)の際には、内容や契約条件等について、各情報提供元より十分な説明を受け、ご自身でご確認の上、判断してください。
    このコーナーへの物件情報のご掲載、その他不動産業務ソリューション等についての不動産会社様のお問合せはこちらからお願いいたします。

    物件画像: