和歌山県橋本市三石台3丁目(林間田園都市駅)の賃貸:物件詳細
交通 所在地 |
駅徒歩 |
賃料 管理費等 |
敷金/保証金 礼金 |
間取り 面積 |
物件種目 築年月 |
|
南海高野線/林間田園都市
和歌山県橋本市三石台3丁目
|
10分
|
7万円
なし
|
10万円 / なし
10万円
|
4LDK
78.80m²
|
賃貸マンション
1994年6月(築31年10ヶ月)
|
分譲タイプ
|
|
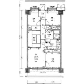
間取図
|
|
<
その他の画像
>
|
| 交通 | 南海高野線 林間田園都市駅 徒歩10分 |
| 所在地 |
和歌山県橋本市三石台3丁目
|
| 物件種目 |
賃貸マンション |
| 賃料 |
7万円 |
管理費等 |
なし |
| 敷金 / 保証金 |
10万円 / なし |
礼金 |
10万円 |
| 敷引 |
- |
保証金償却 |
- |
| その他一時金 |
- |
保険等 |
要 2年 20,000円 借家人賠償付家財 |
| 維持費等 |
- |
| 間取り |
4LDK(和 6 洋 5・6・6.5 LDK 13.5) |
専有面積 |
78.80m² |
| 築年月 |
1994年6月(築31年10ヶ月)
|
階建 / 階 |
地上14階地下2階建 / 6階 |
| 建物構造 |
SRC |
総戸数 |
205戸 |
| 主要採光面 |
東 |
駐車場 |
有 8,000円/月 |
| バイク置き場 |
有 |
駐輪場 |
有 |
| 建物名・部屋番号 |
|
ペット |
-
|
| リフォーム履歴 |
- |
| リノベーション履歴 |
- |
| 備考 |
賃貸保証等:加入要(初回保証委託料:35,000円(以降毎年更新料:10,000円))
管理形態/管理員の勤務形態:-/-
バルコニー:12.35m²
|
| エネルギー消費性能 |
- |
| 断熱性能 |
- |
| 目安光熱費 |
- |
| バス・トイレ |
バス・トイレ別、高温差湯式、洗面所 |
| キッチン |
システムキッチン、3口以上コンロ |
| セキュリティー |
- |
| 収納 |
全居室収納、シューズボックス |
| 設備・サービス |
洗濯機置場、プロパンガス給湯、プロパンガス |
| TV・通信 |
- |
| その他 |
バイク置き場、エレベーター2基以上、バルコニー、駐輪場 |
| 契約期間 |
2年 |
現況 |
空家 |
| 条件等 |
- |
入居可能時期 |
即時 |
| 仲介手数料 |
不要 |
|
|
| 更新料 |
- |
物件番号 |
6986316802 |
| 情報公開日 |
2026年3月17日 |
次回更新予定日 |
2026年3月31日 |
| ケータイ用バーコード |
- スマートフォンでこの物件を見る
- スマートフォンからもこの物件をご覧になれます。
|
※「-」と表示されている項目については、情報提供会社にご確認ください。
ここから簡単にお問い合わせをすることができます。
(SSLでの暗号化での送信を希望されるお客さまは
こちら
よりお問い合わせください)
お問い合わせを行う前に
「個人情報の取り扱いについて」を必ずお読みください。
「個人情報の取り扱いについて」に同意いただいた場合は「上記にご同意の上 確認画面へ進む」のボタンをクリックしてください。
個人情報の取り扱いについて
皆さまが送付された個人情報はアットホーム(株)のサーバを経由し、お問い合わせ先の不動産会社にメールまたはFAXにて転送されるためアットホーム(株)にも保管されます。アットホーム(株)で保管された個人情報の取り扱いについては、【こちら】をご覧ください。
また、本画面でご記入いただいた個人情報は、お問い合わせ先の不動産会社でも保管します。 お問い合わせ先の不動産会社が保管する個人情報の取り扱いについては、不動産会社に直接お問い合わせください。
和歌山県知事免許(12)第1942号 |
|---|
- 交通:
- 南海高野線/林間田園都市駅 徒歩1分
- 和歌山県橋本市三石台1丁目3-9
- TEL:
- 0736-37-5858
- FAX:
- 0736-37-5855
- 所属団体:
- (公社)和歌山県宅地建物取引業協会会員(公社)近畿地区不動産公正取引協議会加盟
取引態様:貸主  - 50006802
|
- スマートフォンで
この不動産会社を見る

|
- 提携サイト等より掲載されている物件情報につきましては、不動産会社詳細情報にリンクされていないものがあります。
- 物件に関するお問合せは、物件詳細ページの「情報提供会社」に表示されている不動産会社へ直接お願いいたします。
- 間取図は、現況を優先させていただきます。
- 映像は物件の一部を撮影したものです。物件の契約にあたっての最終判断はご自身の判断に基づいて行ってください。
- 仲介手数料について

アットホームは物件情報の適正化に努めております。
内容に誤りがある場合にはこちらへご連絡ください。