岩手県紫波郡矢巾町大字南矢幅第13地割(矢幅駅)の賃貸:物件詳細
交通 所在地 |
駅徒歩 |
賃料 管理費等 |
敷金/保証金 礼金 |
間取り 面積 |
物件種目 築年月 |
JR東北本線/矢幅
岩手県紫波郡矢巾町大字南矢幅第13地割
|
11分
|
4万円
3,000円
|
1ヶ月 / なし
1ヶ月
|
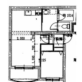
1LDK
35.67m²
|
賃貸マンション
1998年8月(築27年3ヶ月)
|
南向き
|
間取図
|
室内
|
その他の画像
|
交通 | JR東北本線 矢幅駅 徒歩11分 |
所在地 |
岩手県紫波郡矢巾町大字南矢幅第13地割
|
物件種目 |
賃貸マンション |
賃料 |
4万円 |
管理費等 |
3,000円 |
敷金 / 保証金 |
1ヶ月 / なし |
礼金 |
1ヶ月 |
敷引 |
- |
保証金償却 |
- |
その他一時金 |
- |
保険等 |
要 2年 |
維持費等 |
- |
間取り |
1LDK |
専有面積 |
35.67m² |
築年月 |
1998年8月(築27年3ヶ月)
|
階建 / 階 |
3階建 / 2階 |
建物構造 |
RC |
総戸数 |
6戸 |
主要採光面 |
南 |
駐車場 |
有 2,200円/月 |
バイク置き場 |
- |
駐輪場 |
無 |
建物名・部屋番号 |
プロージェ神前 201号 |
ペット |
-
|
アピールポイント |
玄関が片付くシューズボックス付、更にそれぞれゆったり使えるバスとトイレが別々の住居なので、長風呂もトイレお篭りも問題なし。 |
リフォーム履歴 |
- |
リノベーション履歴 |
- |
備考 |
賃貸保証等:加入要(月額賃料総額の80%)
管理形態/管理員の勤務形態:-/-
|
エネルギー消費性能 |
- |
断熱性能 |
- |
目安光熱費 |
- |
バス・トイレ |
バス・トイレ別、洗面台、シャワー、トイレ |
キッチン |
ガスコンロ付 |
セキュリティー |
火災警報器(報知機) |
収納 |
クローゼット、シューズボックス |
設備・サービス |
給湯、フローリング、プロパンガス、エアコン、照明器具 |
TV・通信 |
- |
その他 |
- |
契約期間 |
2年 |
現況 |
空家 |
条件等 |
- |
入居可能時期 |
即時 |
仲介手数料 |
1ヶ月 |
|
|
更新料 |
11,000円 |
物件番号 |
6986409153 |
情報公開日 |
2025年7月8日 |
次回更新予定日 |
2025年10月25日 |
ケータイ用バーコード |
- スマートフォンでこの物件を見る
- スマートフォンからもこの物件をご覧になれます。
|
※「-」と表示されている項目については、情報提供会社にご確認ください。
周辺施設 |
エネオスDr.Drive矢巾店 |
距離 |
71m |
ここから簡単にお問い合わせをすることができます。
(SSLでの暗号化での送信を希望されるお客さまは
こちら
よりお問い合わせください)
お問い合わせを行う前に
「個人情報の取り扱いについて」を必ずお読みください。
「個人情報の取り扱いについて」に同意いただいた場合は「上記にご同意の上 確認画面へ進む」のボタンをクリックしてください。
個人情報の取り扱いについて
皆さまが送付された個人情報はアットホーム(株)のサーバを経由し、お問い合わせ先の不動産会社にメールまたはFAXにて転送されるためアットホーム(株)にも保管されます。アットホーム(株)で保管された個人情報の取り扱いについては、【こちら】をご覧ください。
また、本画面でご記入いただいた個人情報は、お問い合わせ先の不動産会社でも保管します。 お問い合わせ先の不動産会社が保管する個人情報の取り扱いについては、不動産会社に直接お問い合わせください。
岩手県知事免許(2)第2635号 |
---|
- 交通:
- JR東北本線/矢幅駅 徒歩3分 【バス】 矢幅駅前 停歩3分
- 岩手県紫波郡矢巾町駅東1丁目15-15
- TEL:
- 019-697-8181
- FAX:
- 019-697-8018
- 所属団体:
- (一社)岩手県宅地建物取引業協会会員東北地区不動産公正取引協議会加盟
取引態様:仲介  - 20007227
|
- スマートフォンで
この不動産会社を見る

|
- 提携サイト等より掲載されている物件情報につきましては、不動産会社詳細情報にリンクされていないものがあります。
- 物件に関するお問合せは、物件詳細ページの「情報提供会社」に表示されている不動産会社へ直接お願いいたします。
- 間取図は、現況を優先させていただきます。
- 映像は物件の一部を撮影したものです。物件の契約にあたっての最終判断はご自身の判断に基づいて行ってください。
- 仲介手数料について

アットホームは物件情報の適正化に努めております。
内容に誤りがある場合にはこちらへご連絡ください。