東京都墨田区東墨田2丁目(八広駅)の賃貸:物件詳細
交通 所在地 |
駅徒歩 |
賃料 管理費等 |
敷金/保証金 礼金 |
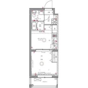
間取り 面積 |
物件種目 築年月 |
|
京成押上線/八広
東京都墨田区東墨田2丁目
|
8分
|
9.4万円
15,000円
|
なし / なし
なし
|
1DK
25.28m²
|
賃貸マンション
2024年6月(築1年5ヶ月)
|
ペット相談、分譲タイプ、常時ゴミ出し可能、二人入居可、24時間セキュリティー、24時間換気システム、外観タイル張り
|
|
間取図
|
|
その他の画像
|
| 交通 | 京成押上線 八広駅 徒歩8分 |
|---|
| その他の交通 | 京成押上線 四ツ木駅 徒歩18分 京成押上線 京成曳舟駅 徒歩19分 |
| 所在地 |
東京都墨田区東墨田2丁目
|
| 物件種目 |
賃貸マンション |
| 賃料 |
9.4万円 |
管理費等 |
15,000円 |
| 敷金 / 保証金 |
なし / なし |
礼金 |
なし |
| 敷引 |
- |
保証金償却 |
- |
| その他一時金 |
なし、鍵交換代等:26,000円~ |
保険等 |
要 2年 20,000円 |
| 維持費等 |
- |
| 間取り |
1DK |
専有面積 |
25.28m² |
| 築年月 |
2024年6月(築1年5ヶ月)
|
階建 / 階 |
5階建 / 4階 |
| 建物構造 |
RC |
総戸数 |
- |
| 主要採光面 |
|
駐車場 |
- |
| バイク置き場 |
- |
駐輪場 |
有 |
| 建物名・部屋番号 |
|
ペット |
小型犬可・ 猫可・ 2匹まで |
| リフォーム履歴 |
- |
| リノベーション履歴 |
- |
| 備考 |
賃貸保証等:加入要(全保連60%)
管理形態/管理員の勤務形態:-/-
アクセス24 12,000円(税別・初回のみ)
共益費FRの別プランあり
|
| エネルギー消費性能 |
- |
| 断熱性能 |
- |
| 目安光熱費 |
- |
| バス・トイレ |
バス・トイレ別、浴室暖房、浴室乾燥機、洗面所独立、洗面所、洗面台、シャワー、温水洗浄便座、トイレ |
| キッチン |
システムキッチン、2口コンロ、ガスコンロ付 |
| セキュリティー |
モニター付オートロック、オートロック、モニター付インターホン、ディンプルキー、ダブルロックドア、防犯カメラ、火災警報器(報知機) |
| 収納 |
収納スペース、クローゼット、シューズボックス |
| 設備・サービス |
室内洗濯機置場、洗濯機置場、給湯、全居室フローリング、フローリング、都市ガス、エアコン、暖房、冷房 |
| TV・通信 |
インターネット対応、インターネット使用料無料 |
| その他 |
宅配BOX、バルコニー、駐輪場、エレベーター |
| 契約期間 |
2年 |
現況 |
空家 |
| 条件等 |
- |
入居可能時期 |
即時 |
| 仲介手数料 |
不要 |
|
|
| 更新料 |
新賃料 1ヶ月 |
物件番号 |
6986551661 |
| 情報公開日 |
2025年10月23日 |
次回更新予定日 |
2025年11月6日 |
| ケータイ用バーコード |
- スマートフォンでこの物件を見る
- スマートフォンからもこの物件をご覧になれます。
|
※「-」と表示されている項目については、情報提供会社にご確認ください。
| 周辺施設 |
ファミリーマート八広六丁目店 |
| 距離 |
427m |
| 周辺施設 |
セブンイレブン墨田八広4丁目店 |
| 距離 |
446m |
| 周辺施設 |
セブンイレブン墨田八広5丁目店 |
| 距離 |
608m |
| 周辺施設 |
ファミリーマート東墨田二丁目店 |
| 距離 |
650m |
| 周辺施設 |
ファミリーマート八広駅前店 |
| 距離 |
667m |
| 周辺施設 |
サイゼリヤ東向島駅前店 |
| 距離 |
1419m |
| 周辺施設 |
キッチンオリジン東向島駅前店 |
| 距離 |
1482m |
ここから簡単にお問い合わせをすることができます。
(SSLでの暗号化での送信を希望されるお客さまは
こちら
よりお問い合わせください)
お問い合わせを行う前に
「個人情報の取り扱いについて」を必ずお読みください。
「個人情報の取り扱いについて」に同意いただいた場合は「上記にご同意の上 確認画面へ進む」のボタンをクリックしてください。
個人情報の取り扱いについて
皆さまが送付された個人情報はアットホーム(株)のサーバを経由し、お問い合わせ先の不動産会社にメールまたはFAXにて転送されるためアットホーム(株)にも保管されます。アットホーム(株)で保管された個人情報の取り扱いについては、【こちら】をご覧ください。
また、本画面でご記入いただいた個人情報は、お問い合わせ先の不動産会社でも保管します。 お問い合わせ先の不動産会社が保管する個人情報の取り扱いについては、不動産会社に直接お問い合わせください。
東京都知事免許(3)第96200号 |
|---|
- 交通:
- JR総武線/新小岩駅 徒歩5分
- 東京都葛飾区新小岩2丁目40-12 雄治ビル2階
- TEL:
- 03-5879-5401
- FAX:
- 03-5879-5405
- 所属団体:
- (公社)東京都宅地建物取引業協会会員(一社)全国不動産協会会員
取引態様:貸主  - 00160423
|
- スマートフォンで
この不動産会社を見る

|
- 提携サイト等より掲載されている物件情報につきましては、不動産会社詳細情報にリンクされていないものがあります。
- 物件に関するお問合せは、物件詳細ページの「情報提供会社」に表示されている不動産会社へ直接お願いいたします。
- 間取図は、現況を優先させていただきます。
- 映像は物件の一部を撮影したものです。物件の契約にあたっての最終判断はご自身の判断に基づいて行ってください。
- 仲介手数料について

アットホームは物件情報の適正化に努めております。
内容に誤りがある場合にはこちらへご連絡ください。