福岡県福岡市東区香椎照葉3丁目(香椎花園前駅)の賃貸:物件詳細
交通 所在地 |
駅徒歩 |
賃料 管理費等 |
敷金/保証金 礼金 |
間取り 面積 |
物件種目 築年月 |
|
西鉄貝塚線/香椎花園前
福岡県福岡市東区香椎照葉3丁目
|
20分
|
14.5万円
10,000円
|
なし / なし
なし
|
3LDK
91.01m²
|
賃貸マンション
2008年2月(築17年11ヶ月)
|
ペット相談、24時間換気システム、閑静な住宅街、外観タイル張り、前面棟無、隣接建物距離2m以上
|
|
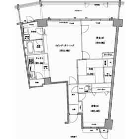
間取図
|
バルコニー
|
<
その他の画像
>
|
| 交通 | 西鉄貝塚線 香椎花園前駅 徒歩20分 |
|---|
| その他の交通 | 西鉄貝塚線 西鉄香椎駅 徒歩25分 JR鹿児島本線 香椎駅 徒歩28分 |
| 所在地 |
福岡県福岡市東区香椎照葉3丁目
|
| 物件種目 |
賃貸マンション |
| 賃料 |
14.5万円 |
管理費等 |
10,000円 |
| 敷金 / 保証金 |
なし / なし |
礼金 |
なし |
| 敷引 |
- |
保証金償却 |
- |
| その他一時金 |
鍵交換代等:33,000円~ |
保険等 |
要 |
| 維持費等 |
- |
クレジットカード決済 |
初期費用可 |
| 間取り |
3LDK(和 4.5 洋 9.6・7.3 LDK 19.8) |
専有面積 |
91.01m² |
| 築年月 |
2008年2月(築17年11ヶ月)
|
階建 / 階 |
16階建 / 6階 |
| 建物構造 |
RC |
総戸数 |
- |
| 主要採光面 |
南西 |
駐車場 |
有 13,200円/月 |
| バイク置き場 |
- |
駐輪場 |
有 |
| 建物名・部屋番号 |
|
ペット |
小型犬可・ 猫可・ 敷金1ヶ月2匹まで 中型犬OK |
| アピールポイント |
コスト感覚の鋭いお客様に嬉しいニュース!礼金敷金(保証金)0円。お探しの方には嬉しいペット(小型犬中型犬猫2匹まで)相談可。広々とした延床面積91.01㎡の居室空間、更にお隣同士プライバシーを心地よく保つ距離確保の隣接建物と2m以上離れた住戸なので、くっつき感がありません。また留守番いらずの宅配BOX付で、その上閑静な住宅街立地の物件だから、騒々しい街の喧噪から離れて生活できます。ちなみに匂いや煙をダイニングにまで充満させない独立型キッチンです。家族が帰宅を焦がれる3LDK。実際の空間をご自身で体感ください。 |
| リフォーム履歴 |
- |
| リノベーション履歴 |
2025年3月 エアコン1台設置(LDK)!2025年3月リノベ施工済!!キッチン、ノンタッチ水栓に変更!!洗面台も3面鏡に変更!!フローリングはフロアタイルを上貼り、和室襖はスライディングドアに、畳も半畳カラー畳に変更でイメージ一新!!バルコニーの長尺シートも貼替済み!! ※実施年月は最も古い履歴を表示 |
| 備考 |
管理形態/管理員の勤務形態:-/日勤
区画整理地内、管理人日勤
|
| エネルギー消費性能 |
- |
| 断熱性能 |
- |
| 目安光熱費 |
- |
| バス・トイレ |
バス・トイレ別、浴室乾燥機、追焚機能、シャワー付洗面化粧台、洗面所独立、シャワー、温水洗浄便座 |
| キッチン |
システムキッチン、独立型キッチン、食器洗浄乾燥機、浄水器、3口以上コンロ |
| セキュリティー |
モニター付オートロック、オートロック、ディンプルキー |
| 収納 |
全居室収納、収納スペース、クローゼット、シューズボックス |
| 設備・サービス |
室内洗濯機置場、都市ガス給湯、給湯、フローリング、都市ガス、エアコン |
| TV・通信 |
インターネット対応、ケーブルTV |
| その他 |
宅配BOX、敷地内AED有、エレベーター2基以上、来客用駐車場、車寄せスペース、バルコニー、駐輪場、エレベーター |
| 契約期間 |
2年 |
現況 |
空家 |
| 条件等 |
- |
入居可能時期 |
即時 |
| 仲介手数料 |
不要 |
|
|
| 更新料 |
- |
物件番号 |
6986596616 |
| 情報公開日 |
2025年12月18日 |
次回更新予定日 |
2026年1月1日 |
| ケータイ用バーコード |
- スマートフォンでこの物件を見る
- スマートフォンからもこの物件をご覧になれます。
|
※「-」と表示されている項目については、情報提供会社にご確認ください。
| 周辺施設 |
ローソン福岡アイランドシティ店 |
| 距離 |
41m |
写真を見る |
| 周辺施設 |
福岡市立照葉中学校 |
| 距離 |
890m |
写真を見る |
| 周辺施設 |
福岡市立照葉小学校 |
| 距離 |
914m |
写真を見る |
| 周辺施設 |
香椎照葉幼稚園 |
| 距離 |
831m |
写真を見る |
| 周辺施設 |
アイランドシティ中央公園 |
| 距離 |
749m |
写真を見る |
| 周辺施設 |
照葉スパリゾート |
| 距離 |
1133m |
写真を見る |
| 周辺施設 |
TERIHA SEKISUI HOUSE ARENA |
| 距離 |
1397m |
写真を見る |
| 周辺施設 |
アイランドアイ |
| 距離 |
950m |
写真を見る |
ここから簡単にお問い合わせをすることができます。
(SSLでの暗号化での送信を希望されるお客さまは
こちら
よりお問い合わせください)
お問い合わせを行う前に
「個人情報の取り扱いについて」を必ずお読みください。
「個人情報の取り扱いについて」に同意いただいた場合は「上記にご同意の上 確認画面へ進む」のボタンをクリックしてください。
個人情報の取り扱いについて
皆さまが送付された個人情報はアットホーム(株)のサーバを経由し、お問い合わせ先の不動産会社にメールまたはFAXにて転送されるためアットホーム(株)にも保管されます。アットホーム(株)で保管された個人情報の取り扱いについては、【こちら】をご覧ください。
また、本画面でご記入いただいた個人情報は、お問い合わせ先の不動産会社でも保管します。 お問い合わせ先の不動産会社が保管する個人情報の取り扱いについては、不動産会社に直接お問い合わせください。
福岡県知事免許(3)第17017号 |
|---|
- 交通:
- 地下鉄空港線/赤坂駅 徒歩6分
- 福岡県福岡市中央区大名1丁目4-20 RACT2F
- TEL:
- 092-717-8989
- FAX:
- 092-717-8988
- 所属団体:
- (公社)福岡県宅地建物取引業協会会員(一社)九州不動産公正取引協議会加盟
取引態様:仲介  - 80004976
|
- スマートフォンで
この不動産会社を見る

|
- 提携サイト等より掲載されている物件情報につきましては、不動産会社詳細情報にリンクされていないものがあります。
- 物件に関するお問合せは、物件詳細ページの「情報提供会社」に表示されている不動産会社へ直接お願いいたします。
- 間取図は、現況を優先させていただきます。
- 映像は物件の一部を撮影したものです。物件の契約にあたっての最終判断はご自身の判断に基づいて行ってください。
- 仲介手数料について

アットホームは物件情報の適正化に努めております。
内容に誤りがある場合にはこちらへご連絡ください。