不動産 賃貸 マンション等の住宅情報:埼玉住まい情報


長崎県長崎市万才町(五島町駅)の賃貸:物件詳細

  • 物件詳細
  • 情報の見方
  • 印刷用画面
交通
所在地
駅徒歩 賃料
管理費等
敷金/保証金
礼金
間取り
面積
物件種目
築年月

長崎電軌本線/五島町
[バス利用可] バス 万才町バス停2分 停歩2分

長崎県長崎市万才町

6分

16万円

なし

3ヶ月 / なし

なし

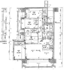
4LDK

92.65m²

賃貸マンション

2015年7月(築10年6ヶ月)

おすすめPOINT分譲タイプ、角部屋、法人契約希望、24時間セキュリティー、2面採光、管理人常駐

おすすめコメント

バス停まで徒歩わずか2分と、通勤・通学に便利な立地!人気の浜町商店街・築町商店街が生活圏内にあり、毎日の買い物も楽しめます♪利便性と住みやすさを兼ね備えた、おすすめの一軒です!

間取図

間取図

外観

外観

<
その他の画像
  • 玄関
  • 収納
  • 玄関
  • 室内
  • 室内
  • 玄関
  • 収納
  • 収納
  • トイレ
  • 洗面
  • リビング
  • 洗面
  • 共有部分
  • エントランス
  • 洗面
  • 収納
  • 収納
  • 洗面
  • 収納
  • 設備
  • バス/シャワー
  • バス/シャワー
  • バス/シャワー
  • バス/シャワー
  • 室内
  • リビング
  • リビング
  • リビング
  • キッチン
  • キッチン
  • リビング
  • 室内
  • 室内
  • 収納
  • バルコニー
  • バルコニー
  • バルコニー
  • 共有部分
>
    • とりあえず保存
    • お問い合わせ
    交通

    長崎電軌本線 五島町駅 徒歩6分
    [バス利用可] バス 万才町バス停2分 停歩2分

    所在地 長崎県長崎市万才町
    物件種目 賃貸マンション
    賃料 16万円 管理費等 なし
    敷金 / 保証金 3ヶ月 / なし 礼金 なし
    敷引 保証金償却
    その他一時金 保険等
    維持費等
    間取り 4LDK(和 5.1 洋 6.1・6.1・5.5 LDK 14.4) 専有面積 92.65m²
    築年月 2015年7月(築10年6ヶ月) 階建 / 階 14階建 / 6階
    建物構造 SRC 総戸数
    主要採光面 南東 駐車場 近有 26,000円/月
    バイク置き場 駐輪場
    建物名・部屋番号 MJR万才町 602 ペット
    リフォーム履歴
    リノベーション履歴
    備考
    賃貸保証等:加入要(初回プラン、賃料50%+保証人1名)
    管理形態/管理員の勤務形態:-/常駐
    バルコニー:18.39m²
    非喫煙者限定、外壁コンクリート
    エネルギー消費性能
    断熱性能
    目安光熱費
    バス・トイレ バス・トイレ別、洗面所独立、シャワー、温水洗浄便座
    キッチン カウンターキッチン、独立型キッチン、食器洗浄乾燥機、浄水器、3口以上コンロ、グリル
    セキュリティー オートロック、モニター付インターホン、防犯カメラ、火災警報器(報知機)
    収納 全居室収納、ウォークインクローゼット、収納スペース、シューズインクローゼット、クローゼット、シューズボックス
    設備・サービス エアコン2台以上、室内洗濯機置場、都市ガス給湯、フローリング、家具付き、間接照明、照明器具、複層ガラス
    TV・通信 インターネット対応
    その他 宅配BOX、ワイドバルコニー、二面バルコニー、エレベーター
    契約期間 2年 現況 空家
    条件等 入居可能時期 即時
    更新料 なし 物件番号 6986701674
    情報公開日 2025年6月17日 次回更新予定日 2025年12月31日
    ケータイ用バーコード

    QRコード

    スマートフォンでこの物件を見る
    スマートフォンからもこの物件をご覧になれます。
    ※「-」と表示されている項目については、情報提供会社にご確認ください。

    この物件の周辺情報

    周辺施設 セブンイレブン長崎万才町店
    距離 57m
    周辺施設 長崎市立図書館
    距離 254m
    周辺施設 築町パーキングビル
    距離 293m
    周辺施設 ざぼんちゃん浜町認定こども園
    距離 349m
    周辺施設 私立長崎女子商業高校
    距離 414m
    周辺施設 中島川公園
    距離 558m
    周辺施設 長崎市立梅香崎中学校
    距離 1195m
    周辺施設 私立海星高校
    距離 1346m

    クイックお問い合わせ

    ここから簡単にお問い合わせをすることができます。
    (SSLでの暗号化での送信を希望されるお客さまは こちら よりお問い合わせください)

    お問い合わせ内容(必須)
    お名前(必須) 姓  名 
    メールアドレス(必須)
    ※携帯電話のメールアドレスをご入力される方はこちらをご確認ください
    電話番号(必須)
    - -

    ※入力いただいた電話番号へSMSまたは音声でパスワードをご連絡します。

    携帯電話の番号をご入力の方へ

    携帯電話の番号をご入力の方へ
    確認画面にて送信ボタンをクリックするとSMSが携帯電話に届きます。
    そのSMSに記載のパスワード(認証番号)を入力し、お問い合わせを完了してください。
    尚、SMSの送信者番号は 0005 202 760 となります。
    これはアットホームの固定番号です。

    備考欄 希望条件、物件案内希望日、質問などがございましたらご記入ください。
    お問い合わせを行う前に「個人情報の取り扱いについて」を必ずお読みください。
    「個人情報の取り扱いについて」に同意いただいた場合は「上記にご同意の上 確認画面へ進む」のボタンをクリックしてください。

    個人情報の取り扱いについて

    皆さまが送付された個人情報はアットホーム(株)のサーバを経由し、お問い合わせ先の不動産会社にメールまたはFAXにて転送されるためアットホーム(株)にも保管されます。アットホーム(株)で保管された個人情報の取り扱いについては、【こちら】をご覧ください。
    また、本画面でご記入いただいた個人情報は、お問い合わせ先の不動産会社でも保管します。 お問い合わせ先の不動産会社が保管する個人情報の取り扱いについては、不動産会社に直接お問い合わせください。

    情報提供会社

    情報提供会社

    寺田不動産(有)

    長崎県知事免許(16)第248号

    交通:
    長崎電軌蛍茶屋支線/市役所駅 徒歩1分
    長崎県長崎市桶屋町50 寺田ビル
    TEL:
    095-824-0098
    FAX:
    095-820-1922
    所属団体:
    (公社)長崎県宅地建物取引業協会会員
    (一社)九州不動産公正取引協議会加盟

    取引態様:仲介

    • 会社情報
    • 80800093
    スマートフォンで
    この不動産会社を見る
    QRコード
    • とりあえず保存
    • お問い合わせ
    • 提携サイト等より掲載されている物件情報につきましては、不動産会社詳細情報にリンクされていないものがあります。
    • 物件に関するお問合せは、物件詳細ページの「情報提供会社」に表示されている不動産会社へ直接お願いいたします。
    • 間取図は、現況を優先させていただきます。
    • 映像は物件の一部を撮影したものです。物件の契約にあたっての最終判断はご自身の判断に基づいて行ってください。
    • 仲介手数料について仲介手数料

    アットホームは物件情報の適正化に努めております。 内容に誤りがある場合にはこちらへご連絡ください。

    【埼玉住まい情報】では、日本全国の物件から賃貸マンションや賃貸アパート・賃貸一戸建て等の賃貸住宅情報、新築マンション・分譲マンションや中古マンション等の売買マンション情報、新築一戸建てや中古一戸建てなどの戸建住宅、 土地など、総合的な不動産住宅情報検索サービスを提供致します。
    【埼玉住まい情報】から、選りすぐりの不動産物件を探してみましょう。

    【免責事項】
    このコーナーの運営はアットホーム株式会社(https://www.athome.co.jp/)が行っています。
    このコーナーに掲載している物件情報は、「アットホーム不動産情報ネットワーク」に加盟する不動産会社等(情報提供元)から提供されています。信頼性の高い情報提供が行えるよう、最大限の努力をしておりますが、その内容を保証するものではありません。 利用者のみなさまと各情報提供元との取引に起因する損害および情報が掲載されたことに起因する損害等については、株式会社イーシティ埼玉、およびアットホームは一切責任を負いません。
    各物件情報の内容や画像等はすべて現況を優先させていただきます。
    お取引等(お取引の準備、資金調達等を含みます)の際には、内容や契約条件等について、各情報提供元より十分な説明を受け、ご自身でご確認の上、判断してください。
    このコーナーへの物件情報のご掲載、その他不動産業務ソリューション等についての不動産会社様のお問合せはこちらからお願いいたします。

    物件画像: