新潟県新潟市中央区川岸町3丁目(白山駅)の賃貸:物件詳細
交通 所在地 |
駅徒歩 |
賃料 管理費等 |
敷金/保証金 礼金 |
間取り 面積 |
物件種目 築年月 |
JR越後線/白山
新潟県新潟市中央区川岸町3丁目
|
12分
|
3.3万円
なし
|
1ヶ月 / なし
なし
|
ワンルーム
24.18m²
|
賃貸マンション
1990年4月(築35年7ヶ月)
|
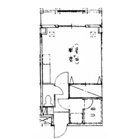
間取図
|
外観
|
その他の画像
|
交通 | JR越後線 白山駅 徒歩12分 |
---|
その他の交通 | JR越後線 関屋駅 徒歩15分 |
所在地 |
新潟県新潟市中央区川岸町3丁目
|
物件種目 |
賃貸マンション |
賃料 |
3.3万円 |
管理費等 |
なし |
敷金 / 保証金 |
1ヶ月 / なし |
礼金 |
なし |
敷引 |
- |
保証金償却 |
- |
その他一時金 |
- |
保険等 |
要 2年 18,000円 宅建ファミリー共済 |
維持費等 |
町内会費:250円/月 |
間取り |
ワンルーム |
専有面積 |
24.18m² |
築年月 |
1990年4月(築35年7ヶ月)
|
階建 / 階 |
4階建 / 2階 |
建物構造 |
鉄骨造 |
総戸数 |
22戸 |
主要採光面 |
東 |
駐車場 |
近有 7,000円/月 |
バイク置き場 |
有 無料 |
駐輪場 |
有 無料 |
建物名・部屋番号 |
イズミサンリバー川岸 202 |
ペット |
-
|
アピールポイント |
新潟市中央区川岸町に位置する《イズミサンリバー川岸202号室》は、JR越後線「関屋」駅徒歩15分の好立地。
24.18㎡のワンルームは、単身者限定で快適な暮らしをサポートします。
室内洗濯機置場、温水洗浄便座、エアコン、モニター付きインターホンなど設備充実。
インターネット使用料無料で在宅ワークにも最適です。宅配BOX完備で不在時も安心。
周辺にはスーパーやコンビニ、飲食店、病院など生活利便施設が多数。
敷金1ヶ月・礼金なしで初期費用も抑えられます。
DIY不可ですが、社宅利用可・保証人要。
駐車場(近隣7,000円/月)、駐輪場・バイク置場無料。
東向きの採光で明るい室内。
さらに、関屋駅から新潟大学前駅までは電車で約11分とアクセス良好。
新潟大学への通学にも便利な立地です。
2026年春の入居も受付中。
お気軽にご相談ください。 |
リフォーム履歴 |
- |
リノベーション履歴 |
- |
備考 |
管理形態/管理員の勤務形態:-/巡回
単身者限定、非喫煙者限定、管理人巡回
|
エネルギー消費性能 |
- |
断熱性能 |
- |
目安光熱費 |
- |
バス・トイレ |
バス・トイレ別、洗面台、シャワー、温水洗浄便座、トイレ |
キッチン |
ガスコンロ可 |
セキュリティー |
モニター付インターホン、火災警報器(報知機) |
収納 |
シューズボックス |
設備・サービス |
室内洗濯機置場、フローリング、都市ガス、エアコン、照明器具 |
TV・通信 |
インターネット使用料無料 |
その他 |
宅配BOX、バイク置き場、駐輪場、内廊下 |
契約期間 |
2年 |
現況 |
空家 |
条件等 |
- |
入居可能時期 |
相談 |
仲介手数料 |
1.1ヶ月 |
|
|
更新料 |
なし |
物件番号 |
6986782058 |
情報公開日 |
2025年6月24日 |
次回更新予定日 |
2025年10月31日 |
ケータイ用バーコード |
- スマートフォンでこの物件を見る
- スマートフォンからもこの物件をご覧になれます。
|
※「-」と表示されている項目については、情報提供会社にご確認ください。
周辺施設 |
清水フードセンター関屋店 |
距離 |
596m |
周辺施設 |
セブンイレブン新潟川岸町3丁目店 |
距離 |
364m |
周辺施設 |
ファミリーマート新潟関新店 |
距離 |
303m |
周辺施設 |
ガスト新潟関屋店(から好し取扱店) |
距離 |
568m |
周辺施設 |
ウエルシア新潟関新1丁目店 |
距離 |
427m |
ここから簡単にお問い合わせをすることができます。
(SSLでの暗号化での送信を希望されるお客さまは
こちら
よりお問い合わせください)
お問い合わせを行う前に
「個人情報の取り扱いについて」を必ずお読みください。
「個人情報の取り扱いについて」に同意いただいた場合は「上記にご同意の上 確認画面へ進む」のボタンをクリックしてください。
個人情報の取り扱いについて
皆さまが送付された個人情報はアットホーム(株)のサーバを経由し、お問い合わせ先の不動産会社にメールまたはFAXにて転送されるためアットホーム(株)にも保管されます。アットホーム(株)で保管された個人情報の取り扱いについては、【こちら】をご覧ください。
また、本画面でご記入いただいた個人情報は、お問い合わせ先の不動産会社でも保管します。 お問い合わせ先の不動産会社が保管する個人情報の取り扱いについては、不動産会社に直接お問い合わせください。
新潟県知事免許(8)第3542号 |
---|
- 交通:
- JR白新線/大形駅 徒歩30分 【バス】 大形本町三丁目 停歩3分
- 新潟県新潟市東区豊2丁目6-52
- TEL:
- 025-201-6166
- FAX:
- 025-201-6166
- 所属団体:
- (公社)新潟県宅地建物取引業協会会員(公社)首都圏不動産公正取引協議会加盟
取引態様:仲介  - 00281610
|
- スマートフォンで
この不動産会社を見る

|
- 提携サイト等より掲載されている物件情報につきましては、不動産会社詳細情報にリンクされていないものがあります。
- 物件に関するお問合せは、物件詳細ページの「情報提供会社」に表示されている不動産会社へ直接お願いいたします。
- 間取図は、現況を優先させていただきます。
- 映像は物件の一部を撮影したものです。物件の契約にあたっての最終判断はご自身の判断に基づいて行ってください。
- 仲介手数料について

アットホームは物件情報の適正化に努めております。
内容に誤りがある場合にはこちらへご連絡ください。