神奈川県横浜市港北区篠原北1丁目(菊名駅)の賃貸:物件詳細
交通 所在地 |
駅徒歩 |
賃料 管理費等 |
敷金/保証金 礼金 |
間取り 面積 |
物件種目 築年月 |
|
東急東横線/菊名
神奈川県横浜市港北区篠原北1丁目
|
7分
|
6.5万円
-
|
1ヶ月 / なし
なし
|
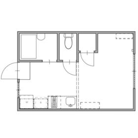
1K
20.00m²
|
賃貸アパート
1991年4月(築34年9ヶ月)
|
デザイナーズ
|
|
間取図
|
外観
|
<
その他の画像
>
|
| 交通 | 東急東横線 菊名駅 徒歩7分 |
|---|
| その他の交通 | 東海道新幹線 新横浜駅 徒歩15分 東急東横線 妙蓮寺駅 徒歩18分 |
| 所在地 |
神奈川県横浜市港北区篠原北1丁目
|
| 物件種目 |
賃貸アパート |
| 賃料 |
6.5万円 |
管理費等 |
- |
| 敷金 / 保証金 |
1ヶ月 / なし |
礼金 |
なし |
| 敷引 |
- |
保証金償却 |
- |
| その他一時金 |
24時間サポート:16,500円、契約事務手数料:2,200円、鍵交換代等:20,000円~ |
保険等 |
要 2年 19,000円 |
| 維持費等 |
- |
| 間取り |
1K |
専有面積 |
20.00m² |
| 築年月 |
1991年4月(築34年9ヶ月)
|
階建 / 階 |
2階建 / 1階 |
| 建物構造 |
軽量鉄骨造 |
総戸数 |
14戸 |
| 主要採光面 |
|
駐車場 |
- |
| バイク置き場 |
無 |
駐輪場 |
有 無料 |
| 建物名・部屋番号 |
アミカル篠原 (AMICAL SHINOHARA) 101 |
ペット |
-
|
| アピールポイント |
★仲介手数料が賃料の0.55ヶ月分になります★初期費用がお得になるチャンス!気軽にご相談くださいませ! |
| リフォーム履歴 |
■水回り:2021年5月 キッチン、浴室 ■内装:2025年7月 内装全面(床・壁・天井・建具) ※実施年月は最も古い履歴を表示 |
| リノベーション履歴 |
- |
| 備考 |
賃貸保証等:加入要(初回賃料の100%+引落手数料,、以降年13,000円)
管理形態/管理員の勤務形態:-/-
単身者限定
バイク(原付迄)
|
| エネルギー消費性能 |
- |
| 断熱性能 |
- |
| 目安光熱費 |
- |
| バス・トイレ |
バス・トイレ別、シャワールーム |
| キッチン |
2口コンロ、ガスコンロ付 |
| セキュリティー |
- |
| 収納 |
全居室収納、収納スペース、シューズボックス |
| 設備・サービス |
室内洗濯機置場、全居室フローリング、フローリング、プロパンガス、エアコン |
| TV・通信 |
- |
| その他 |
バルコニー、駐輪場 |
| 契約期間 |
2年 |
現況 |
空家 |
| 条件等 |
- |
入居可能時期 |
即時 |
| 仲介手数料 |
0.55ヶ月 |
|
|
| 更新料 |
新賃料 1.1ヶ月 |
物件番号 |
6986833644 |
| 情報公開日 |
2025年6月29日 |
次回更新予定日 |
2025年12月26日 |
| ケータイ用バーコード |
- スマートフォンでこの物件を見る
- スマートフォンからもこの物件をご覧になれます。
|
※「-」と表示されている項目については、情報提供会社にご確認ください。
| 周辺施設 |
ローソン港北篠原町表谷店 |
| 距離 |
358m |
ここから簡単にお問い合わせをすることができます。
(SSLでの暗号化での送信を希望されるお客さまは
こちら
よりお問い合わせください)
お問い合わせを行う前に
「個人情報の取り扱いについて」を必ずお読みください。
「個人情報の取り扱いについて」に同意いただいた場合は「上記にご同意の上 確認画面へ進む」のボタンをクリックしてください。
個人情報の取り扱いについて
皆さまが送付された個人情報はアットホーム(株)のサーバを経由し、お問い合わせ先の不動産会社にメールまたはFAXにて転送されるためアットホーム(株)にも保管されます。アットホーム(株)で保管された個人情報の取り扱いについては、【こちら】をご覧ください。
また、本画面でご記入いただいた個人情報は、お問い合わせ先の不動産会社でも保管します。 お問い合わせ先の不動産会社が保管する個人情報の取り扱いについては、不動産会社に直接お問い合わせください。
神奈川県知事免許(7)第20501号 |
|---|
- 交通:
- 東急東横線/菊名駅 徒歩2分
- 神奈川県横浜市港北区篠原北1丁目1-12
- TEL:
- 045-434-4747
- FAX:
- 045-434-1315
- 所属団体:
- (公社)神奈川県宅地建物取引業協会会員(公社)首都圏不動産公正取引協議会加盟
取引態様:仲介  - 00910365
|
- スマートフォンで
この不動産会社を見る

|
- 提携サイト等より掲載されている物件情報につきましては、不動産会社詳細情報にリンクされていないものがあります。
- 物件に関するお問合せは、物件詳細ページの「情報提供会社」に表示されている不動産会社へ直接お願いいたします。
- 間取図は、現況を優先させていただきます。
- 映像は物件の一部を撮影したものです。物件の契約にあたっての最終判断はご自身の判断に基づいて行ってください。
- 仲介手数料について

アットホームは物件情報の適正化に努めております。
内容に誤りがある場合にはこちらへご連絡ください。