広島県広島市中区上八丁堀(縮景園前駅)の賃貸:物件詳細
交通 所在地 |
駅徒歩 |
賃料 管理費等 |
敷金/保証金 礼金 |
間取り 面積 |
物件種目 築年月 |
|
広島電鉄白島線/縮景園前
広島県広島市中区上八丁堀
|
3分
|
14.5万円
-
|
3ヶ月 / なし
1ヶ月
|
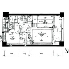
2LDK
61.43m²
|
賃貸マンション
2004年11月(築21年)
|
分譲タイプ
|
| 交通 | 広島電鉄白島線 縮景園前駅 徒歩3分 |
|---|
| その他の交通 | 広島電鉄白島線 家庭裁判所前駅 徒歩3分 広島電鉄白島線 女学院前駅 徒歩6分 |
| 所在地 |
広島県広島市中区上八丁堀
|
| 物件種目 |
賃貸マンション |
| 賃料 |
14.5万円 |
管理費等 |
- |
| 敷金 / 保証金 |
3ヶ月 / なし |
礼金 |
1ヶ月 |
| 敷引 |
- |
保証金償却 |
- |
| その他一時金 |
- |
保険等 |
要 |
| 維持費等 |
- |
| 間取り |
2LDK(和 6.2 洋 5.5 LDK 15.1) |
専有面積 |
61.43m² |
| 築年月 |
2004年11月(築21年)
|
階建 / 階 |
15階建 / 3階 |
| 建物構造 |
RC |
総戸数 |
- |
| 主要採光面 |
|
駐車場 |
- |
| バイク置き場 |
- |
駐輪場 |
- |
| 建物名・部屋番号 |
パークハウス縮景園 |
ペット |
-
|
| リフォーム履歴 |
- |
| リノベーション履歴 |
- |
| 備考 |
賃貸保証等:加入要(全保連)
管理形態/管理員の勤務形態:-/-
|
| エネルギー消費性能 |
- |
| 断熱性能 |
- |
| 目安光熱費 |
- |
| バス・トイレ |
バス・トイレ別、追焚機能 |
| キッチン |
システムキッチン |
| セキュリティー |
オートロック |
| 収納 |
収納スペース |
| 設備・サービス |
室内洗濯機置場、エアコン |
| TV・通信 |
光ファイバー、BS端子 |
| その他 |
宅配BOX、エレベーター2基以上 |
| 契約期間 |
2年 |
現況 |
空家 |
| 条件等 |
- |
入居可能時期 |
相談 |
| 仲介手数料 |
1ヶ月 |
|
|
| 更新料 |
22,000円 |
物件番号 |
6986878892 |
| 情報公開日 |
2025年7月4日 |
次回更新予定日 |
2025年11月7日 |
| ケータイ用バーコード |
- スマートフォンでこの物件を見る
- スマートフォンからもこの物件をご覧になれます。
|
※「-」と表示されている項目については、情報提供会社にご確認ください。
| 周辺施設 |
おかず工房グランドタワー店 |
| 距離 |
204m |
| 周辺施設 |
セブンイレブン広島上八丁堀店 |
| 距離 |
240m |
ここから簡単にお問い合わせをすることができます。
(SSLでの暗号化での送信を希望されるお客さまは
こちら
よりお問い合わせください)
お問い合わせを行う前に
「個人情報の取り扱いについて」を必ずお読みください。
「個人情報の取り扱いについて」に同意いただいた場合は「上記にご同意の上 確認画面へ進む」のボタンをクリックしてください。
個人情報の取り扱いについて
皆さまが送付された個人情報はアットホーム(株)のサーバを経由し、お問い合わせ先の不動産会社にメールまたはFAXにて転送されるためアットホーム(株)にも保管されます。アットホーム(株)で保管された個人情報の取り扱いについては、【こちら】をご覧ください。
また、本画面でご記入いただいた個人情報は、お問い合わせ先の不動産会社でも保管します。 お問い合わせ先の不動産会社が保管する個人情報の取り扱いについては、不動産会社に直接お問い合わせください。
広島県知事免許(14)第2590号 |
|---|
- 交通:
- 広島電鉄本線/銀山町駅 徒歩3分
- 広島県広島市中区幟町11-4
- TEL:
- 082-228-0626
- FAX:
- 082-211-0106
- 所属団体:
- (公社)広島県宅地建物取引業協会会員中国地区不動産公正取引協議会加盟
取引態様:仲介  - 50017719
|
- スマートフォンで
この不動産会社を見る

|
- 提携サイト等より掲載されている物件情報につきましては、不動産会社詳細情報にリンクされていないものがあります。
- 物件に関するお問合せは、物件詳細ページの「情報提供会社」に表示されている不動産会社へ直接お願いいたします。
- 間取図は、現況を優先させていただきます。
- 映像は物件の一部を撮影したものです。物件の契約にあたっての最終判断はご自身の判断に基づいて行ってください。
- 仲介手数料について

アットホームは物件情報の適正化に努めております。
内容に誤りがある場合にはこちらへご連絡ください。