栃木県栃木市城内町2丁目(栃木駅)の賃貸:物件詳細
交通 所在地 |
駅徒歩 |
賃料 管理費等 |
敷金/保証金 礼金 |
間取り 面積 |
物件種目 築年月 |
東武日光線/栃木
栃木県栃木市城内町2丁目
|
22分
|
4.5万円
1,000円
|
なし / なし
1ヶ月
|
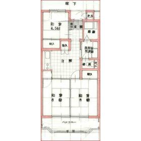
3DK
56.00m²
|
賃貸マンション
1985年3月(築40年8ヶ月)
|
DIY可、楽器相談、フリーレント、最上階、南向き、2面採光、前面棟無、隣接建物距離2m以上、保証人不要
|
間取図
|
外観
|
<
その他の画像
>
|
交通 | 東武日光線 栃木駅 徒歩22分 |
---|
その他の交通 | JR両毛線 栃木駅 徒歩21分 東武日光線 新栃木駅 徒歩31分 |
所在地 |
栃木県栃木市城内町2丁目
|
物件種目 |
賃貸マンション |
賃料 |
4.5万円 |
管理費等 |
1,000円 |
敷金 / 保証金 |
なし / なし |
礼金 |
1ヶ月 |
敷引 |
- |
保証金償却 |
- |
その他一時金 |
なし |
保険等 |
要 |
維持費等 |
- |
クレジットカード決済 |
賃料可 |
間取り |
3DK(和 6・6 洋 4.5) |
専有面積 |
56.00m² |
築年月 |
1985年3月(築40年8ヶ月)
|
階建 / 階 |
3階建 / 3階 |
建物構造 |
RC |
総戸数 |
12戸 |
主要採光面 |
南 |
駐車場 |
有 無料 |
バイク置き場 |
有 |
駐輪場 |
有 |
建物名・部屋番号 |
ポリス |
ペット |
-
|
アピールポイント |
新品エアコン2台付き。新品温水便座付き。各部屋収納、屋外にも個別の物置があるので収納たっぷりです。トランクルームを借りずに済むからとっても経済的。畳は無料でフローリング風に変更可能です。日当たり良好。駐車場1台無料。 |
リフォーム履歴 |
■水回り:2024年12月 浴室、洗面所 ■内装:2025年3月 床(フローリング等)、建具(室内ドア等) ■外装:2024年11月 外壁、屋根 ※実施年月は最も古い履歴を表示 |
リノベーション履歴 |
- |
備考 |
賃貸保証等:加入要(一か月分)
管理形態/管理員の勤務形態:-/-
バルコニー:6.7m²
フリーレント:0.5ヶ月
外壁コンクリート
|
エネルギー消費性能 |
- |
断熱性能 |
- |
目安光熱費 |
- |
バス・トイレ |
バス・トイレ別、洗面台、シャワー、温水洗浄便座、トイレ |
キッチン |
ガスコンロ可 |
セキュリティー |
- |
収納 |
全居室収納、収納スペース、トランクルーム、シューズボックス |
設備・サービス |
エアコン2台以上、プロパンガス給湯、プロパンガス、エアコン、暖房、冷房 |
TV・通信 |
ケーブルTV |
その他 |
バイク置き場、バルコニー、駐輪場 |
契約期間 |
2年 |
現況 |
空家 |
条件等 |
- |
入居可能時期 |
即時 |
更新料 |
- |
物件番号 |
6986905521 |
情報公開日 |
2025年8月26日 |
次回更新予定日 |
2025年10月24日 |
ケータイ用バーコード |
- スマートフォンでこの物件を見る
- スマートフォンからもこの物件をご覧になれます。
|
※「-」と表示されている項目については、情報提供会社にご確認ください。
周辺施設 |
ファミリーマート栃木城内町店 |
距離 |
343m |
周辺施設 |
セブンイレブン栃木城内町2丁目店 |
距離 |
741m |
周辺施設 |
タリーズコーヒー栃木城内店 |
距離 |
435m |
周辺施設 |
TSUTAYA栃木城内店 |
距離 |
435m |
ここから簡単にお問い合わせをすることができます。
(SSLでの暗号化での送信を希望されるお客さまは
こちら
よりお問い合わせください)
お問い合わせを行う前に
「個人情報の取り扱いについて」を必ずお読みください。
「個人情報の取り扱いについて」に同意いただいた場合は「上記にご同意の上 確認画面へ進む」のボタンをクリックしてください。
個人情報の取り扱いについて
皆さまが送付された個人情報はアットホーム(株)のサーバを経由し、お問い合わせ先の不動産会社にメールまたはFAXにて転送されるためアットホーム(株)にも保管されます。アットホーム(株)で保管された個人情報の取り扱いについては、【こちら】をご覧ください。
また、本画面でご記入いただいた個人情報は、お問い合わせ先の不動産会社でも保管します。 お問い合わせ先の不動産会社が保管する個人情報の取り扱いについては、不動産会社に直接お問い合わせください。
栃木県知事免許(1)第5364号 |
---|
- 交通:
- JR両毛線/栃木駅
- 栃木県栃木市大平町横堀256
- TEL:
- 0282-20-1181
- 所属団体:
- (公社)栃木県宅地建物取引業協会会員(公社)首都圏不動産公正取引協議会加盟
取引態様:貸主  - 00274508
|
- スマートフォンで
この不動産会社を見る

|
- 提携サイト等より掲載されている物件情報につきましては、不動産会社詳細情報にリンクされていないものがあります。
- 物件に関するお問合せは、物件詳細ページの「情報提供会社」に表示されている不動産会社へ直接お願いいたします。
- 間取図は、現況を優先させていただきます。
- 映像は物件の一部を撮影したものです。物件の契約にあたっての最終判断はご自身の判断に基づいて行ってください。
- 仲介手数料について

アットホームは物件情報の適正化に努めております。
内容に誤りがある場合にはこちらへご連絡ください。