兵庫県姫路市東延末3丁目(姫路駅)の賃貸:物件詳細
交通 所在地 |
駅徒歩 |
賃料 管理費等 |
敷金/保証金 礼金 |
間取り 面積 |
物件種目 築年月 |
|
JR山陽本線/姫路
兵庫県姫路市東延末3丁目
|
11分
|
5.8万円
-
|
1ヶ月 / なし
2ヶ月
|
1DK
45.22m²
|
賃貸マンション
1985年8月(築40年3ヶ月)
|
角部屋、2面採光
|
|
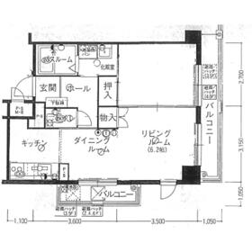
間取図
|
|
その他の画像
|
| 交通 | JR山陽本線 姫路駅 徒歩11分 |
| 所在地 |
兵庫県姫路市東延末3丁目
|
| 物件種目 |
賃貸マンション |
| 賃料 |
5.8万円 |
管理費等 |
- |
| 敷金 / 保証金 |
1ヶ月 / なし |
礼金 |
2ヶ月 |
| 敷引 |
- |
保証金償却 |
- |
| その他一時金 |
退去時ルームクリーニング費用:35,000円 |
保険等 |
要 火災保険 |
| 維持費等 |
- |
| 間取り |
1DK(洋 6 DK 6.2) |
専有面積 |
45.22m² |
| 築年月 |
1985年8月(築40年3ヶ月)
|
階建 / 階 |
9階建 / 2階 |
| 建物構造 |
RC |
総戸数 |
- |
| 主要採光面 |
|
駐車場 |
- |
| バイク置き場 |
- |
駐輪場 |
- |
| 建物名・部屋番号 |
クリーンピア南大路時計台 204 |
ペット |
-
|
| リフォーム履歴 |
- |
| リノベーション履歴 |
- |
| 備考 |
賃貸保証等:加入要(株式会社 エントランス(50%))
管理形態/管理員の勤務形態:-/-
|
| エネルギー消費性能 |
- |
| 断熱性能 |
- |
| 目安光熱費 |
- |
| バス・トイレ |
バス・トイレ別、洗面所、シャワー、トイレ |
| キッチン |
食器洗浄乾燥機、IHクッキングヒーター |
| セキュリティー |
オートロック |
| 収納 |
収納スペース、シューズボックス |
| 設備・サービス |
室内洗濯機置場、給湯、都市ガス、エアコン |
| TV・通信 |
- |
| その他 |
二面バルコニー、エレベーター |
| 契約期間 |
2年 |
現況 |
空家 |
| 条件等 |
- |
入居可能時期 |
相談 |
| 更新料 |
20,000円 |
物件番号 |
6986967708 |
| 情報公開日 |
2025年10月23日 |
次回更新予定日 |
2025年11月6日 |
| ケータイ用バーコード |
- スマートフォンでこの物件を見る
- スマートフォンからもこの物件をご覧になれます。
|
※「-」と表示されている項目については、情報提供会社にご確認ください。
| 周辺施設 |
マックスバリュエクスプレス北条店 |
| 距離 |
519m |
| 周辺施設 |
ローソン姫路東延末二丁目店 |
| 距離 |
215m |
| 周辺施設 |
セブンイレブン姫路安田4丁目店 |
| 距離 |
221m |
| 周辺施設 |
医療法人光寿会城陽江尻病院 |
| 距離 |
741m |
ここから簡単にお問い合わせをすることができます。
(SSLでの暗号化での送信を希望されるお客さまは
こちら
よりお問い合わせください)
お問い合わせを行う前に
「個人情報の取り扱いについて」を必ずお読みください。
「個人情報の取り扱いについて」に同意いただいた場合は「上記にご同意の上 確認画面へ進む」のボタンをクリックしてください。
個人情報の取り扱いについて
皆さまが送付された個人情報はアットホーム(株)のサーバを経由し、お問い合わせ先の不動産会社にメールまたはFAXにて転送されるためアットホーム(株)にも保管されます。アットホーム(株)で保管された個人情報の取り扱いについては、【こちら】をご覧ください。
また、本画面でご記入いただいた個人情報は、お問い合わせ先の不動産会社でも保管します。 お問い合わせ先の不動産会社が保管する個人情報の取り扱いについては、不動産会社に直接お問い合わせください。
兵庫県知事免許(10)第450474号 |
|---|
- 交通:
- JR山陽本線/姫路駅 徒歩12分
- 兵庫県姫路市栗山町126 イノウエビル3階A号室
- TEL:
- 079-285-1977
- FAX:
- 079-285-3610
- 所属団体:
- (一社)兵庫県宅地建物取引業協会会員(公社)近畿地区不動産公正取引協議会加盟
取引態様:代理  - 50015783
|
- スマートフォンで
この不動産会社を見る

|
- 提携サイト等より掲載されている物件情報につきましては、不動産会社詳細情報にリンクされていないものがあります。
- 物件に関するお問合せは、物件詳細ページの「情報提供会社」に表示されている不動産会社へ直接お願いいたします。
- 間取図は、現況を優先させていただきます。
- 映像は物件の一部を撮影したものです。物件の契約にあたっての最終判断はご自身の判断に基づいて行ってください。
- 仲介手数料について

アットホームは物件情報の適正化に努めております。
内容に誤りがある場合にはこちらへご連絡ください。