東京都台東区台東1丁目(秋葉原駅)の賃貸:物件詳細
				
					
					
				
														
	
		
			
				| 交通 所在地
 | 駅徒歩 | 賃料 管理費等
 | 敷金/保証金 礼金
 | 間取り 面積
 | 物件種目 築年月
 | 
		
		
			
								| 東京メトロ日比谷線/秋葉原
												  東京都台東区台東1丁目 | 7分 | 16.5万円 15,000円 | 1ヶ月 / なし 1ヶ月 | 1DK 36.99m² | 賃貸マンション 2019年3月(築6年8ヶ月)
																				 | 
						
				|  ペット相談、分譲タイプ、角部屋、2面採光
 | 
					
	
		
		
		
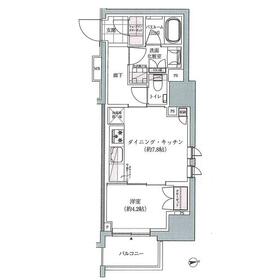
					| 間取図 | 外観 | 
		
		| 
				
										<
										
						>
							 その他の画像 | 
				
 
	
		
			
																			          | 交通 | 東京メトロ日比谷線 秋葉原駅 徒歩7分 | 
|---|
| その他の交通 | JR山手線 秋葉原駅 徒歩9分 JR総武線 秋葉原駅 徒歩9分 | 
|---|
			
				| 所在地 | 東京都台東区台東1丁目 | 
			
				| 物件種目 | 賃貸マンション | 
		
		
			
				| 賃料 | 16.5万円 | 管理費等 | 15,000円 | 
			
				| 敷金 / 保証金 | 1ヶ月 / なし | 礼金 | 1ヶ月 | 
			
				| 敷引 | - | 保証金償却 | - | 
			
				| その他一時金 | My Concier倶楽部 (2年間一括):18,000円、鍵交換代等:38,500円~ | 保険等 | 要 | 
						
				| 維持費等 | - | 
					
		
			
				| 間取り | 1DK(洋 4.2 DK 7.8) | 専有面積 | 36.99m² | 
			
				| 築年月 | 2019年3月(築6年8ヶ月) | 階建 / 階 | 13階建 / 8階 | 
			
				| 建物構造 | RC | 総戸数 | - | 
			
				| 主要採光面 | 東 | 駐車場 | - | 
			
				| バイク置き場 | - | 駐輪場 | 有 | 
			
				| 建物名・部屋番号 | アトラス秋葉原アロマコート 801 | ペット | 小型犬可・									猫可 | 
			
	| アピールポイント | お探しの方には嬉しいペット相談可。留守番いらずの宅配BOX付、更にシステムキッチンなので、日々のお料理が楽しくはかどります。コンロ3口以上付です。カップルにもゆとりの独身生活にもぴったりの1DK。ご案内いたしますのでお気軽にご連絡ください。 | 
			
				| リフォーム履歴 | - | 
			
				| リノベーション履歴 | - | 
			
				| 備考 | 
																	賃貸保証等:加入要(My Concier パートナー 初回保証委託料  賃料+共益費の50% 継続保証委託料 20,000円/2年)
											管理形態/管理員の勤務形態:-/-
 非喫煙者限定、外壁コンクリート
 角部屋♪設備・収納充実♪喫煙不可退去時のルームクリーニング費用は借主負担です。49,500円(税込)敷金から清算されます。エアコン高圧洗浄費用は入居者負担とする
 | 
		
				
		
		| エネルギー消費性能 | - | 
	
		| 断熱性能 | - | 
	
		| 目安光熱費 | - | 
	
		
									
				| バス・トイレ | バス・トイレ別、浴室暖房、浴室乾燥機、追焚機能、シャワー付洗面化粧台、洗面所独立、洗面所、洗面台、シャワー、温水洗浄便座、トイレ | 
						
				| キッチン | システムキッチン、浄水器、3口以上コンロ、2口コンロ、ガスコンロ付、グリル | 
						
				| セキュリティー | モニター付オートロック、オートロック、モニター付インターホン、ディンプルキー、ダブルロックドア、火災警報器(報知機) | 
						
				| 収納 | 収納スペース、シューズインクローゼット、クローゼット、シューズボックス | 
						
				| 設備・サービス | 全居室エアコン、エアコン2台以上、床暖房、室内洗濯機置場、洗濯機置場、給湯、フローリング、都市ガス、エアコン、暖房、冷房 | 
						
				| TV・通信 | インターネット対応、光ファイバー、CS、BS端子 | 
						
				| その他 | 宅配BOX、バルコニー、駐輪場、エレベーター | 
					
		
			
				| 契約期間 | 2年 | 現況 | 空家 | 
			
				| 条件等 | - | 入居可能時期 | 即時 | 
						
				| 仲介手数料 | 1.1ヶ月 |  |  | 
						
				| 更新料 | 新賃料 1ヶ月 | 物件番号 | 6987061726 | 
			
				| 情報公開日 | 2025年10月28日 | 次回更新予定日 | 2025年11月11日 | 
						
				| ケータイ用バーコード | 
					
					
						
							スマートフォンでこの物件を見るスマートフォンからもこの物件をご覧になれます。 | 
					
	 
	 									※「-」と表示されている項目については、情報提供会社にご確認ください。
						
	
			
			
			
				
					
						
							| 周辺施設 | ライフ神田和泉町店 | 
						
							| 距離 | 273m | 写真を見る | 
					
				
			 
		 
					
			
				
					
						
							| 周辺施設 | ファミリーマート台東1丁目店 | 
						
							| 距離 | 153m | 写真を見る | 
					
				
			 
		 
		 
				
			
			
				
					
						
							| 周辺施設 | 社会福祉法人三井記念病院 | 
						
							| 距離 | 283m | 写真を見る | 
					
				
			 
		 
					
		 
				
			
			
				
					
						
							| 周辺施設 | 朝日信用金庫本店 | 
						
							| 距離 | 387m | 写真を見る | 
					
				
			 
		 
					
			
				
					
						
							| 周辺施設 | お茶の水公園 | 
						
							| 距離 | 1476m | 写真を見る | 
					
				
			 
		 
		 
				
			
			
				
					
						
							| 周辺施設 | 万世橋警察署 | 
						
							| 距離 | 1056m | 写真を見る | 
					
				
			 
		 
					
			
				
					
						
							| 周辺施設 | 台東区立中央図書館浅草橋分室 | 
						
							| 距離 | 545m | 写真を見る | 
					
				
			 
		 
		 
		 									
												
					
					  ここから簡単にお問い合わせをすることができます。
(SSLでの暗号化での送信を希望されるお客さまは
													こちら
											  よりお問い合わせください)
					  
					
						
						
					
					お問い合わせを行う前に
「個人情報の取り扱いについて」を必ずお読みください。
「個人情報の取り扱いについて」に同意いただいた場合は「上記にご同意の上 確認画面へ進む」のボタンをクリックしてください。 
						個人情報の取り扱いについて
						皆さまが送付された個人情報はアットホーム(株)のサーバを経由し、お問い合わせ先の不動産会社にメールまたはFAXにて転送されるためアットホーム(株)にも保管されます。アットホーム(株)で保管された個人情報の取り扱いについては、【こちら】をご覧ください。
						また、本画面でご記入いただいた個人情報は、お問い合わせ先の不動産会社でも保管します。 お問い合わせ先の不動産会社が保管する個人情報の取り扱いについては、不動産会社に直接お問い合わせください。
					 
				 
				
														
				  
				  
					| 東京都知事免許(5)第83360号 | 
|---|
| 交通:東京メトロ日比谷線/人形町駅 徒歩1分東京都中央区日本橋人形町1丁目5-13 STRビル2FTEL:03-5649-3205FAX:03-5649-3207所属団体:(公社)全日本不動産協会会員(公社)首都圏不動産公正取引協議会加盟
 取引態様:仲介 00019002
 | 
							  
								スマートフォンでこの不動産会社を見る
 | 
					  
					 
				 
							
						
												
			
					
- 提携サイト等より掲載されている物件情報につきましては、不動産会社詳細情報にリンクされていないものがあります。
- 物件に関するお問合せは、物件詳細ページの「情報提供会社」に表示されている不動産会社へ直接お願いいたします。
- 間取図は、現況を優先させていただきます。
- 映像は物件の一部を撮影したものです。物件の契約にあたっての最終判断はご自身の判断に基づいて行ってください。
- 仲介手数料について 
アットホームは物件情報の適正化に努めております。
内容に誤りがある場合にはこちらへご連絡ください。