福岡県福岡市中央区黒門(唐人町駅)の賃貸:物件詳細
交通 所在地 |
駅徒歩 |
賃料 管理費等 |
敷金/保証金 礼金 |
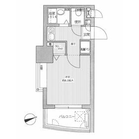
間取り 面積 |
物件種目 築年月 |
|
地下鉄空港線/唐人町
福岡県福岡市中央区黒門
|
4分
|
4.5万円
5,000円
|
なし / なし
なし
|
1K
18.90m²
|
賃貸マンション
1991年8月(築34年3ヶ月)
|
|
間取図
|
|
<
その他の画像
>
|
| 交通 | 地下鉄空港線 唐人町駅 徒歩4分 |
|---|
| その他の交通 | 地下鉄空港線 大濠公園駅 徒歩12分 地下鉄空港線 西新駅 徒歩16分 |
| 所在地 |
福岡県福岡市中央区黒門
|
| 物件種目 |
賃貸マンション |
| 賃料 |
4.5万円 |
管理費等 |
5,000円 |
| 敷金 / 保証金 |
なし / なし |
礼金 |
なし |
| 敷引 |
- |
保証金償却 |
- |
| その他一時金 |
- |
保険等 |
不要 |
| 維持費等 |
- |
| 間取り |
1K |
専有面積 |
18.90m² |
| 築年月 |
1991年8月(築34年3ヶ月)
|
階建 / 階 |
13階建 / 5階 |
| 建物構造 |
SRC |
総戸数 |
- |
| 主要採光面 |
|
駐車場 |
- |
| バイク置き場 |
- |
駐輪場 |
- |
| 建物名・部屋番号 |
|
ペット |
-
|
| アピールポイント |
この浮いたお金でうまくやりくりを!礼金敷金(保証金)0円。アクセスのいい唐人町駅徒歩4分だから、毎日の通勤通学がラク。また受け取りに心配なしの宅配BOX付で、その上素材を均一に温められるIHクッキングヒーター採用なので、揚げ物調理の跳ね油のお掃除も手間要らずです。ちなみにストリーミングや映像通信もスムーズな光ファイバー引込み済です。単身のシンプルライフに最適の1K。是非その目でお確かめください。 |
| リフォーム履歴 |
- |
| リノベーション履歴 |
- |
| 備考 |
管理形態/管理員の勤務形態:-/-
|
| エネルギー消費性能 |
- |
| 断熱性能 |
- |
| 目安光熱費 |
- |
| バス・トイレ |
バス・トイレ別 |
| キッチン |
IHクッキングヒーター |
| セキュリティー |
オートロック |
| 収納 |
- |
| 設備・サービス |
室内洗濯機置場、都市ガス |
| TV・通信 |
光ファイバー |
| その他 |
宅配BOX、エレベーター |
| 契約期間 |
1年 |
現況 |
空家 |
| 条件等 |
- |
入居可能時期 |
相談 |
| 更新料 |
- |
物件番号 |
6987085402 |
| 情報公開日 |
2025年10月18日 |
次回更新予定日 |
2025年11月1日 |
| ケータイ用バーコード |
- スマートフォンでこの物件を見る
- スマートフォンからもこの物件をご覧になれます。
|
※「-」と表示されている項目については、情報提供会社にご確認ください。
| 周辺施設 |
マックスバリュエクスプレス大濠店 |
| 距離 |
140m |
| 周辺施設 |
コスモ石油スマートカーウォッシュ福岡AIステーションセルフドームシティ地行 |
| 距離 |
505m |
ここから簡単にお問い合わせをすることができます。
(SSLでの暗号化での送信を希望されるお客さまは
こちら
よりお問い合わせください)
お問い合わせを行う前に
「個人情報の取り扱いについて」を必ずお読みください。
「個人情報の取り扱いについて」に同意いただいた場合は「上記にご同意の上 確認画面へ進む」のボタンをクリックしてください。
個人情報の取り扱いについて
皆さまが送付された個人情報はアットホーム(株)のサーバを経由し、お問い合わせ先の不動産会社にメールまたはFAXにて転送されるためアットホーム(株)にも保管されます。アットホーム(株)で保管された個人情報の取り扱いについては、【こちら】をご覧ください。
また、本画面でご記入いただいた個人情報は、お問い合わせ先の不動産会社でも保管します。 お問い合わせ先の不動産会社が保管する個人情報の取り扱いについては、不動産会社に直接お問い合わせください。
福岡県知事免許(4)第16433号 |
|---|
- 交通:
- 地下鉄七隈線/渡辺通駅 徒歩8分
- 福岡県福岡市中央区清川2丁目4-30
- TEL:
- 092-534-7766
- FAX:
- 092-534-7866
- 所属団体:
- (公社)福岡県宅地建物取引業協会会員(一社)九州不動産公正取引協議会加盟
取引態様:仲介  - 80004752
|
- スマートフォンで
この不動産会社を見る

|
- 提携サイト等より掲載されている物件情報につきましては、不動産会社詳細情報にリンクされていないものがあります。
- 物件に関するお問合せは、物件詳細ページの「情報提供会社」に表示されている不動産会社へ直接お願いいたします。
- 間取図は、現況を優先させていただきます。
- 映像は物件の一部を撮影したものです。物件の契約にあたっての最終判断はご自身の判断に基づいて行ってください。
- 仲介手数料について

アットホームは物件情報の適正化に努めております。
内容に誤りがある場合にはこちらへご連絡ください。