鹿児島県鹿児島市西田2丁目(鹿児島中央駅)の賃貸:物件詳細
交通 所在地 |
駅徒歩 |
賃料 管理費等 |
敷金/保証金 礼金 |
間取り 面積 |
物件種目 築年月 |
|
九州新幹線/鹿児島中央
鹿児島県鹿児島市西田2丁目
|
7分
|
8.1万円
4,000円
|
1ヶ月 / なし
なし
|
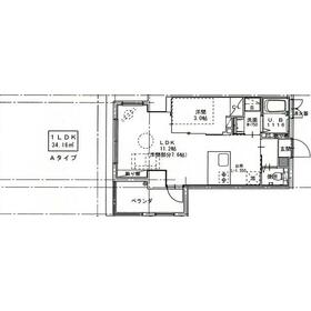
1LDK
34.16m²
|
賃貸マンション
2023年3月(築3年1ヶ月)
|
ペット相談、デザイナーズ、角部屋、事務所使用可、2面採光、隣接建物距離2m以上、保証人不要
|
|
間取図
|
外観
|
その他の画像
|
| 交通 | 九州新幹線 鹿児島中央駅 徒歩7分 |
|---|
| その他の交通 | 鹿児島市電唐湊線 鹿児島中央駅前駅 徒歩11分 |
| 所在地 |
鹿児島県鹿児島市西田2丁目
|
| 物件種目 |
賃貸マンション |
| 賃料 |
8.1万円 |
管理費等 |
4,000円 |
| 敷金 / 保証金 |
1ヶ月 / なし |
礼金 |
なし |
| 敷引 |
1ヶ月 |
保証金償却 |
- |
| その他一時金 |
消臭・消毒施工:19,800円、ネット接続料:19,800円、車庫証明発行手数料:3,300円、ナンバープレート発行料:2,200円、駐輪シール発行料:330円、鍵交換代等:25,300円~ |
保険等 |
要 2年 20,000円 家財 |
| 維持費等 |
24時間緊急サポート:1,980円/月、町内会費:330円/月 |
| 間取り |
1LDK(洋 11.2) |
専有面積 |
34.16m² |
| 築年月 |
2023年3月(築3年1ヶ月)
|
階建 / 階 |
10階建 / 5階 |
| 建物構造 |
RC |
総戸数 |
49戸 |
| 主要採光面 |
北西 |
駐車場 |
- |
| バイク置き場 |
- |
駐輪場 |
有 500円/月 |
| 建物名・部屋番号 |
LAND MARK城西本通 |
ペット |
相談 |
| リフォーム履歴 |
- |
| リノベーション履歴 |
- |
| 備考 |
賃貸保証等:加入要(保証会社ジェリース利用料:月額賃料の50% 1年毎に10,000円の保証金の支払いが必要)
管理形態/管理員の勤務形態:-/巡回
管理人巡回
賃貸戸数:49戸
賃料帯:5.8万円 ~18.5万円
専有面積帯:25.37平米~94.04平米
共益費:3,500円/月
短期違約金設定有り:2年未満賃料総額の2ヶ月分+FR利用分
法人契約・事務所利用の場合条件が異なります。
法人の場合
※参考条件→諸条件ご相談下さい!
敷金 賃料総額の2ヵ月
礼金 賃料総額の2ヵ月
敷引 賃料総額の2ヵ月
短期違約金 1年未満時賃料総額の1ヵ月
更新事務手数料:新賃料総額1ヶ月+消費税
|
| エネルギー消費性能 |
- |
| 断熱性能 |
- |
| 目安光熱費 |
- |
| バス・トイレ |
バス・トイレ別、浴室暖房、浴室乾燥機、洗面所独立、洗面所、洗面台、シャワー、温水洗浄便座、トイレ |
| キッチン |
システムキッチン、2口コンロ、ガスコンロ付 |
| セキュリティー |
モニター付オートロック、オートロック、モニター付インターホン、ディンプルキー、防犯カメラ |
| 収納 |
全居室収納、収納スペース、クローゼット、シューズボックス |
| 設備・サービス |
室内洗濯機置場、洗濯機置場、全居室フローリング、室内物干し、プロパンガス、エアコン、人感センサー付照明、ダウンライト、照明器具、複層ガラス |
| TV・通信 |
インターネット対応 |
| その他 |
宅配BOX、バルコニー、駐輪場、エレベーター |
| 契約期間 |
2年 |
現況 |
完成済 |
| 条件等 |
- |
入居可能時期 |
相談 |
| 更新料 |
新賃料 1ヶ月 |
物件番号 |
6987129556 |
| 情報公開日 |
2025年7月26日 |
次回更新予定日 |
2026年3月28日 |
| ケータイ用バーコード |
- スマートフォンでこの物件を見る
- スマートフォンからもこの物件をご覧になれます。
|
※「-」と表示されている項目については、情報提供会社にご確認ください。
| 周辺施設 |
ローソン鹿児島西田三丁目店 |
| 距離 |
250m |
| 周辺施設 |
プロント鹿児島中央駅西口店 |
| 距離 |
440m |
| 周辺施設 |
三菱レンタカー鹿児島中央駅営業所 |
| 距離 |
273m |
ここから簡単にお問い合わせをすることができます。
(SSLでの暗号化での送信を希望されるお客さまは
こちら
よりお問い合わせください)
お問い合わせを行う前に
「個人情報の取り扱いについて」を必ずお読みください。
「個人情報の取り扱いについて」に同意いただいた場合は「上記にご同意の上 確認画面へ進む」のボタンをクリックしてください。
個人情報の取り扱いについて
皆さまが送付された個人情報はアットホーム(株)のサーバを経由し、お問い合わせ先の不動産会社にメールまたはFAXにて転送されるためアットホーム(株)にも保管されます。アットホーム(株)で保管された個人情報の取り扱いについては、【こちら】をご覧ください。
また、本画面でご記入いただいた個人情報は、お問い合わせ先の不動産会社でも保管します。 お問い合わせ先の不動産会社が保管する個人情報の取り扱いについては、不動産会社に直接お問い合わせください。
鹿児島県知事免許(5)第5270号 |
|---|
- 交通:
- JR鹿児島本線/鹿児島中央駅 徒歩6分 【バス】 武町 停歩2分
- 鹿児島県鹿児島市武2丁目9-14
- TEL:
- 099-252-4472
- FAX:
- 099-252-4472
- 所属団体:
- (公社)鹿児島県宅地建物取引業協会会員(一社)九州不動産公正取引協議会加盟
取引態様:仲介  - 80500655
|
- スマートフォンで
この不動産会社を見る

|
- 提携サイト等より掲載されている物件情報につきましては、不動産会社詳細情報にリンクされていないものがあります。
- 物件に関するお問合せは、物件詳細ページの「情報提供会社」に表示されている不動産会社へ直接お願いいたします。
- 間取図は、現況を優先させていただきます。
- 映像は物件の一部を撮影したものです。物件の契約にあたっての最終判断はご自身の判断に基づいて行ってください。
- 仲介手数料について

アットホームは物件情報の適正化に努めております。
内容に誤りがある場合にはこちらへご連絡ください。