不動産 賃貸 マンション等の住宅情報:埼玉住まい情報


長崎県佐世保市木風町(日宇駅)の賃貸:物件詳細

  • 物件詳細
  • 情報の見方
  • 印刷用画面
交通
所在地
駅徒歩 賃料
管理費等
敷金/保証金
礼金
間取り
面積
物件種目
築年月

JR佐世保線/日宇

長崎県佐世保市木風町

30分

3.5万円

なし / なし

2ヶ月

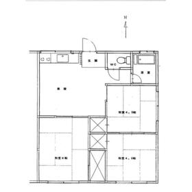
3DK

38.70m²

賃貸アパート

1976年2月(築49年9ヶ月)

おすすめPOINT最上階、2面採光

おすすめコメント

広々3DKのゆとりある空間、南東向きの角部屋、静かな環境にあるアパートです!!

間取図

間取図

外観

外観

<
その他の画像
  • キッチン
  • キッチン
  • 室内
  • 室内
  • 室内
  • バス/シャワー
  • バス/シャワー
  • トイレ
  • 玄関
  • バルコニー
  • 共有部分
  • 玄関
>
    • とりあえず保存
    • お問い合わせ
    交通

    JR佐世保線 日宇駅 徒歩30分

    所在地 長崎県佐世保市木風町
    物件種目 賃貸アパート
    賃料 3.5万円 管理費等
    敷金 / 保証金 なし / なし 礼金 2ヶ月
    敷引 保証金償却
    その他一時金 保険等 要 2年 15,500円 家財
    維持費等 クレジットカード決済 初期費用可 クレジット可能条件等:手数料4%が加算されます。
    間取り 3DK(和 4.5・4.5・6 DK 8) 専有面積 38.70m²
    築年月 1976年2月(築49年9ヶ月) 階建 / 階 2階建 / 2階
    建物構造 軽量鉄骨造 総戸数 4戸
    主要採光面 駐車場 有 3,000円/月
    バイク置き場 駐輪場
    建物名・部屋番号   ペット
    リフォーム履歴
    リノベーション履歴
    備考
    賃貸保証等:加入要(初回 家賃総額60% 月々総額1.5%)
    管理形態/管理員の勤務形態:-/-
    エネルギー消費性能
    断熱性能
    目安光熱費
    バス・トイレ バス・トイレ別
    キッチン ガスコンロ可
    セキュリティー
    収納 収納スペース
    設備・サービス
    TV・通信
    その他
    契約期間 2年 現況 空家
    条件等 入居可能時期 即時
    更新料 物件番号 6987135180
    情報公開日 2025年7月28日 次回更新予定日 2025年10月30日
    ケータイ用バーコード

    QRコード

    スマートフォンでこの物件を見る
    スマートフォンからもこの物件をご覧になれます。
    ※「-」と表示されている項目については、情報提供会社にご確認ください。

    この物件の周辺情報

    周辺施設 エレナ山祇店
    距離 1583m
    周辺施設 セブンイレブン佐世保大和町店
    距離 1104m
    周辺施設 焼肉きんぐ佐世保大和町店
    距離 1136m
    周辺施設 佐世保市立山澄中学校
    距離 1457m
    周辺施設 佐世保市立木風小学校
    距離 802m
    周辺施設 認定こども園森のほいくえん
    距離 1982m
    周辺施設 佐世保市立白南風幼稚園
    距離 1593m
    周辺施設 医療法人陽明会宮原病院
    距離 1102m

    クイックお問い合わせ

    ここから簡単にお問い合わせをすることができます。
    (SSLでの暗号化での送信を希望されるお客さまは こちら よりお問い合わせください)

    お問い合わせ内容(必須)
    お名前(必須) 姓  名 
    メールアドレス(必須)
    ※携帯電話のメールアドレスをご入力される方はこちらをご確認ください
    電話番号(必須)
    - -

    ※入力いただいた電話番号へSMSまたは音声でパスワードをご連絡します。

    携帯電話の番号をご入力の方へ

    携帯電話の番号をご入力の方へ
    確認画面にて送信ボタンをクリックするとSMSが携帯電話に届きます。
    そのSMSに記載のパスワード(認証番号)を入力し、お問い合わせを完了してください。
    尚、SMSの送信者番号は 0005 202 760 となります。
    これはアットホームの固定番号です。

    備考欄 希望条件、物件案内希望日、質問などがございましたらご記入ください。
    お問い合わせを行う前に「個人情報の取り扱いについて」を必ずお読みください。
    「個人情報の取り扱いについて」に同意いただいた場合は「上記にご同意の上 確認画面へ進む」のボタンをクリックしてください。

    個人情報の取り扱いについて

    皆さまが送付された個人情報はアットホーム(株)のサーバを経由し、お問い合わせ先の不動産会社にメールまたはFAXにて転送されるためアットホーム(株)にも保管されます。アットホーム(株)で保管された個人情報の取り扱いについては、【こちら】をご覧ください。
    また、本画面でご記入いただいた個人情報は、お問い合わせ先の不動産会社でも保管します。 お問い合わせ先の不動産会社が保管する個人情報の取り扱いについては、不動産会社に直接お問い合わせください。

    情報提供会社

    情報提供会社

    (株)佐世保地所

    長崎県知事免許(12)第1597号

    交通:
    松浦鉄道西九州線/泉福寺駅 徒歩5分 【バス】 瀬戸越 停歩3分
    長崎県佐世保市瀬戸越3丁目4-1 
    TEL:
    0956-40-5055
    FAX:
    0956-49-8011
    所属団体:
    (公社)長崎県宅地建物取引業協会会員
    (一社)九州不動産公正取引協議会加盟

    取引態様:仲介

    • 会社情報
    • 80500954
    スマートフォンで
    この不動産会社を見る
    QRコード
    • とりあえず保存
    • お問い合わせ
    • 提携サイト等より掲載されている物件情報につきましては、不動産会社詳細情報にリンクされていないものがあります。
    • 物件に関するお問合せは、物件詳細ページの「情報提供会社」に表示されている不動産会社へ直接お願いいたします。
    • 間取図は、現況を優先させていただきます。
    • 映像は物件の一部を撮影したものです。物件の契約にあたっての最終判断はご自身の判断に基づいて行ってください。
    • 仲介手数料について仲介手数料

    アットホームは物件情報の適正化に努めております。 内容に誤りがある場合にはこちらへご連絡ください。

    【埼玉住まい情報】では、日本全国の物件から賃貸マンションや賃貸アパート・賃貸一戸建て等の賃貸住宅情報、新築マンション・分譲マンションや中古マンション等の売買マンション情報、新築一戸建てや中古一戸建てなどの戸建住宅、 土地など、総合的な不動産住宅情報検索サービスを提供致します。
    【埼玉住まい情報】から、選りすぐりの不動産物件を探してみましょう。

    【免責事項】
    このコーナーの運営はアットホーム株式会社(https://www.athome.co.jp/)が行っています。
    このコーナーに掲載している物件情報は、「アットホーム不動産情報ネットワーク」に加盟する不動産会社等(情報提供元)から提供されています。信頼性の高い情報提供が行えるよう、最大限の努力をしておりますが、その内容を保証するものではありません。 利用者のみなさまと各情報提供元との取引に起因する損害および情報が掲載されたことに起因する損害等については、株式会社イーシティ埼玉、およびアットホームは一切責任を負いません。
    各物件情報の内容や画像等はすべて現況を優先させていただきます。
    お取引等(お取引の準備、資金調達等を含みます)の際には、内容や契約条件等について、各情報提供元より十分な説明を受け、ご自身でご確認の上、判断してください。
    このコーナーへの物件情報のご掲載、その他不動産業務ソリューション等についての不動産会社様のお問合せはこちらからお願いいたします。

    物件画像: