東京都練馬区早宮2丁目(平和台駅)の賃貸:物件詳細
交通 所在地 |
駅徒歩 |
賃料 管理費等 |
敷金/保証金 礼金 |
間取り 面積 |
物件種目 築年月 |
|
東京メトロ有楽町線/平和台
東京都練馬区早宮2丁目
|
2分
|
18.1万円
15,000円
|
なし / なし
なし
|
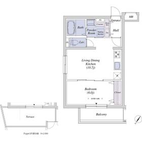
1LDK
39.78m²
|
賃貸マンション
2025年6月
|
ペット相談、フリーレント、常時ゴミ出し可能、角部屋、24時間換気システム、閑静な住宅街、外観タイル張り、保証人不要
|
|
間取図
|
外観
|
<
その他の画像
>
|
| 交通 | 東京メトロ有楽町線 平和台駅 徒歩2分 |
|---|
| その他の交通 | 東京メトロ副都心線 平和台駅 徒歩2分 都営大江戸線 練馬春日町駅 徒歩19分 |
| 所在地 |
東京都練馬区早宮2丁目
|
| 物件種目 |
賃貸マンション |
| 賃料 |
18.1万円 |
管理費等 |
15,000円 |
| 敷金 / 保証金 |
なし / なし |
礼金 |
なし |
| 敷引 |
- |
保証金償却 |
- |
| その他一時金 |
駐輪場登録料:1,100円、鍵初期設定料:17,600円、24時間管理サポート初回登録料:880円 |
保険等 |
要 1年 11,400円 フレックス少額短期 |
| 維持費等 |
24時間管理サポート:880円/月 |
| 間取り |
1LDK(洋 6 LDK 10.7) |
専有面積 |
39.78m² |
| 築年月 |
2025年6月
|
階建 / 階 |
3階建 / 2階 |
| 建物構造 |
RC |
総戸数 |
15戸 |
| 主要採光面 |
北西 |
駐車場 |
無 |
| バイク置き場 |
無 |
駐輪場 |
有 330円/月 |
| 建物名・部屋番号 |
|
ペット |
小型犬可・ 大型犬可・ 猫可・ 小型3匹、中型2匹、大型1匹 |
| リフォーム履歴 |
- |
| リノベーション履歴 |
- |
| 備考 |
賃貸保証等:加入要(初回保証委託料は賃料等の1ヶ月分、1年毎に1万円の保証委託料がかかります。その他数社あり。)
管理形態/管理員の勤務形態:-/巡回
バルコニー:5.39m²
フリーレント:2ヶ月(短期解約違約金あり。2年未満の解約は賃料及び管理費等の2か月分)
アウトフレーム工法、管理人巡回
◎フリーレント2ヶ月・礼金0ヶ月◎多頭飼育、大型犬飼育可◎屋上ドッグラン付き◎海外審査可◎法人契約可◎平日土日内見可能です◎短期解約違約金あり。2年未満の解約は賃料及び管理費等の1か月分、1年未満の解約は賃料及び管理費等の2か月分
|
| エネルギー消費性能 |
- |
| 断熱性能 |
- |
| 目安光熱費 |
- |
| バス・トイレ |
バス・トイレ別、浴室暖房、浴室乾燥機、追焚機能、高温差湯式、シャワー付洗面化粧台、洗面所独立、温水洗浄便座 |
| キッチン |
システムキッチン、浄水器、3口以上コンロ、ガスコンロ付、ガスコンロ可、グリル |
| セキュリティー |
モニター付オートロック、オートロック、モニター付インターホン、ディンプルキー、ダブルロックドア、防犯カメラ |
| 収納 |
全居室収納、収納スペース、クローゼット、シューズボックス |
| 設備・サービス |
全居室エアコン、エアコン2台以上、床暖房、室内洗濯機置場、室内物干し、都市ガス、エアコン、人感センサー付照明、ダウンライト、複層ガラス |
| TV・通信 |
インターネット使用料無料、CS、BS端子 |
| その他 |
宅配BOX、バルコニー、駐輪場、エレベーター |
| 契約期間 |
2年 |
現況 |
完成済 |
| 条件等 |
- |
入居可能時期 |
即時 |
| 更新料 |
新賃料 1ヶ月 |
物件番号 |
6987163208 |
| 情報公開日 |
2025年10月11日 |
次回更新予定日 |
2025年11月11日 |
| ケータイ用バーコード |
- スマートフォンでこの物件を見る
- スマートフォンからもこの物件をご覧になれます。
|
※「-」と表示されている項目については、情報提供会社にご確認ください。
| 周辺施設 |
まいばすけっと平和台駅前店 |
| 距離 |
84m |
| 周辺施設 |
セブンイレブン練馬早宮2丁目店 |
| 距離 |
281m |
ここから簡単にお問い合わせをすることができます。
(SSLでの暗号化での送信を希望されるお客さまは
こちら
よりお問い合わせください)
お問い合わせを行う前に
「個人情報の取り扱いについて」を必ずお読みください。
「個人情報の取り扱いについて」に同意いただいた場合は「上記にご同意の上 確認画面へ進む」のボタンをクリックしてください。
個人情報の取り扱いについて
皆さまが送付された個人情報はアットホーム(株)のサーバを経由し、お問い合わせ先の不動産会社にメールまたはFAXにて転送されるためアットホーム(株)にも保管されます。アットホーム(株)で保管された個人情報の取り扱いについては、【こちら】をご覧ください。
また、本画面でご記入いただいた個人情報は、お問い合わせ先の不動産会社でも保管します。 お問い合わせ先の不動産会社が保管する個人情報の取り扱いについては、不動産会社に直接お問い合わせください。
東京都知事免許(4)第86201号 |
|---|
- 交通:
- 東京メトロ銀座線/溜池山王駅 徒歩2分
- 東京都港区赤坂1丁目11-28 JMFビル赤坂01 3階
- TEL:
- 03-3437-7333
- FAX:
- 03-3437-7335
- 所属団体:
- (公社)全日本不動産協会会員(公社)首都圏不動産公正取引協議会加盟
取引態様:代理  - 00018231
|
- スマートフォンで
この不動産会社を見る

|
- 提携サイト等より掲載されている物件情報につきましては、不動産会社詳細情報にリンクされていないものがあります。
- 物件に関するお問合せは、物件詳細ページの「情報提供会社」に表示されている不動産会社へ直接お願いいたします。
- 間取図は、現況を優先させていただきます。
- 映像は物件の一部を撮影したものです。物件の契約にあたっての最終判断はご自身の判断に基づいて行ってください。
- 仲介手数料について

アットホームは物件情報の適正化に努めております。
内容に誤りがある場合にはこちらへご連絡ください。