京都府京都市南区吉祥院三ノ宮町(西大路駅)の賃貸:物件詳細
交通 所在地 |
駅徒歩 |
賃料 管理費等 |
敷金/保証金 礼金 |
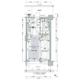
間取り 面積 |
物件種目 築年月 |
JR東海道本線/西大路
京都府京都市南区吉祥院三ノ宮町
|
8分
|
10.31万円
6,960円
|
なし / なし
12万円
|
1LDK
35.80m²
|
賃貸マンション
2020年10月(築5年1ヶ月)
|
24時間換気システム
|
間取図
|
外観
|
その他の画像
|
交通 | JR東海道本線 西大路駅 徒歩8分 |
所在地 |
京都府京都市南区吉祥院三ノ宮町
|
物件種目 |
賃貸マンション |
賃料 |
10.31万円 |
管理費等 |
6,960円 |
敷金 / 保証金 |
なし / なし |
礼金 |
12万円 |
敷引 |
- |
保証金償却 |
- |
その他一時金 |
カギ交換代:35,200円 |
保険等 |
要 1年 |
維持費等 |
プレサポ24:990円/月 |
間取り |
1LDK(LDK9.5 洋4.5) |
専有面積 |
35.80m² |
築年月 |
2020年10月(築5年1ヶ月)
|
階建 / 階 |
7階建 / 3階 |
建物構造 |
RC |
総戸数 |
131戸 |
主要採光面 |
北東 |
駐車場 |
無 |
バイク置き場 |
- |
駐輪場 |
- |
建物名・部屋番号 |
プレサンスロジェ京都西大路 0319 |
ペット |
-
|
リフォーム履歴 |
- |
リノベーション履歴 |
- |
備考 |
賃貸保証等:加入要(株式会社プレサンスギャランティ ギャランティ初回50% 月1.5% セーフティ初回50% 年10,000円)
管理形態/管理員の勤務形態:-/-
バルコニー:7.48m²
保証会社加入必須(法人契約は相談) ※プレサポ安心24 : 990円/月(物件によっては年払い) ※火災保険 個人11,000円~/1年 法人20,000円~/2年 ※図面と現状が異なる場合は現状優先となります。 (内装工事による各種仕様の変更・玄関及びバルコニーの形状・間取図面の反転タイプ・設備撤去等設備項目の変更、取扱など) ※退去時ハウスクリーニング代40000円
※J:COM無料Wi-Fi(利用制限有:1日あたり30GB)
|
エネルギー消費性能 |
- |
断熱性能 |
- |
目安光熱費 |
- |
バス・トイレ |
浴室乾燥機、追焚機能、シャワー付洗面化粧台、温水洗浄便座 |
キッチン |
3口以上コンロ |
セキュリティー |
オートロック、モニター付インターホン、防犯カメラ |
収納 |
シューズボックス |
設備・サービス |
床暖房、給湯 |
TV・通信 |
インターネット使用料無料、ケーブルTV、BS端子 |
その他 |
宅配BOX、エレベーター |
契約期間 |
1年 |
現況 |
空家 |
条件等 |
- |
入居可能時期 |
即時 |
更新料 |
旧賃料 11,000円 |
物件番号 |
6987373737 |
情報公開日 |
2025年8月21日 |
次回更新予定日 |
2025年10月23日 |
ケータイ用バーコード |
- スマートフォンでこの物件を見る
- スマートフォンからもこの物件をご覧になれます。
|
※「-」と表示されている項目については、情報提供会社にご確認ください。
ここから簡単にお問い合わせをすることができます。
(SSLでの暗号化での送信を希望されるお客さまは
こちら
よりお問い合わせください)
お問い合わせを行う前に
「個人情報の取り扱いについて」を必ずお読みください。
「個人情報の取り扱いについて」に同意いただいた場合は「上記にご同意の上 確認画面へ進む」のボタンをクリックしてください。
個人情報の取り扱いについて
皆さまが送付された個人情報はアットホーム(株)のサーバを経由し、お問い合わせ先の不動産会社にメールまたはFAXにて転送されるためアットホーム(株)にも保管されます。アットホーム(株)で保管された個人情報の取り扱いについては、【こちら】をご覧ください。
また、本画面でご記入いただいた個人情報は、お問い合わせ先の不動産会社でも保管します。 お問い合わせ先の不動産会社が保管する個人情報の取り扱いについては、不動産会社に直接お問い合わせください。
京都府知事免許(3)第13423号 |
---|
- 交通:
- 【バス】 京都市バス「大宮田尻町」 停歩1分
- 京都府京都市北区大宮北椿原町2-2 Ainaビル1階
- TEL:
- 075-494-0707
- FAX:
- 075-494-0708
- 所属団体:
- (公社)京都府宅地建物取引業協会会員(公社)近畿地区不動産公正取引協議会加盟
取引態様:仲介  - 50025754
|
- スマートフォンで
この不動産会社を見る

|
- 提携サイト等より掲載されている物件情報につきましては、不動産会社詳細情報にリンクされていないものがあります。
- 物件に関するお問合せは、物件詳細ページの「情報提供会社」に表示されている不動産会社へ直接お願いいたします。
- 間取図は、現況を優先させていただきます。
- 映像は物件の一部を撮影したものです。物件の契約にあたっての最終判断はご自身の判断に基づいて行ってください。
- 仲介手数料について

アットホームは物件情報の適正化に努めております。
内容に誤りがある場合にはこちらへご連絡ください。