不動産 賃貸 マンション等の住宅情報:埼玉住まい情報


福岡県福岡市博多区美野島1丁目の賃貸:物件詳細

  • 物件詳細
  • 情報の見方
  • 印刷用画面
交通
所在地
駅徒歩 賃料
管理費等
敷金/保証金
礼金
間取り
面積
物件種目
築年月

【バス】美野島一丁目 停歩3分

福岡県福岡市博多区美野島1丁目

5.4万円

6,300円

なし / なし

2ヶ月

1K

24.63m²

賃貸マンション

2002年10月(築23年1ヶ月)

おすすめPOINTペット相談、角部屋、ハイサッシ採用、外観タイル張り

おすすめコメント

小型犬もしくは猫1匹まで飼育可。コスト感覚の鋭いお客様に嬉しいニュース!敷金(保証金)0円。受け取りに心配なしの宅配BOX付、更にスマホやPCの使用には不可欠なインターネット使用料無料の物件。

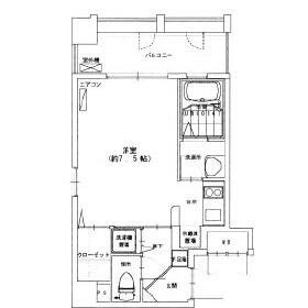
間取図

間取図

<
その他の画像
  • 室内
  • 室内
  • 収納
  • キッチン
  • バス/シャワー
  • 洗面
  • 設備
  • 室内
  • 玄関
  • 収納
  • バルコニー
  • 公園
  • コンビニ
  • ショッピング施設
  • ショッピング施設
  • ショッピング施設
  • ショッピング施設
>
    • とりあえず保存
    • お問い合わせ
    交通

    【バス】 美野島一丁目 停歩3分

    所在地 福岡県福岡市博多区美野島1丁目
    物件種目 賃貸マンション
    賃料 5.4万円 管理費等 6,300円
    敷金 / 保証金 なし / なし 礼金 2ヶ月
    敷引 保証金償却
    その他一時金 鍵交換代等:18,700円~ 保険等 不要
    維持費等 火災保険・保証会社更新料・家賃振替料:2,190円/月、24時間安心サポート:660円/月、町費:300円/月
    間取り 1K(洋 7.5) 専有面積 24.63m²
    築年月 2002年10月(築23年1ヶ月) 階建 / 階 8階建 / 4階
    建物構造 RC 総戸数
    主要採光面 駐車場
    バイク置き場 有 1,100円/月 駐輪場 有 無料
    建物名・部屋番号 メルカパークコート 403 ペット 小型犬可・ 猫可・ 小型犬もしくは猫1匹まで飼育可
    アピールポイント 小型犬もしくは猫1匹まで飼育可。不在時の受け取りも楽々の宅配BOX付、更に転居後のネット接続がスムーズに行えるインターネット使用料無料の物件だから、スマホやPCのヘビーユーザーは特にうってつけです。また手入れもラクで意外とパワフルなIHクッキングヒーター付で、その上食後お皿を下げるのもスムーズなカウンターキッチン仕様なので、カフェテイストを加えるアイディアも広がります。ちなみに不審者の侵入に目を光らせる防犯カメラ完備です。お財布喜ぶ!敷金(保証金)0円。使い勝手のよい1K。是非その目でお確かめください。
    リフォーム履歴
    リノベーション履歴
    備考
    賃貸保証等:加入要(全保連(50%・火災保険付き))
    管理形態/管理員の勤務形態:-/-
    小柳公園前
    ペット飼育可能(小型犬1匹または猫1匹)
    コンビニ、スーパーマーケットに近い立地
    エネルギー消費性能
    断熱性能
    目安光熱費
    バス・トイレ バス・トイレ別、洗面所、シャワー、トイレ
    キッチン カウンターキッチン、IHクッキングヒーター
    セキュリティー モニター付オートロック、モニター付インターホン、防犯カメラ、火災警報器(報知機)
    収納 収納スペース、クローゼット、シューズボックス
    設備・サービス 室内洗濯機置場、給湯、クッションフロア、都市ガス、エアコン
    TV・通信 インターネット使用料無料、光ファイバー、ケーブルTV
    その他 宅配BOX、バイク置き場、バルコニー、駐輪場、エレベーター
    契約期間 2年 現況 空家
    条件等 入居可能時期 2025年10月下旬予定
    更新料 物件番号 6987455424
    情報公開日 2025年9月2日 次回更新予定日 2025年11月6日
    ケータイ用バーコード

    QRコード

    スマートフォンでこの物件を見る
    スマートフォンからもこの物件をご覧になれます。
    ※「-」と表示されている項目については、情報提供会社にご確認ください。

    この物件の周辺情報

    周辺施設 小柳公園
    距離 10m
    周辺施設 セブンイレブン博多美野島1丁目店
    距離 60m
    周辺施設 マックスバリュエクスプレス住吉店
    距離 90m
    周辺施設 サニー博多住吉店
    距離 240m
    周辺施設 ミスターマックス Select 美野島店
    距離 300m
    周辺施設 ドラッグストアモリ 住吉公園前店
    距離 350m

    クイックお問い合わせ

    ここから簡単にお問い合わせをすることができます。
    (SSLでの暗号化での送信を希望されるお客さまは こちら よりお問い合わせください)

    お問い合わせ内容(必須)
    お名前(必須) 姓  名 
    メールアドレス(必須)
    ※携帯電話のメールアドレスをご入力される方はこちらをご確認ください
    電話番号(必須)
    - -

    ※入力いただいた電話番号へSMSまたは音声でパスワードをご連絡します。

    携帯電話の番号をご入力の方へ

    携帯電話の番号をご入力の方へ
    確認画面にて送信ボタンをクリックするとSMSが携帯電話に届きます。
    そのSMSに記載のパスワード(認証番号)を入力し、お問い合わせを完了してください。
    尚、SMSの送信者番号は 0005 202 760 となります。
    これはアットホームの固定番号です。

    備考欄 希望条件、物件案内希望日、質問などがございましたらご記入ください。
    お問い合わせを行う前に「個人情報の取り扱いについて」を必ずお読みください。
    「個人情報の取り扱いについて」に同意いただいた場合は「上記にご同意の上 確認画面へ進む」のボタンをクリックしてください。

    個人情報の取り扱いについて

    皆さまが送付された個人情報はアットホーム(株)のサーバを経由し、お問い合わせ先の不動産会社にメールまたはFAXにて転送されるためアットホーム(株)にも保管されます。アットホーム(株)で保管された個人情報の取り扱いについては、【こちら】をご覧ください。
    また、本画面でご記入いただいた個人情報は、お問い合わせ先の不動産会社でも保管します。 お問い合わせ先の不動産会社が保管する個人情報の取り扱いについては、不動産会社に直接お問い合わせください。

    情報提供会社

    情報提供会社

    (株)アルバコーポレーション

    福岡県知事免許(7)第12593号

    交通:
    西鉄天神大牟田線/薬院駅 徒歩3分
    福岡県福岡市中央区白金1丁目1-12 アサリコーポラス1F
    TEL:
    092-521-0010
    FAX:
    092-521-4133
    所属団体:
    (公社)福岡県宅地建物取引業協会会員
    (一社)九州不動産公正取引協議会加盟

    取引態様:代理

    • 会社情報
    • 80000369
    スマートフォンで
    この不動産会社を見る
    QRコード
    • とりあえず保存
    • お問い合わせ
    • 提携サイト等より掲載されている物件情報につきましては、不動産会社詳細情報にリンクされていないものがあります。
    • 物件に関するお問合せは、物件詳細ページの「情報提供会社」に表示されている不動産会社へ直接お願いいたします。
    • 間取図は、現況を優先させていただきます。
    • 映像は物件の一部を撮影したものです。物件の契約にあたっての最終判断はご自身の判断に基づいて行ってください。
    • 仲介手数料について仲介手数料

    アットホームは物件情報の適正化に努めております。 内容に誤りがある場合にはこちらへご連絡ください。

    【埼玉住まい情報】では、日本全国の物件から賃貸マンションや賃貸アパート・賃貸一戸建て等の賃貸住宅情報、新築マンション・分譲マンションや中古マンション等の売買マンション情報、新築一戸建てや中古一戸建てなどの戸建住宅、 土地など、総合的な不動産住宅情報検索サービスを提供致します。
    【埼玉住まい情報】から、選りすぐりの不動産物件を探してみましょう。

    【免責事項】
    このコーナーの運営はアットホーム株式会社(https://www.athome.co.jp/)が行っています。
    このコーナーに掲載している物件情報は、「アットホーム不動産情報ネットワーク」に加盟する不動産会社等(情報提供元)から提供されています。信頼性の高い情報提供が行えるよう、最大限の努力をしておりますが、その内容を保証するものではありません。 利用者のみなさまと各情報提供元との取引に起因する損害および情報が掲載されたことに起因する損害等については、株式会社イーシティ埼玉、およびアットホームは一切責任を負いません。
    各物件情報の内容や画像等はすべて現況を優先させていただきます。
    お取引等(お取引の準備、資金調達等を含みます)の際には、内容や契約条件等について、各情報提供元より十分な説明を受け、ご自身でご確認の上、判断してください。
    このコーナーへの物件情報のご掲載、その他不動産業務ソリューション等についての不動産会社様のお問合せはこちらからお願いいたします。

    物件画像: