東京都板橋区南常盤台1丁目(ときわ台駅)の賃貸:物件詳細
交通 所在地 |
駅徒歩 |
賃料 管理費等 |
敷金/保証金 礼金 |
間取り 面積 |
物件種目 築年月 |
|
東武東上線/ときわ台
東京都板橋区南常盤台1丁目
|
2分
|
9.2万円
15,000円
|
なし / なし
1ヶ月
|
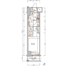
1K
26.10m²
|
賃貸マンション
2015年9月(築10年3ヶ月)
|
ペット相談、分譲タイプ、常時ゴミ出し可能、高齢者相談、ルームシェア可、二人入居可、24時間セキュリティー、24時間換気システム、閑静な住宅街、外観タイル張り、IT重説対応物件
|
|
間取図
|
|
その他の画像
|
| 交通 | 東武東上線 ときわ台駅 徒歩2分 |
|---|
| その他の交通 | 東武東上線 中板橋駅 徒歩11分 |
| 所在地 |
東京都板橋区南常盤台1丁目
|
| 物件種目 |
賃貸マンション |
| 賃料 |
9.2万円 |
管理費等 |
15,000円 |
| 敷金 / 保証金 |
なし / なし |
礼金 |
1ヶ月 |
| 敷引 |
- |
保証金償却 |
- |
| その他一時金 |
事務手数料:5,500円、除菌消臭費用:13,200円、鍵交換代等:33,000円~ |
保険等 |
要 2年 18,000円 住宅総合 |
| 維持費等 |
24h緊急サポート費用:1,000円/月 |
クレジットカード決済 |
初期費用可 賃料可 クレジット可能条件等:保証会社エポス利用+エポスカードでの決済のみ |
| 間取り |
1K(洋 8) |
専有面積 |
26.10m² |
| 築年月 |
2015年9月(築10年3ヶ月)
|
階建 / 階 |
10階建 / 9階 |
| 建物構造 |
RC |
総戸数 |
- |
| 主要採光面 |
北西 |
駐車場 |
- |
| バイク置き場 |
有 |
駐輪場 |
有 |
| 建物名・部屋番号 |
XEBECときわ台 906 |
ペット |
小型犬可・ 猫可・ 敷金1か月追加(退去時償却) |
| アピールポイント |
仲介手数料無料です★ |
| リフォーム履歴 |
- |
| リノベーション履歴 |
- |
| 備考 |
賃貸保証等:加入要(保証会社:エポス(初回保証料100%、月額1%)※エポス非承認時その他保証会社利用可)
管理形態/管理員の勤務形態:-/-
IT重説対応物件
クリーニング費用:49,500円(税込)(退去時支払い)
解約予告:1ヵ月前
更新事務手数料:0.55ヵ月分(税込)
短期解約違約金有(1年未満:総賃料1か月分)
※法人の場合:敷金1ヵ月
|
| エネルギー消費性能 |
- |
| 断熱性能 |
- |
| 目安光熱費 |
- |
| バス・トイレ |
TV付浴室、バス・トイレ別、浴室暖房、浴室乾燥機、洗面所独立、洗面所、洗面台、シャワー、温水洗浄便座、トイレ |
| キッチン |
システムキッチン、2口コンロ、ガスコンロ付、グリル |
| セキュリティー |
モニター付オートロック、オートロック、モニター付インターホン、ディンプルキー、ダブルロックドア、防犯カメラ |
| 収納 |
収納スペース、クローゼット、シューズボックス |
| 設備・サービス |
室内洗濯機置場、洗濯機置場、給湯、全居室フローリング、フローリング、都市ガス、エアコン、暖房、冷房 |
| TV・通信 |
インターネット対応、インターネット使用料無料、CS、BS端子 |
| その他 |
宅配BOX、バイク置き場、バルコニー、駐輪場、エレベーター |
| 契約期間 |
2年 |
現況 |
空家 |
| 条件等 |
- |
入居可能時期 |
即時 |
| 仲介手数料 |
不要 |
|
|
| 更新料 |
新賃料 1ヶ月 |
物件番号 |
6987544119 |
| 情報公開日 |
2025年10月30日 |
次回更新予定日 |
2025年11月21日 |
| ケータイ用バーコード |
- スマートフォンでこの物件を見る
- スマートフォンからもこの物件をご覧になれます。
|
※「-」と表示されている項目については、情報提供会社にご確認ください。
ここから簡単にお問い合わせをすることができます。
(SSLでの暗号化での送信を希望されるお客さまは
こちら
よりお問い合わせください)
お問い合わせを行う前に
「個人情報の取り扱いについて」を必ずお読みください。
「個人情報の取り扱いについて」に同意いただいた場合は「上記にご同意の上 確認画面へ進む」のボタンをクリックしてください。
個人情報の取り扱いについて
皆さまが送付された個人情報はアットホーム(株)のサーバを経由し、お問い合わせ先の不動産会社にメールまたはFAXにて転送されるためアットホーム(株)にも保管されます。アットホーム(株)で保管された個人情報の取り扱いについては、【こちら】をご覧ください。
また、本画面でご記入いただいた個人情報は、お問い合わせ先の不動産会社でも保管します。 お問い合わせ先の不動産会社が保管する個人情報の取り扱いについては、不動産会社に直接お問い合わせください。
東京都知事免許(4)第86482号 |
|---|
- 交通:
- 都営浅草線/東日本橋駅 徒歩2分
- 東京都中央区日本橋久松町4-7 GLEAMS NIHONBASHI
- TEL:
- 03-5843-6699
- FAX:
- 03-5843-6684
- 所属団体:
- (公社)全日本不動産協会会員(公社)首都圏不動産公正取引協議会加盟
取引態様:貸主  - 00019598
|
- スマートフォンで
この不動産会社を見る

|
- 提携サイト等より掲載されている物件情報につきましては、不動産会社詳細情報にリンクされていないものがあります。
- 物件に関するお問合せは、物件詳細ページの「情報提供会社」に表示されている不動産会社へ直接お願いいたします。
- 間取図は、現況を優先させていただきます。
- 映像は物件の一部を撮影したものです。物件の契約にあたっての最終判断はご自身の判断に基づいて行ってください。
- 仲介手数料について

アットホームは物件情報の適正化に努めております。
内容に誤りがある場合にはこちらへご連絡ください。