岩手県紫波郡矢巾町大字西徳田第5地割(矢幅駅)の賃貸:物件詳細
交通 所在地 |
駅徒歩 |
賃料 管理費等 |
敷金/保証金 礼金 |
間取り 面積 |
物件種目 築年月 |
|
JR東北本線/矢幅
岩手県紫波郡矢巾町大字西徳田第5地割
|
22分
|
5万円
3,500円
|
2ヶ月 / なし
1ヶ月
|
1LDK
40.94m²
|
賃貸マンション
2011年3月(築15年1ヶ月)
|
常時ゴミ出し可能、最上階、南向き
|
|
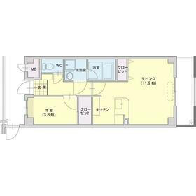
間取図
※偶数部屋・奇数部屋で間取りは反転します
|
外観
画像手前がC棟・右奥がB棟・奥にA棟があります
|
<
その他の画像
>
|
| 交通 | JR東北本線 矢幅駅 徒歩22分 |
| 所在地 |
岩手県紫波郡矢巾町大字西徳田第5地割
|
| 物件種目 |
賃貸マンション |
| 賃料 |
5万円 |
管理費等 |
3,500円 |
| 敷金 / 保証金 |
2ヶ月 / なし |
礼金 |
1ヶ月 |
| 敷引 |
- |
保証金償却 |
- |
| その他一時金 |
保証契約料:26,750円 |
保険等 |
要 2年 15,000円 |
| 維持費等 |
- |
| 間取り |
1LDK(洋 3.8 LDK 11.9) |
専有面積 |
40.94m² |
| 築年月 |
2011年3月(築15年1ヶ月)
|
階建 / 階 |
3階建 / 3階 |
| 建物構造 |
RC |
総戸数 |
29戸 |
| 主要採光面 |
南 |
駐車場 |
有 3,300円/月 |
| バイク置き場 |
有 2,200円/月 |
駐輪場 |
有 無料 |
| 建物名・部屋番号 |
メディコートB棟 309 |
ペット |
-
|
| アピールポイント |
岩手医科大学矢巾キャンパス徒歩圏内
岩手医科大学学生・医大関係者専用マンション!
こずかたサービスご紹介以外の方は仲介手数料1ヵ月+税となります。
3月中退去のお部屋です。 |
| リフォーム履歴 |
- |
| リノベーション履歴 |
- |
| 備考 |
賃貸保証等:加入要(初回保証料総家賃の50%・学生10,000円(月額保証料800円/月・手数料330円税込))
管理形態/管理員の勤務形態:-/巡回
管理人巡回
岩手医科大学矢巾キャンパス徒歩圏内
岩手医科大学学生・医大関係者専用マンション!
※偶数部屋・奇数部屋で間取りが反転となります。
駐車場については敷地内(3,300円/月)、その他近隣駐車場等ご相談となります。
|
| エネルギー消費性能 |
- |
| 断熱性能 |
- |
| 目安光熱費 |
- |
| バス・トイレ |
バス・トイレ別、シャワー付洗面化粧台、洗面所独立、洗面所、洗面台、シャワー、温水洗浄便座、トイレ |
| キッチン |
カウンターキッチン、システムキッチン、IHクッキングヒーター、2口コンロ |
| セキュリティー |
モニター付オートロック、火災警報器(報知機) |
| 収納 |
全居室収納、クローゼット、シューズボックス |
| 設備・サービス |
室内洗濯機置場、給湯、フローリング、プロパンガス、エアコン、照明器具、複層ガラス |
| TV・通信 |
BS端子 |
| その他 |
宅配BOX、バイク置き場、バルコニー、駐輪場 |
| 契約期間 |
2年 |
現況 |
居住中 |
| 条件等 |
- |
入居可能時期 |
相談 |
| 仲介手数料 |
5.5万円 |
|
|
| 更新料 |
22,000円 |
物件番号 |
6987558707 |
| 情報公開日 |
2025年9月5日 |
次回更新予定日 |
2026年4月3日 |
| ケータイ用バーコード |
- スマートフォンでこの物件を見る
- スマートフォンからもこの物件をご覧になれます。
|
※「-」と表示されている項目については、情報提供会社にご確認ください。
| 周辺施設 |
岩手医科大学矢巾キャンパス |
| 距離 |
1011m |
写真を見る |
| 周辺施設 |
モスバーガー矢巾店 |
| 距離 |
130m |
写真を見る |
| 周辺施設 |
マルイチ矢巾店 |
| 距離 |
201m |
写真を見る |
| 周辺施設 |
カワチ薬品矢巾店 |
| 距離 |
208m |
写真を見る |
ここから簡単にお問い合わせをすることができます。
(SSLでの暗号化での送信を希望されるお客さまは
こちら
よりお問い合わせください)
お問い合わせを行う前に
「個人情報の取り扱いについて」を必ずお読みください。
「個人情報の取り扱いについて」に同意いただいた場合は「上記にご同意の上 確認画面へ進む」のボタンをクリックしてください。
個人情報の取り扱いについて
皆さまが送付された個人情報はアットホーム(株)のサーバを経由し、お問い合わせ先の不動産会社にメールまたはFAXにて転送されるためアットホーム(株)にも保管されます。アットホーム(株)で保管された個人情報の取り扱いについては、【こちら】をご覧ください。
また、本画面でご記入いただいた個人情報は、お問い合わせ先の不動産会社でも保管します。 お問い合わせ先の不動産会社が保管する個人情報の取り扱いについては、不動産会社に直接お問い合わせください。
岩手県知事免許(3)第2523号 |
|---|
- 交通:
- JR東北本線/矢幅駅 徒歩19分
- 岩手県紫波郡矢巾町医大通2丁目4-8
- TEL:
- 019-658-8701
- FAX:
- 019-658-8702
- 所属団体:
- (一社)岩手県宅地建物取引業協会会員東北地区不動産公正取引協議会加盟
取引態様:仲介  - 20003712
|
- スマートフォンで
この不動産会社を見る

|
- 提携サイト等より掲載されている物件情報につきましては、不動産会社詳細情報にリンクされていないものがあります。
- 物件に関するお問合せは、物件詳細ページの「情報提供会社」に表示されている不動産会社へ直接お願いいたします。
- 間取図は、現況を優先させていただきます。
- 映像は物件の一部を撮影したものです。物件の契約にあたっての最終判断はご自身の判断に基づいて行ってください。
- 仲介手数料について

アットホームは物件情報の適正化に努めております。
内容に誤りがある場合にはこちらへご連絡ください。