東京都品川区西五反田3丁目(不動前駅)の賃貸:物件詳細
交通 所在地 |
駅徒歩 |
賃料 管理費等 |
敷金/保証金 礼金 |
間取り 面積 |
物件種目 築年月 |
|
東急目黒線/不動前
東京都品川区西五反田3丁目
|
5分
|
23万円
10,000円
|
1ヶ月 / なし
1ヶ月
|
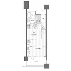
1LDK
42.05m²
|
賃貸マンション
2015年2月(築10年10ヶ月)
|
分譲タイプ、常時ゴミ出し可能
|
| 交通 | 東急目黒線 不動前駅 徒歩5分 |
|---|
| その他の交通 | 東急目黒線 目黒駅 徒歩10分 JR山手線 五反田駅 徒歩10分 |
| 所在地 |
東京都品川区西五反田3丁目
|
| 物件種目 |
賃貸マンション |
| 賃料 |
23万円 |
管理費等 |
10,000円 |
| 敷金 / 保証金 |
1ヶ月 / なし |
礼金 |
1ヶ月 |
| 敷引 |
- |
保証金償却 |
- |
| その他一時金 |
- |
保険等 |
要 2年 20,000円 火災保険 |
| 維持費等 |
- |
| 間取り |
1LDK(洋 5.4 LDK 11.1) |
専有面積 |
42.05m² |
| 築年月 |
2015年2月(築10年10ヶ月)
|
階建 / 階 |
21階建 / 15階 |
| 建物構造 |
RC |
総戸数 |
- |
| 主要採光面 |
|
駐車場 |
- |
| バイク置き場 |
- |
駐輪場 |
- |
| 建物名・部屋番号 |
|
ペット |
-
|
| アピールポイント |
留守番いらずの宅配BOX付、更に奥行き(出幅)を一般的なバルコニーより広めにとったワイドバルコニー付なので、洗濯物が多い日でもバッチリです。また広々とした延床面積53.73㎡の居室空間で、その上システムキッチンなので、日々のお料理が楽しくはかどります。ちなみに面倒な生ゴミ処理も楽勝のディスポーザー付です。家族の安心拠点になる2LDK。実際の空間をご自身で体感ください。 |
| リフォーム履歴 |
- |
| リノベーション履歴 |
- |
| 備考 |
賃貸保証等:加入要(日本セーフティ 月額総賃料等の50%~。更新保証料12,000円/年。)
管理形態/管理員の勤務形態:-/-
非喫煙者限定
|
| エネルギー消費性能 |
- |
| 断熱性能 |
- |
| 目安光熱費 |
- |
| バス・トイレ |
バス・トイレ別、浴室暖房、浴室乾燥機、追焚機能、洗面所独立、洗面所、洗面台、シャワー、温水洗浄便座、トイレ |
| キッチン |
カウンターキッチン、システムキッチン、食器洗浄乾燥機、食器乾燥機、ディスポーザー、3口以上コンロ、ガスコンロ付 |
| セキュリティー |
モニター付オートロック、オートロック、モニター付インターホン、ディンプルキー |
| 収納 |
全居室収納、ウォークインクローゼット、収納スペース、ウォークスルークローゼット |
| 設備・サービス |
全居室エアコン、エアコン2台以上、室内洗濯機置場、洗濯機置場、全居室フローリング、フローリング |
| TV・通信 |
インターネット対応 |
| その他 |
宅配BOX、エレベーター2基以上、ワイドバルコニー、バルコニー |
| 契約期間 |
2年 |
現況 |
空家 |
| 条件等 |
- |
入居可能時期 |
2025年11月下旬予定 |
| 更新料 |
新賃料 1ヶ月 |
物件番号 |
6987564019 |
| 情報公開日 |
2025年11月1日 |
次回更新予定日 |
2025年11月15日 |
| ケータイ用バーコード |
- スマートフォンでこの物件を見る
- スマートフォンからもこの物件をご覧になれます。
|
※「-」と表示されている項目については、情報提供会社にご確認ください。
| 周辺施設 |
セブンイレブン不動前駅東店 |
| 距離 |
278m |
| 周辺施設 |
マクドナルド目黒不動前店 |
| 距離 |
295m |
| 周辺施設 |
ガスト目黒不動前店(から好し取扱店) |
| 距離 |
287m |
ここから簡単にお問い合わせをすることができます。
(SSLでの暗号化での送信を希望されるお客さまは
こちら
よりお問い合わせください)
お問い合わせを行う前に
「個人情報の取り扱いについて」を必ずお読みください。
「個人情報の取り扱いについて」に同意いただいた場合は「上記にご同意の上 確認画面へ進む」のボタンをクリックしてください。
個人情報の取り扱いについて
皆さまが送付された個人情報はアットホーム(株)のサーバを経由し、お問い合わせ先の不動産会社にメールまたはFAXにて転送されるためアットホーム(株)にも保管されます。アットホーム(株)で保管された個人情報の取り扱いについては、【こちら】をご覧ください。
また、本画面でご記入いただいた個人情報は、お問い合わせ先の不動産会社でも保管します。 お問い合わせ先の不動産会社が保管する個人情報の取り扱いについては、不動産会社に直接お問い合わせください。
(株)ケーナイン東京都知事免許(1)第111662号 |
|---|
- 交通:
- 東急田園都市線/三軒茶屋駅
- 東京都世田谷区三軒茶屋1丁目37-2 SANCHA6階
- TEL:
- 03-5779-6884
- FAX:
- 03-5779-6887
- 所属団体:
- (公社)全日本不動産協会会員(公社)首都圏不動産公正取引協議会加盟
取引態様:仲介 |
- 提携サイト等より掲載されている物件情報につきましては、不動産会社詳細情報にリンクされていないものがあります。
- 物件に関するお問合せは、物件詳細ページの「情報提供会社」に表示されている不動産会社へ直接お願いいたします。
- 間取図は、現況を優先させていただきます。
- 映像は物件の一部を撮影したものです。物件の契約にあたっての最終判断はご自身の判断に基づいて行ってください。
- 仲介手数料について

アットホームは物件情報の適正化に努めております。
内容に誤りがある場合にはこちらへご連絡ください。