東京都西東京市保谷町3丁目(西武柳沢駅)の賃貸:物件詳細
交通 所在地 |
駅徒歩 |
賃料 管理費等 |
敷金/保証金 礼金 |
間取り 面積 |
物件種目 築年月 |
|
西武新宿線/西武柳沢
東京都西東京市保谷町3丁目
|
1分
|
9万円
8,000円
|
なし / なし
1ヶ月
|
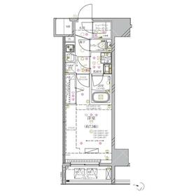
1K
25.66m²
|
賃貸マンション
2025年6月
|
ペット相談、分譲タイプ、常時ゴミ出し可能、二人入居可、24時間換気システム、外観タイル張り、IT重説対応物件
|
|
間取図
|
外観
インターネット使用料無料
|
<
その他の画像
>
|
|
|
| 交通 | 西武新宿線 西武柳沢駅 徒歩1分 |
|---|
| その他の交通 | 西武新宿線 東伏見駅 徒歩15分 西武新宿線 田無駅 徒歩19分 |
| 所在地 |
東京都西東京市保谷町3丁目
|
| 物件種目 |
賃貸マンション |
| 賃料 |
9万円 |
管理費等 |
8,000円 |
| 敷金 / 保証金 |
なし / なし |
礼金 |
1ヶ月 |
| 敷引 |
- |
保証金償却 |
- |
| その他一時金 |
PIMサポートクラブ:27,000円、ルームクリーニング費:55,000円、契約事務手数料:11,000円 |
保険等 |
要 |
| 維持費等 |
- |
クレジットカード決済 |
初期費用可 |
| 間取り |
1K(洋 7.5 K 2) |
専有面積 |
25.66m² |
| 築年月 |
2025年6月
|
階建 / 階 |
13階建 / 9階 |
| 建物構造 |
RC |
総戸数 |
45戸 |
| 主要採光面 |
西 |
駐車場 |
- |
| バイク置き場 |
- |
駐輪場 |
有 |
| 建物名・部屋番号 |
ディアレイシャス西武柳沢 |
ペット |
小型犬可・ 猫可 |
| アピールポイント |
★★新築! ディアレイシャス西武柳沢★★
「西武柳沢」駅、徒歩1分!駅すぐの立地なので、コンビニやスーパー、ドラッグストアに飲食店など生活環境も良好です!芝生の広がる東伏見公園や水と緑に包まれる武蔵関公園など癒しのひとときも満喫できます!直通バス利用で、大型ショッピング施設なども揃った吉祥寺や三鷹エリアへもアクセスできます!
インターネット使用料無料、2口ガスキッチン・独立洗面台、シャワートイレなど設備も充実で住環境も良好です! |
| リフォーム履歴 |
- |
| リノベーション履歴 |
- |
| 備考 |
賃貸保証等:加入要(初回保証委託料は総賃料等の30%~ 2年目以降1年毎に10,000円)
管理形態/管理員の勤務形態:-/巡回
バルコニー:3.24m²
IT重説対応物件、管理人巡回
・PIMサポートクラブ(2年間)⇒保険料16,000円(2年間)含む
・法人契約⇒敷1・礼1に変更
・更新料:新賃料の1ヵ月分
・更新事務手数料:0.5ヵ月
・短期解約違約金:1年未満で賃料1ヶ月分
・ペット飼育時:敷金1ヵ月追加
|
| エネルギー消費性能 |
- |
| 断熱性能 |
- |
| 目安光熱費 |
- |
| バス・トイレ |
バス・トイレ別、浴室暖房、浴室乾燥機、洗面所独立、洗面台、シャワー、温水洗浄便座、トイレ |
| キッチン |
システムキッチン、2口コンロ、ガスコンロ付 |
| セキュリティー |
モニター付オートロック、オートロック、モニター付インターホン、ディンプルキー、ダブルロックドア、防犯カメラ |
| 収納 |
収納スペース、シューズインクローゼット、クローゼット、シューズボックス |
| 設備・サービス |
室内洗濯機置場、二重床、洗濯機置場、給湯、フローリング、都市ガス、エアコン、暖房、冷房 |
| TV・通信 |
インターネット対応、インターネット使用料無料、CS、BS端子 |
| その他 |
宅配BOX、バルコニー、駐輪場、エレベーター |
| 契約期間 |
2年 |
現況 |
空家 |
| 条件等 |
- |
入居可能時期 |
即時 |
| 仲介手数料 |
1.1ヶ月 |
|
|
| 更新料 |
- |
物件番号 |
6987577665 |
| 情報公開日 |
2025年9月6日 |
次回更新予定日 |
2025年11月7日 |
| ケータイ用バーコード |
- スマートフォンでこの物件を見る
- スマートフォンからもこの物件をご覧になれます。
|
※「-」と表示されている項目については、情報提供会社にご確認ください。
| 周辺施設 |
くすりのダイイチ西武柳沢北口店 |
| 距離 |
63m |
| 周辺施設 |
ファミリーマートトモニー西武柳沢駅/S店 |
| 距離 |
113m |
| 周辺施設 |
ビッグ・エー西武柳沢駅北口店 |
| 距離 |
378m |
| 周辺施設 |
松のや西武柳沢店(松屋・松弁KITCHEN併設弁当専門店) |
| 距離 |
182m |
ここから簡単にお問い合わせをすることができます。
(SSLでの暗号化での送信を希望されるお客さまは
こちら
よりお問い合わせください)
お問い合わせを行う前に
「個人情報の取り扱いについて」を必ずお読みください。
「個人情報の取り扱いについて」に同意いただいた場合は「上記にご同意の上 確認画面へ進む」のボタンをクリックしてください。
個人情報の取り扱いについて
皆さまが送付された個人情報はアットホーム(株)のサーバを経由し、お問い合わせ先の不動産会社にメールまたはFAXにて転送されるためアットホーム(株)にも保管されます。アットホーム(株)で保管された個人情報の取り扱いについては、【こちら】をご覧ください。
また、本画面でご記入いただいた個人情報は、お問い合わせ先の不動産会社でも保管します。 お問い合わせ先の不動産会社が保管する個人情報の取り扱いについては、不動産会社に直接お問い合わせください。
東京都知事免許(4)第87852号 |
|---|
- 交通:
- 東京メトロ銀座線/赤坂見附駅 徒歩3分
- 東京都港区赤坂3丁目15-5 アーベイン赤坂1階・2階
- TEL:
- 03-5575-3201
- FAX:
- 03-5575-9140
- 所属団体:
- (公社)全日本不動産協会会員(公社)首都圏不動産公正取引協議会加盟
取引態様:仲介  - 00017577
|
- スマートフォンで
この不動産会社を見る

|
- 提携サイト等より掲載されている物件情報につきましては、不動産会社詳細情報にリンクされていないものがあります。
- 物件に関するお問合せは、物件詳細ページの「情報提供会社」に表示されている不動産会社へ直接お願いいたします。
- 間取図は、現況を優先させていただきます。
- 映像は物件の一部を撮影したものです。物件の契約にあたっての最終判断はご自身の判断に基づいて行ってください。
- 仲介手数料について

アットホームは物件情報の適正化に努めております。
内容に誤りがある場合にはこちらへご連絡ください。