山口県下関市大和町1丁目(下関駅)の賃貸:物件詳細
交通 所在地 |
駅徒歩 |
賃料 管理費等 |
敷金/保証金 礼金 |
間取り 面積 |
物件種目 築年月 |
|
JR山陽本線/下関
山口県下関市大和町1丁目
|
2分
|
6万円
5,000円
|
1ヶ月 / なし
1ヶ月
|
1LDK
36.50m²
|
賃貸マンション
2026年2月
|
外観タイル張り、IT重説対応物件
|
|
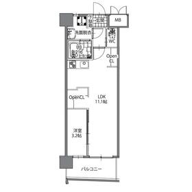
間取図
|
外観
|
その他の画像
|
| 交通 | JR山陽本線 下関駅 徒歩2分 |
| 所在地 |
山口県下関市大和町1丁目
|
| 物件種目 |
賃貸マンション |
| 賃料 |
6万円 |
管理費等 |
5,000円 |
| 敷金 / 保証金 |
1ヶ月 / なし |
礼金 |
1ヶ月 |
| 敷引 |
- |
保証金償却 |
- |
| その他一時金 |
退去時ハウスクリーニング代:55,000円 |
保険等 |
要 2年 借家人賠償責任 |
| 維持費等 |
ホームアシスト24:770円/月 |
| 間取り |
1LDK(洋 3.2 LDK 11.1) |
専有面積 |
36.50m² |
| 築年月 |
2026年2月
|
階建 / 階 |
10階建 / 2階 |
| 建物構造 |
RC |
総戸数 |
60戸 |
| 主要採光面 |
南東 |
駐車場 |
- |
| バイク置き場 |
有 無料 |
駐輪場 |
有 無料 |
| 建物名・部屋番号 |
オーヴィジョンクラス下関駅前 |
ペット |
-
|
| アピールポイント |
2026年2月完成予定。全住戸インターネット無料。カラーモニターインターホン付オートロック物件。 |
| リフォーム履歴 |
- |
| リノベーション履歴 |
- |
| 備考 |
賃貸保証等:加入要(初回保証料:総賃料の50%、月額保証料:800円)
管理形態/管理員の勤務形態:-/巡回
非喫煙者限定、IT重説対応物件、管理人巡回
火災保険加入要/家賃保証会社加入要/ペット飼育不可/タバコ不可
|
| エネルギー消費性能 |
- |
| 断熱性能 |
- |
| 目安光熱費 |
- |
| バス・トイレ |
バス・トイレ別、浴室乾燥機、洗面所独立、洗面所、洗面台、シャワー、温水洗浄便座 |
| キッチン |
システムキッチン、ガスコンロ付、グリル |
| セキュリティー |
モニター付オートロック、オートロック、ディンプルキー、ダブルロックドア |
| 収納 |
クローゼット、シューズボックス |
| 設備・サービス |
室内洗濯機置場、都市ガス給湯、給湯、全居室フローリング、都市ガス、エアコン |
| TV・通信 |
インターネット使用料無料、ケーブルTV、BS端子 |
| その他 |
宅配BOX、バイク置き場、バルコニー、駐輪場、エレベーター |
| 契約期間 |
2年 |
現況 |
未完成 |
| 条件等 |
- |
入居可能時期 |
2026年3月上旬予定 |
| 仲介手数料 |
1.1ヶ月 |
|
|
| 更新料 |
なし |
物件番号 |
6987582520 |
| 情報公開日 |
2025年10月7日 |
次回更新予定日 |
2026年1月2日 |
| ケータイ用バーコード |
- スマートフォンでこの物件を見る
- スマートフォンからもこの物件をご覧になれます。
|
※「-」と表示されている項目については、情報提供会社にご確認ください。
| 周辺施設 |
セブンイレブンハートインJR下関駅東口店 |
| 距離 |
490m |
| 周辺施設 |
ココカラファインリピエ下関店 |
| 距離 |
502m |
ここから簡単にお問い合わせをすることができます。
(SSLでの暗号化での送信を希望されるお客さまは
こちら
よりお問い合わせください)
お問い合わせを行う前に
「個人情報の取り扱いについて」を必ずお読みください。
「個人情報の取り扱いについて」に同意いただいた場合は「上記にご同意の上 確認画面へ進む」のボタンをクリックしてください。
個人情報の取り扱いについて
皆さまが送付された個人情報はアットホーム(株)のサーバを経由し、お問い合わせ先の不動産会社にメールまたはFAXにて転送されるためアットホーム(株)にも保管されます。アットホーム(株)で保管された個人情報の取り扱いについては、【こちら】をご覧ください。
また、本画面でご記入いただいた個人情報は、お問い合わせ先の不動産会社でも保管します。 お問い合わせ先の不動産会社が保管する個人情報の取り扱いについては、不動産会社に直接お問い合わせください。
山口県知事免許(1)第3769号 |
|---|
- 交通:
- JR山陽本線/下関駅 徒歩5分
- 山口県下関市竹崎町4丁目1-22 エストラストビル1階
- TEL:
- 083-250-8484
- FAX:
- 083-250-8486
- 所属団体:
- (公社)山口県宅地建物取引業協会会員中国地区不動産公正取引協議会加盟
取引態様:代理  - 80506117
|
- スマートフォンで
この不動産会社を見る

|
- 提携サイト等より掲載されている物件情報につきましては、不動産会社詳細情報にリンクされていないものがあります。
- 物件に関するお問合せは、物件詳細ページの「情報提供会社」に表示されている不動産会社へ直接お願いいたします。
- 間取図は、現況を優先させていただきます。
- 映像は物件の一部を撮影したものです。物件の契約にあたっての最終判断はご自身の判断に基づいて行ってください。
- 仲介手数料について

アットホームは物件情報の適正化に努めております。
内容に誤りがある場合にはこちらへご連絡ください。