茨城県日立市十王町伊師本郷(十王駅)の賃貸:物件詳細
交通 所在地 |
駅徒歩 |
賃料 管理費等 |
敷金/保証金 礼金 |
間取り 面積 |
物件種目 築年月 |
|
JR常磐線/十王
茨城県日立市十王町伊師本郷
|
26分
|
3.82万円
-
|
なし / なし
なし
|
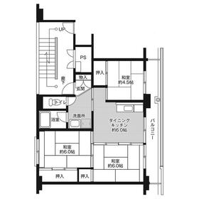
3DK
53.08m²
|
賃貸マンション
1997年4月(築28年11ヶ月)
|
フリーレント、駐車場2台分、駐車場3台分以上、南向き、高齢者相談、ルームシェア可、二人入居可、閑静な住宅街、IT重説対応物件、保証人不要
|
|
間取図
|
|
<
その他の画像
>
|
| 交通 | JR常磐線 十王駅 徒歩26分 |
| 所在地 |
茨城県日立市十王町伊師本郷
|
| 物件種目 |
賃貸マンション |
| 賃料 |
3.82万円 |
管理費等 |
- |
| 敷金 / 保証金 |
なし / なし |
礼金 |
なし |
| 敷引 |
- |
保証金償却 |
- |
| その他一時金 |
- |
保険等 |
要 2年 10,000円 |
| 維持費等 |
- |
| 間取り |
3DK(和 6・6・4.5 DK 6) |
専有面積 |
53.08m² |
| 築年月 |
1997年4月(築28年11ヶ月)
|
階建 / 階 |
5階建 / 2階 |
| 建物構造 |
RC |
総戸数 |
60戸 |
| 主要採光面 |
南 |
駐車場 |
有 無料 |
| バイク置き場 |
有 無料 |
駐輪場 |
有 無料 |
| 建物名・部屋番号 |
ビレッジハウス十王1号棟 204 |
ペット |
-
|
| アピールポイント |
ビレッジハウス十王1号棟|いちのせき不動産限定キャンペーン実施中!
いちのせき不動産が発行するオンライン申込専用URLからお申込みいただいた方限定で、お得な特典をご用意しています。
【新規ご入居者様限定特典】
・仲介手数料無料
・家賃1ヶ月分無料
・火災保険料を除く初期費用から最大40,000円自動値引き
初期費用をぐっと抑えられるので、家具・家電の購入やお引っ越し費用にも余裕が持てます。
初めての一人暮らしの方や、できるだけ費用を抑えたいご家族にもおすすめのお部屋です。 |
| リフォーム履歴 |
- |
| リノベーション履歴 |
- |
| 備考 |
管理形態/管理員の勤務形態:-/-
フリーレント:1ヶ月(3ヶ月目の家賃無料。)
IT重説対応物件
ご契約は来店不要。スマートフォンからお手続きまで完結できます。
退去時にはハウスクリーニング費用が発生いたします。
また、短期解約の場合は違約金がかかります。
詳しい条件や審査内容については、お気軽にお問い合わせください。
地域密着の当社が、ご契約後もしっかりサポートいたします。
【初期費用の計算例】
・1ヶ月目の家賃
・2ヶ月目の家賃
・保険料(2年分)10,000円
・▲値引き 40,000円
上記合計額が初期費用の目安となります。
※契約開始日が月途中の場合、1ヶ月目の家賃は日割り計算となります。
|
| エネルギー消費性能 |
- |
| 断熱性能 |
- |
| 目安光熱費 |
- |
| バス・トイレ |
バス・トイレ別、オートバス、追焚機能、洗面所独立、温水洗浄便座 |
| キッチン |
システムキッチン、ガスコンロ可 |
| セキュリティー |
- |
| 収納 |
全居室収納、シューズボックス |
| 設備・サービス |
エアコン2台以上、室内洗濯機置場、プロパンガス、エアコン |
| TV・通信 |
インターネット対応、光ファイバー |
| その他 |
バイク置き場、バルコニー、駐輪場 |
| 契約期間 |
2年 |
現況 |
空家 |
| 条件等 |
- |
入居可能時期 |
即時 |
| 仲介手数料 |
不要 |
|
|
| 更新料 |
なし |
物件番号 |
6987608049 |
| 情報公開日 |
2026年1月29日 |
次回更新予定日 |
2026年2月12日 |
| ケータイ用バーコード |
- スマートフォンでこの物件を見る
- スマートフォンからもこの物件をご覧になれます。
|
※「-」と表示されている項目については、情報提供会社にご確認ください。
| 周辺施設 |
ツルハドラッグ日立十王店 |
| 距離 |
1347m |
写真を見る |
| 周辺施設 |
ヤマザキショップヒロセ |
| 距離 |
1110m |
写真を見る |
| 周辺施設 |
ローソン日立十王町友部店 |
| 距離 |
1542m |
写真を見る |
| 周辺施設 |
アポロステーションセルフ十王SS |
| 距離 |
1562m |
写真を見る |
| 周辺施設 |
セブンイレブン十王友部店 |
| 距離 |
1642m |
写真を見る |
| 周辺施設 |
JA常陸十王支店 |
| 距離 |
1963m |
写真を見る |
| 周辺施設 |
十王郵便局 |
| 距離 |
2120m |
写真を見る |
| 周辺施設 |
セイコーマート日立川尻店 |
| 距離 |
2314m |
写真を見る |
ここから簡単にお問い合わせをすることができます。
(SSLでの暗号化での送信を希望されるお客さまは
こちら
よりお問い合わせください)
お問い合わせを行う前に
「個人情報の取り扱いについて」を必ずお読みください。
「個人情報の取り扱いについて」に同意いただいた場合は「上記にご同意の上 確認画面へ進む」のボタンをクリックしてください。
個人情報の取り扱いについて
皆さまが送付された個人情報はアットホーム(株)のサーバを経由し、お問い合わせ先の不動産会社にメールまたはFAXにて転送されるためアットホーム(株)にも保管されます。アットホーム(株)で保管された個人情報の取り扱いについては、【こちら】をご覧ください。
また、本画面でご記入いただいた個人情報は、お問い合わせ先の不動産会社でも保管します。 お問い合わせ先の不動産会社が保管する個人情報の取り扱いについては、不動産会社に直接お問い合わせください。
岩手県知事免許(4)第2415号 |
|---|
- 岩手県一関市字機織山194-8
- TEL:
- 0191-48-3995
- 所属団体:
- (一社)岩手県宅地建物取引業協会会員東北地区不動産公正取引協議会加盟
取引態様:仲介  - 20002975
|
- スマートフォンで
この不動産会社を見る

|
- 提携サイト等より掲載されている物件情報につきましては、不動産会社詳細情報にリンクされていないものがあります。
- 物件に関するお問合せは、物件詳細ページの「情報提供会社」に表示されている不動産会社へ直接お願いいたします。
- 間取図は、現況を優先させていただきます。
- 映像は物件の一部を撮影したものです。物件の契約にあたっての最終判断はご自身の判断に基づいて行ってください。
- 仲介手数料について

アットホームは物件情報の適正化に努めております。
内容に誤りがある場合にはこちらへご連絡ください。