神奈川県横浜市港北区日吉本町4丁目(日吉本町駅)の賃貸:物件詳細
交通 所在地 |
駅徒歩 |
賃料 管理費等 |
敷金/保証金 礼金 |
間取り 面積 |
物件種目 築年月 |
|
グリーンライン/日吉本町
神奈川県横浜市港北区日吉本町4丁目
|
7分
|
13.85万円
5,300円
|
2ヶ月 / なし
なし
|
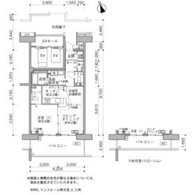
1LDK
51.00m²
|
賃貸マンション
2007年3月(築19年1ヶ月)
|
最上階、南向き、閑静な住宅街
|
|
間取図
|
|
その他の画像
|
| 交通 | グリーンライン 日吉本町駅 徒歩7分 |
|---|
| その他の交通 | 東急東横線 綱島駅 徒歩17分 東急新横浜線 新綱島駅 徒歩20分 |
| 所在地 |
神奈川県横浜市港北区日吉本町4丁目
|
| 物件種目 |
賃貸マンション |
| 賃料 |
13.85万円 |
管理費等 |
5,300円 |
| 敷金 / 保証金 |
2ヶ月 / なし |
礼金 |
なし |
| 敷引 |
- |
保証金償却 |
- |
| その他一時金 |
- |
保険等 |
要 |
| 維持費等 |
- |
| 間取り |
1LDK(洋 6.6 LDK 12.3) |
専有面積 |
51.00m² |
| 築年月 |
2007年3月(築19年1ヶ月)
|
階建 / 階 |
9階建 / 9階 |
| 建物構造 |
RC |
総戸数 |
- |
| 主要採光面 |
南 |
駐車場 |
- |
| バイク置き場 |
- |
駐輪場 |
- |
| 建物名・部屋番号 |
|
ペット |
-
|
| アピールポイント |
コスト感覚の鋭いお客様に嬉しいニュース!礼金0円。広々とした延床面積51㎡の居室空間、更に自宅のスペースを有効活用できるトランクルーム利用可だから、増えすぎたモノを収納して部屋をスッキリできます。また閑静な住宅街の住戸で、その上配膳がラクなカウンターキッチン仕様なので、食後の片付けも楽ちんです。ちなみに不審者の侵入に目を光らせる防犯カメラ完備です。一人暮らしやカップルにお勧めの1LDK。実際の空間をご自身で体感ください。 |
| リフォーム履歴 |
- |
| リノベーション履歴 |
- |
| 備考 |
管理形態/管理員の勤務形態:-/-
区画整理地内
|
| エネルギー消費性能 |
- |
| 断熱性能 |
- |
| 目安光熱費 |
- |
| バス・トイレ |
バス・トイレ別、洗面所独立、洗面所、洗面台、シャワー、温水洗浄便座、トイレ |
| キッチン |
カウンターキッチン、ガスコンロ可 |
| セキュリティー |
モニター付インターホン、防犯カメラ、火災警報器(報知機) |
| 収納 |
収納スペース、トランクルーム、クローゼット、シューズボックス |
| 設備・サービス |
室内洗濯機置場、都市ガス給湯、給湯、エアコン、暖房、冷房 |
| TV・通信 |
ケーブルTV、BS端子 |
| その他 |
バルコニー、エレベーター |
| 契約期間 |
2年 |
現況 |
空家 |
| 条件等 |
- |
入居可能時期 |
即時 |
| 仲介手数料 |
不要 |
|
|
| 更新料 |
なし |
物件番号 |
6987651339 |
| 情報公開日 |
2025年9月13日 |
次回更新予定日 |
2026年3月28日 |
| ケータイ用バーコード |
- スマートフォンでこの物件を見る
- スマートフォンからもこの物件をご覧になれます。
|
※「-」と表示されている項目については、情報提供会社にご確認ください。
ここから簡単にお問い合わせをすることができます。
(SSLでの暗号化での送信を希望されるお客さまは
こちら
よりお問い合わせください)
お問い合わせを行う前に
「個人情報の取り扱いについて」を必ずお読みください。
「個人情報の取り扱いについて」に同意いただいた場合は「上記にご同意の上 確認画面へ進む」のボタンをクリックしてください。
個人情報の取り扱いについて
皆さまが送付された個人情報はアットホーム(株)のサーバを経由し、お問い合わせ先の不動産会社にメールまたはFAXにて転送されるためアットホーム(株)にも保管されます。アットホーム(株)で保管された個人情報の取り扱いについては、【こちら】をご覧ください。
また、本画面でご記入いただいた個人情報は、お問い合わせ先の不動産会社でも保管します。 お問い合わせ先の不動産会社が保管する個人情報の取り扱いについては、不動産会社に直接お問い合わせください。
神奈川県知事免許(10)第14333号 |
|---|
- 交通:
- 東急東横線/綱島駅 徒歩3分
- 神奈川県横浜市港北区綱島東2丁目12-9 AGLAIA新綱島2階
- TEL:
- 045-543-6291
- FAX:
- 045-543-6290
- 所属団体:
- (公社)神奈川県宅地建物取引業協会会員(公社)首都圏不動産公正取引協議会加盟
取引態様:仲介  - 00210344
|
- スマートフォンで
この不動産会社を見る

|
- 提携サイト等より掲載されている物件情報につきましては、不動産会社詳細情報にリンクされていないものがあります。
- 物件に関するお問合せは、物件詳細ページの「情報提供会社」に表示されている不動産会社へ直接お願いいたします。
- 間取図は、現況を優先させていただきます。
- 映像は物件の一部を撮影したものです。物件の契約にあたっての最終判断はご自身の判断に基づいて行ってください。
- 仲介手数料について

アットホームは物件情報の適正化に努めております。
内容に誤りがある場合にはこちらへご連絡ください。