東京都港区麻布十番3丁目(麻布十番駅)の賃貸:物件詳細
交通 所在地 |
駅徒歩 |
賃料 管理費等 |
敷金/保証金 礼金 |
間取り 面積 |
物件種目 築年月 |
|
東京メトロ南北線/麻布十番
東京都港区麻布十番3丁目
|
1分
|
11.5万円
10,000円
|
1ヶ月 / なし
1ヶ月
|
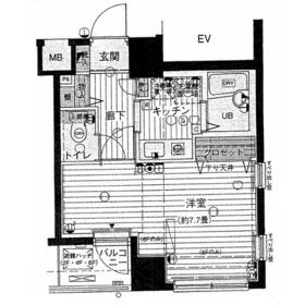
1K
24.92m²
|
賃貸マンション
1999年7月(築26年4ヶ月)
|
分譲タイプ、常時ゴミ出し可能、角部屋、24時間セキュリティー、2面採光、24時間換気システム、隣接建物距離2m以上
|
| 交通 | 東京メトロ南北線 麻布十番駅 徒歩1分 |
| 所在地 |
東京都港区麻布十番3丁目
|
| 物件種目 |
賃貸マンション |
| 賃料 |
11.5万円 |
管理費等 |
10,000円 |
| 敷金 / 保証金 |
1ヶ月 / なし |
礼金 |
1ヶ月 |
| 敷引 |
- |
保証金償却 |
- |
| その他一時金 |
鍵交換代等:22,770円~ |
保険等 |
要 2年 15,000円 火災 |
| 維持費等 |
- |
| 間取り |
1K(洋 7.7) |
専有面積 |
24.92m² |
| 築年月 |
1999年7月(築26年4ヶ月)
|
階建 / 階 |
地上8階地下1階建 / 1階 |
| 建物構造 |
RC |
総戸数 |
- |
| 主要採光面 |
東 |
駐車場 |
無 |
| バイク置き場 |
無 |
駐輪場 |
有 |
| 建物名・部屋番号 |
107 |
ペット |
-
|
| アピールポイント |
麻布十番駅徒歩1分 分譲賃貸マンション バス・トイレ別 モニター付オートロック フローリング |
| リフォーム履歴 |
- |
| リノベーション履歴 |
- |
| 備考 |
賃貸保証等:加入要(月額総賃料の50%~)
管理形態/管理員の勤務形態:-/巡回
バルコニー:2.01m²
管理人巡回
|
| エネルギー消費性能 |
- |
| 断熱性能 |
- |
| 目安光熱費 |
- |
| バス・トイレ |
バス・トイレ別、浴室暖房、浴室乾燥機、温水洗浄便座、トイレ |
| キッチン |
ガスコンロ付 |
| セキュリティー |
モニター付オートロック、オートロック、防犯カメラ、火災警報器(報知機) |
| 収納 |
収納スペース、クローゼット、シューズボックス |
| 設備・サービス |
室内洗濯機置場、給湯、フローリング、都市ガス、エアコン、ダウンライト |
| TV・通信 |
インターネット対応、BS端子 |
| その他 |
宅配BOX、バルコニー、駐輪場、内廊下、エレベーター |
| 契約期間 |
2年 |
現況 |
空家 |
| 条件等 |
- |
入居可能時期 |
相談 |
| 仲介手数料 |
1.1ヶ月 |
|
|
| 更新料 |
- |
物件番号 |
6987672932 |
| 情報公開日 |
2025年9月15日 |
次回更新予定日 |
2025年11月9日 |
| ケータイ用バーコード |
- スマートフォンでこの物件を見る
- スマートフォンからもこの物件をご覧になれます。
|
※「-」と表示されている項目については、情報提供会社にご確認ください。
ここから簡単にお問い合わせをすることができます。
(SSLでの暗号化での送信を希望されるお客さまは
こちら
よりお問い合わせください)
お問い合わせを行う前に
「個人情報の取り扱いについて」を必ずお読みください。
「個人情報の取り扱いについて」に同意いただいた場合は「上記にご同意の上 確認画面へ進む」のボタンをクリックしてください。
個人情報の取り扱いについて
皆さまが送付された個人情報はアットホーム(株)のサーバを経由し、お問い合わせ先の不動産会社にメールまたはFAXにて転送されるためアットホーム(株)にも保管されます。アットホーム(株)で保管された個人情報の取り扱いについては、【こちら】をご覧ください。
また、本画面でご記入いただいた個人情報は、お問い合わせ先の不動産会社でも保管します。 お問い合わせ先の不動産会社が保管する個人情報の取り扱いについては、不動産会社に直接お問い合わせください。
東京都知事免許(3)第95423号 |
|---|
- 交通:
- 東京メトロ南北線/麻布十番駅 徒歩1分
- 東京都港区麻布十番2丁目21-6 アクシア麻布1F
- TEL:
- 03-5446-5831
- FAX:
- 03-5446-0237
- 所属団体:
- (公社)全日本不動産協会会員(公社)首都圏不動産公正取引協議会加盟
取引態様:仲介  - 00108937
|
- スマートフォンで
この不動産会社を見る

|
- 提携サイト等より掲載されている物件情報につきましては、不動産会社詳細情報にリンクされていないものがあります。
- 物件に関するお問合せは、物件詳細ページの「情報提供会社」に表示されている不動産会社へ直接お願いいたします。
- 間取図は、現況を優先させていただきます。
- 映像は物件の一部を撮影したものです。物件の契約にあたっての最終判断はご自身の判断に基づいて行ってください。
- 仲介手数料について

アットホームは物件情報の適正化に努めております。
内容に誤りがある場合にはこちらへご連絡ください。